
|
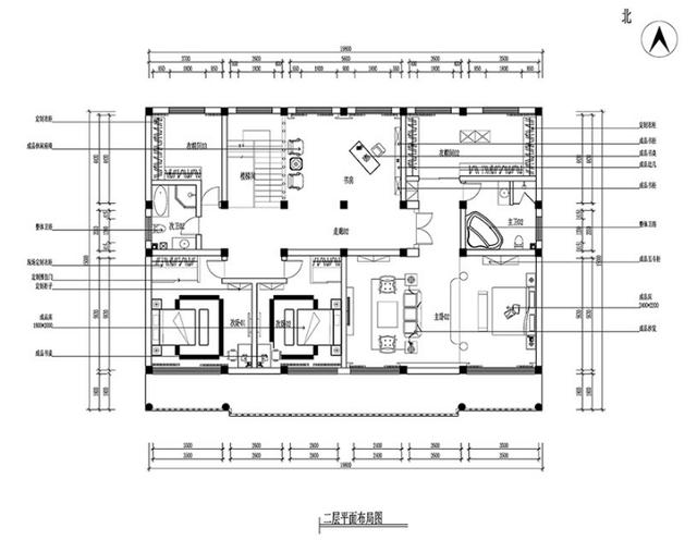
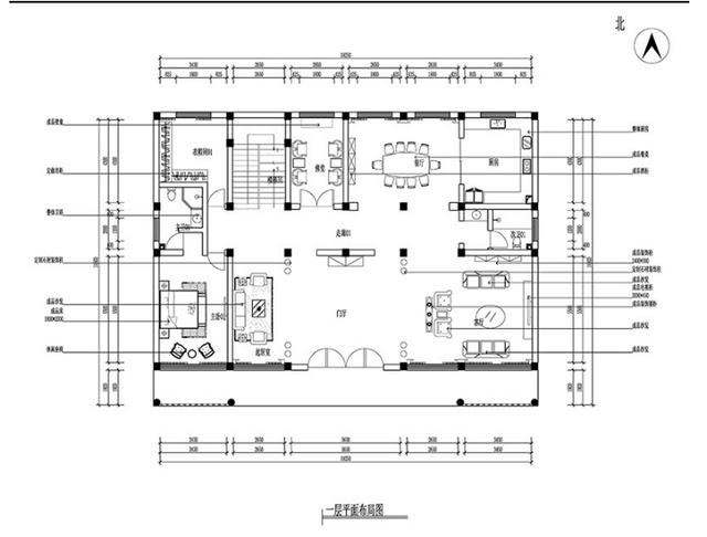
開封某企業董事長自建600平獨棟別墅設計選擇新古典風格裝修,喜歡華麗大氣的風格,居住空間采光充足,原始分割稍有不足,設計中保留了原建筑的大致空間結構,適當調整后形成了良好的串聯關系與流暢的線條,表達出高端雅致的生活格調。 面積:600平 戶型:別墅會所 裝修風格:新古典 工程造價:套餐100W+個性化裝飾140W
圖紙之家-專注農村別墅/自建房設計18年,集合國內200余位經驗豐富的設計師,被評為口碑最好的農村建筑設計公司! |

160平方農村三層別墅CAD設計圖紙,含外觀圖片效果圖
占地:156平方米
18米寬一層中式小院設計圖,三合院戶型布局寬敞大氣
占地:232.75平方米
3層20萬農村自建房設計圖,占地110平米
占地:110平方米
農村帶閣樓一層房屋設計施工圖,13X9米
占地:102平方米
現代一層(帶悶頂)別墅住宅設計圖,外觀現代時尚
占地:160平方米
13米開間的獨棟經濟型二層小別墅房屋設計圖,現代簡約
占地:150.39平方米
農村三間兩層樓房設計圖,背面不開窗,氣勢上就勝人一籌
占地:153.7平方米
帶地下室一層別墅設計方案,功能布局齊全實用
占地:256.5平方米
農村中式一層三合院自建房戶型方案圖,帶庭院設計
占地:222平方米
造價25萬農村二層小別墅設計圖,外觀效果圖美觀、精致
占地:165平方米
五間兩層農村自建房設計圖,大門居中真氣派,空間寬敞生活質量
占地:219.94平方米
新農村自建房設計圖及效果圖大全,新農村住宅精選
占地:112平方米
農村中式兩層雙拼別墅房屋設計圖,含效果圖片
占地:200平方米
經典三層雙拼樓房設計圖,經典外觀,經典戶型
占地:225平方米
120平方米農村漂亮實用的兩層別墅設計圖紙,含外觀圖片
占地:120平方米
120平現代實用三層別墅房屋設計圖,含外觀效果圖
占地:120平方米
帶架空層的一層自建房太香了!防潮、停車、儲物全兼顧
占地:152.06平方米
農村一層中式三合院別墅設計圖,戶型經典實用,19米乘15米
占地:243.21平方米
150平米簡單大方的三層農村自建房設計圖,坡層頂,色彩鮮明,布
占地:150平方米
170平方米新農村實用的三層雙拼設計圖紙,帶公用堂屋!
占地:173.62平方米
推薦:10套新農村自建房設計圖,2026年最新設計
閱讀次數:4825737次
100套鄉村別墅圖片大全,2026年最新設計
閱讀次數:2492203次
6款農村蓋一層平房的設計圖,10萬元就能建起來
閱讀次數:1852637次
這11個一層農村自建房別墅火爆了朋友圈!我最喜歡戶型十!你呢
閱讀次數:750268次
農村6萬元建一層小別墅圖,你敢相信嗎
閱讀次數:567686次
農村5萬塊就能自建房,6套普通房子設計圖分享,你沒看錯!
閱讀次數:419410次
8套農村漂亮三間平房圖片,非常適合在農村修建!
閱讀次數:411197次
農村自建房化糞池怎么做?附方案及施工過程
閱讀次數:391783次
農村一層三間平房設計圖,告別土氣養老房,讓人忍不住點贊
閱讀次數:350581次
新農村二層樓房圖片造價12萬,挑一套回家建房吧!
閱讀次數:349126次
