
|
? 占地尺寸:25.7x14.8米 ? 占地面積:380㎡ ? 建筑面積:533㎡ ? 建筑情況:4室2廳5衛1書房1廚房1餐廳2車庫 ? 建筑結構:框架結構 ? 造價估算:69萬 設計說明: 該別墅為經典的歐式別墅,明艷的色彩搭配,優雅的外觀造型,淋漓盡致的體現出別墅的奢華氣息,讓人產生想要馬上擁有的沖動。 效果圖
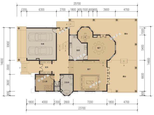
建筑四周多采用西式立柱,是經典的歐式風格元素,穩重氣派。 白色墻體以黃色點綴其中,在優雅中顯現出奢華氣質,屋頂的景觀亭成為了建筑亮點之一。 平面圖 從平面圖上可以看出,別墅多設半圓形飄窗,光線充足,視野開闊,給人以舒適的生活體驗。 別墅占地面積雖大,卻并不是一味的強調室內,同事也注重與室外的互動,這也正是別墅的優勢所在。
▲ 一層平面圖 二層臥室功能豐富,每個臥室帶有獨立衛生間與衣帽間,其中一主臥自配書房,能夠得到一個安靜雅致的學習辦公環境。
▲ 二層平面圖
▲ 屋頂平面圖 立面圖 別墅一層大露臺高于地面近一米,俯視四周,更顯氣派。
▲ 南立面
▲ 東立面 別墅高低錯落,層次豐富,注重外觀設計,給人帶來很強的視覺感,室內房間雖少卻具有很高的舒適度,遵從“享受生活”的設計理念。 圖紙之家-專注農村別墅/自建房設計18年,集合國內200余位經驗豐富的設計師,被評為口碑最好的農村建筑設計公司! |

簡約L型一層平房自建房設計圖,經濟實用
占地:145.283平方米
2026二層農村新款別墅圖片及施工圖,新中式風格古典大氣
占地:200平方米
歐式新農村自建三層建筑施工設計圖紙及效果圖大全
占地:106平方米
110平左右農村復式二層小樓設計圖,外觀非常受歡迎
占地:112平方米
客廳中空三層復式別墅房屋設計圖,帶外觀效果圖
占地:145平方米
小占地的農村別墅設計圖,占地僅72平米,參考造價不到15萬
占地:多戶型可選
三層帶挑空客廳旋轉樓梯,農村這樣建別墅高檔大氣
占地:130.51平方米
面寬14米農村別墅二層別墅戶型設計,經濟實用
占地:107.1平方米
中式二層對稱別墅設計圖,帶地下室設計,整體造價經濟
占地:171.6平方米
12x12農村三層別墅設計圖,自建房屋推薦戶型
占地:148平方米
新農村二層帶露臺經濟型小別墅設計圖紙,含外觀效果圖
占地:120平方米
三層新中式別墅設計圖,面寬12米經典漂亮
占地:154.93平方米
歐式小型二層別墅效果圖片,帶全套Cad別墅設計圖紙
占地:120平方米
徽派3層農村小別墅設計圖,廣東新農村住宅設計圖集
占地:110平方米
農村四間一層房屋設計圖,160平方米,用來養老正合適!
占地:160平方米
農村別墅220-240平米的雙拼自建房設計圖,屋頂帶老虎窗
占地:220平方米
漂亮的二層中式現代別墅圖,配色非常的溫馨淡雅
占地:160平方米
95平經濟適用三層農村小別墅設計圖,二開間推薦爆款戶型
占地:95.31平方米
120平米三層小別墅設計方案和效果圖,端莊大氣很經典
占地:120平方米
260平方米仿歐式二層別墅設計圖紙及效果圖,22X12米
占地:260平方米
推薦:10套新農村自建房設計圖,2026年最新設計
閱讀次數:4825737次
100套鄉村別墅圖片大全,2026年最新設計
閱讀次數:2492203次
6款農村蓋一層平房的設計圖,10萬元就能建起來
閱讀次數:1852637次
這11個一層農村自建房別墅火爆了朋友圈!我最喜歡戶型十!你呢
閱讀次數:750268次
農村6萬元建一層小別墅圖,你敢相信嗎
閱讀次數:567686次
農村5萬塊就能自建房,6套普通房子設計圖分享,你沒看錯!
閱讀次數:419410次
8套農村漂亮三間平房圖片,非常適合在農村修建!
閱讀次數:411197次
農村自建房化糞池怎么做?附方案及施工過程
閱讀次數:391783次
農村一層三間平房設計圖,告別土氣養老房,讓人忍不住點贊
閱讀次數:350581次
新農村二層樓房圖片造價12萬,挑一套回家建房吧!
閱讀次數:349126次
