
|
今天給大家推薦10套農村房屋設計圖,適合北方農村,造價都非常的經濟實惠,四大主材主體預算不超過25萬。 戶型一 開間7.92米 進深16.8米 一層面積64.22平方米 二層面積86.26平方米 總建筑面積150.48平方米
戶型二 開間8.64米 進深25.54米 一層面積99.23平方米 二層面積96.89平方米 總建筑面積196.12平方米 庭院占地面積219.67平方米
戶型三 開間10.74米 進深21.64米
戶型四 開間12米 進深19.4米 總建筑面積154平方米 庭院占地面積223平方米
戶型五 開間9.76米 進深10.2米 一層面積99.4平方米 二層面積76.56平方米 總建筑面積175.96平方米 庭院占地面積220平方米
型六 開間18.56米 進深26米 總建筑面積191平方米 庭院占地面積220平方米
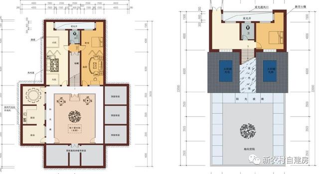
戶型七 開間9.54米 進深20.94米 一層面積104.5平方米 二層面積59.42平方米 總建筑面積163.92平方米 庭院占地面積199.77平方米
戶型八 開間11.2米 進深18.4米 總建筑面積170.24平方米 庭院占地面積206.08平方米
戶型九 開間11米 進深16.5米 一層面積100平方米 二層面積79平方米 總建筑面積179平方米 庭院占地面積186平方米
戶型十 開間13米 進深16.8米 庭院占地面積218.4米 總建筑面積190米
圖紙之家-專注農村別墅/自建房設計18年,集合國內200余位經驗豐富的設計師,被評為口碑最好的農村建筑設計公司! |

農村18萬元二層小樓圖,占地120平面,戶型緊湊合理
占地:120平方米
現代二層農村別墅全套設計圖,大旋轉露臺+超大中空客廳
占地:133平方米
農村蓋房三層自建別墅設計圖紙,11米乘12米戶型方案
占地:132.55平方米
農村帶地下室二層半自建房屋設計圖,樓中樓設計,歐式風格
占地:140平方米
造價25萬農村二層小別墅設計圖,外觀效果圖美觀、精致
占地:165平方米
復式、旋轉樓梯三層別墅設計方案圖,戶型合理、實用
占地:138平方米
三層平屋頂別墅房屋設計圖及外觀效果圖
占地:150平方米
面寬13米方正戶型二層小別墅設計方案,南北通透采光好
占地:166.78平方米
面寬18米二層農村大別墅設計圖,可帶電梯,舒適又實用
占地:138.29平方米
帶地下室三層復式別墅設計方案,全套設計圖+效果圖
占地:168平方米
一層農房別墅設計圖紙,140平方米,面寬15米
占地:140平方米
經典三層別墅設計圖,時尚典雅美觀大氣,新農村自建的理想之選
占地:119.45平方米
二層歐式農村小別墅設計圖,9.5米乘13米,戶型好到鄰居求圖紙
占地:118.32平方米
簡單漂亮實用的三層自建房設計圖,帶露臺,占地170平方米
占地:170平方米
帶架空層的三層農村別墅設計火了!雨季不怕返潮
占地:147.15平方米
70平農村小戶型二層別墅設計圖,小宅基地的福音
占地:70平方米
農村三層復式樓房住宅設計圖,私人別墅設計
占地:165平方米
160平米三層別墅設計圖,功能齊全,外觀漂亮,適合和父母同住
占地:160平方米
80平農村房屋設計圖,小戶型自建房三層別墅推薦
占地:80平方米
8.5×12米四層歐式房屋設計圖紙,占地100平,落地窗中嵌入了雕花
占地:100平方米
推薦:10套新農村自建房設計圖,2026年最新設計
閱讀次數:4825737次
100套鄉村別墅圖片大全,2026年最新設計
閱讀次數:2492203次
6款農村蓋一層平房的設計圖,10萬元就能建起來
閱讀次數:1852637次
這11個一層農村自建房別墅火爆了朋友圈!我最喜歡戶型十!你呢
閱讀次數:750268次
農村6萬元建一層小別墅圖,你敢相信嗎
閱讀次數:567686次
農村5萬塊就能自建房,6套普通房子設計圖分享,你沒看錯!
閱讀次數:419410次
8套農村漂亮三間平房圖片,非常適合在農村修建!
閱讀次數:411197次
農村自建房化糞池怎么做?附方案及施工過程
閱讀次數:391783次
農村一層三間平房設計圖,告別土氣養老房,讓人忍不住點贊
閱讀次數:350581次
新農村二層樓房圖片造價12萬,挑一套回家建房吧!
閱讀次數:349126次
