
|
農家大院的風格設計,特別適合北方地區的人自建生活,蓋房子說什么都要有個院子才實用,而且現在人均用地也比之前有了提升,如果說自家宅基地有限不能設計院子的話,可以把屋頂弄成平臺。,當做是一個露臺使用;但宅基地富足有余,那么弄一個大院風格的房子,特別不錯,像下面這款房子,就是典型的農村二層樓房實景圖!
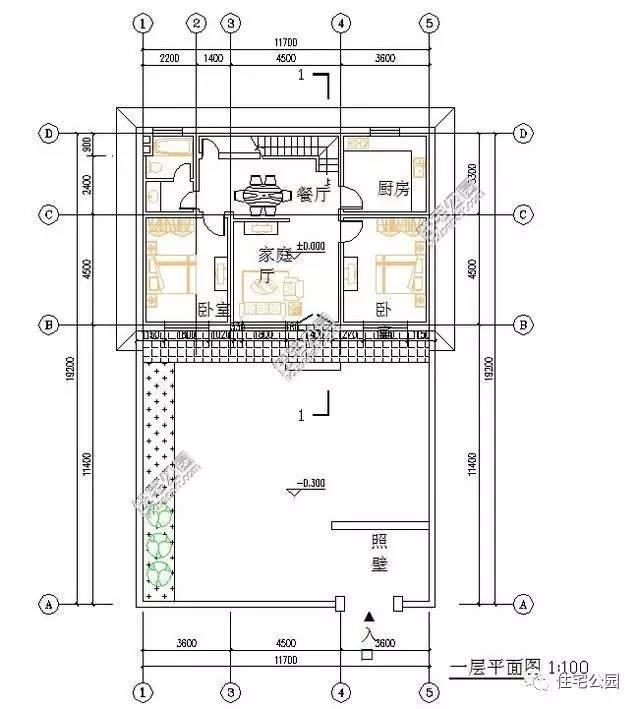
平面布局圖: 今天要分享的這款大院戶型,建筑面積218平方米,占地面積11X19米,屬于進深稍長的宅基地,坐北朝南的方位令居室充滿了陽光,同時通風也不在話下,很是不錯!
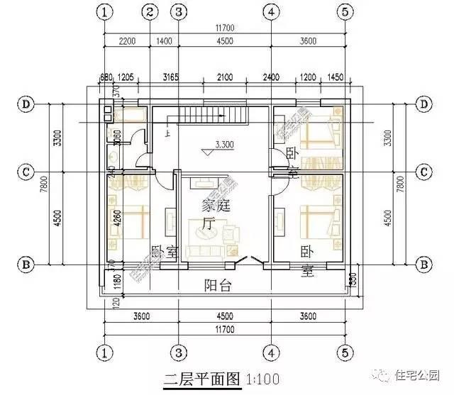
二層是主要的居住空間設計了,一共設計了三間臥室,中間是獨立起居室,為了簡化用地,二層使用一個公共衛生間,簡單明了!
屋頂平面圖:
立面圖展示:
圖紙之家-專注農村別墅/自建房設計18年,集合國內200余位經驗豐富的設計師,被評為口碑最好的農村建筑設計公司! |

帶土灶房一層四開間別墅設計方案,溫馨舒適的雅舍
占地:164.34平方米
全新農村簡歐風格三層房屋別墅效果圖,110和210兩個戶型,帶電梯
占地:多種戶型
180平方農村二層別墅施工設計圖紙,15.8x11.7米
占地:180平方米
新農村四合院別墅圖片及戶型方案圖,全套圖紙可施工
占地:154平方米左右
155平方米自建二層CAD房屋設計圖紙及效果圖,13X12米
占地:156平方米
歐式三層小洋樓設計圖,歐式最美三層別墅外觀效果圖
占地:124.28平方米
160平小開間大進深農村三層別墅設計圖紙
占地:158.73平方米
130平四間二層小洋樓設計圖,含外觀圖片
占地:130平方米
實用型二層別墅設計方案,占地120平米簡單大方最耐看
占地:120平方米
一層中式三合院別墅設計圖,白墻黛瓦引領潮流
占地:177.94平方米
簡約L型一層平房自建房設計圖,經濟實用
占地:145.283平方米
三層兄弟雙拼別墅設計方案,外觀大氣布局實用,住的舒服
占地:197.67平方米
新農村一層小別墅設計方案,四臥二廳耐看實用,方便打掃更便捷
占地:153.55平方米
五十萬二層半鄉村別墅,客廳挑空設計,占地200平米左右
占地:200平方米
農村兄弟雙拼二層四合院別墅設計圖,戶型左右對稱
占地:430平方米
二層平頂別墅設計圖,漂亮經濟實用二層農村小別墅最新房屋設計
占地:多種戶型
3款簡單舒適二層別墅設計圖,低調配色,造型簡單大氣
占地:多戶型可選
二層帶車庫歐式尊貴別墅圖,客廳中空,美觀,大氣,實用
占地:300平方米
農村小別墅一層設計圖紙,外觀漂亮極了,130和160兩個戶型
占地:多種戶型可選
125平方米新農村二層房屋施工設計CAD圖紙加效果圖
占地:125平方米
推薦:10套新農村自建房設計圖,2026年最新設計
閱讀次數:4825737次
100套鄉村別墅圖片大全,2026年最新設計
閱讀次數:2492203次
6款農村蓋一層平房的設計圖,10萬元就能建起來
閱讀次數:1852637次
這11個一層農村自建房別墅火爆了朋友圈!我最喜歡戶型十!你呢
閱讀次數:750268次
農村6萬元建一層小別墅圖,你敢相信嗎
閱讀次數:567686次
農村5萬塊就能自建房,6套普通房子設計圖分享,你沒看錯!
閱讀次數:419410次
8套農村漂亮三間平房圖片,非常適合在農村修建!
閱讀次數:411197次
農村自建房化糞池怎么做?附方案及施工過程
閱讀次數:391783次
農村一層三間平房設計圖,告別土氣養老房,讓人忍不住點贊
閱讀次數:350581次
新農村二層樓房圖片造價12萬,挑一套回家建房吧!
閱讀次數:349126次
