
|
別墅地下室設計,顧名思義是位于地下部分的建筑,當建筑層高、通風采光、防水防潮、房型以及功能等五個方面多加注意的情況下,地下室是擴展家庭面積的最佳選擇。用作收藏室、儲藏酒水、棋牌室、影音室等,北方干燥地區亦可用作倉儲室,儲存冬季食物。而對于面積較小的宅基地,修筑地下室作為地下車庫,才是地下室的最大用處。今天便為大家介紹10套帶地下室的別墅,戶型多樣,總有你喜歡的! 第一套 簡潔現代風的外觀,十分受當代人的喜歡,明亮的大窗使陽光穿透房間的每一個角落。挑空客廳面積較大,并與餐廳玄關等相連,為家人提供更加寬敞的公共休閑空間。房主將地下室合理規劃,為家人擴大了娛樂空間,備用房充分為未來生活考慮。
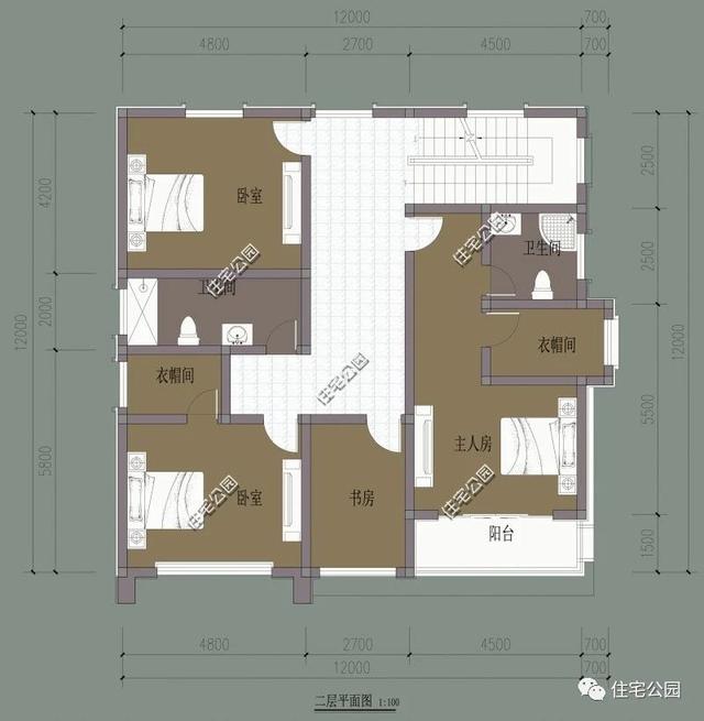
房屋基本信息 占地尺寸:12.24m*10.05m 建筑情況:共設3室 1老人房 2廳 1玄關 4衛 1廚 1書房 2露臺 1地下室 2備用房 1儲藏室 平面布局圖:
第二套 頗具特色的馬頭墻,中式徽派風格一直在農村自建房中深受大家喜愛。完善的室內設計包羅萬象,棋牌室、書房一用俱全。地下車庫設計巧妙,既利于停車的同時,又沒有占用多余的土地面積,儲藏間和地窖將地下室合理規劃,節約面積。
房屋基本信息 占地尺寸:8.86m*7.5m 建筑情況:共設4室 2廳 4衛 1廚 1棋牌室 1書房 2露臺 2儲藏室 1地窖 1地下停車場 平面布局圖:
第三套 第三套與第二套的室內布局完全相同,但外觀風格卻截然不同。現代風格簡約隨性,橙白相間的墻面溫暖有活力。
房屋基本信息 占地尺寸:8.86m*7.5m 建筑情況:共設4室 2廳 4衛 1廚 1棋牌室 1書房 2露臺 2儲藏室 1地窖 1地下停車場 平面布局圖:
第四套 紅黃搭配是最熱情的顏色,架空層設計好處頗多,恰當好處的運用不對稱是設計師的機智巧妙。地下車庫位置方便車輛進出,合理安排地下室空間增大房屋可使用面積。
房屋基本信息 占地尺寸:10.77m*12.17m 建筑情況:共設3室 3廳 3衛 1廚 2玄關 1陽臺 1書房 2儲物間 2雜物間 1糧倉 1地下停車庫 平面布局圖:
第五套 有棱角的外觀給人一種中規中矩的印象,穩重大氣,永恒經典。寬敞的建筑面積、挑空的客廳、精致的室內布局無一不顯出別墅的奢華氣派,家庭影院的設計提升住房品質,寬敞的地下室可供房主無限發揮。
房屋基本信息 占地尺寸:17m*16m 建筑情況:共設6室 4廳 4衛 1廚 1茶室 1衣帽間 2露臺 1影院 1地下室 平面布局圖:
第六套 第六套房屋樓層較高,臥室豐富,適合人口較多的家庭居住。大窗多陽臺設計使整個房間光照充足,通透性強。將影像室設計在地下室,既能充分利用地下室又能避免噪音影響鄰居,具有良好的私密性。
房屋基本信息 占地尺寸:11.3m*16.85m 建筑情況:共設9室 5廳 1老人房 6衛 1廚 11露臺 2花壇 3書房 1地下車庫 1儲藏室 1影像廳 1棋牌室 平面布局圖:
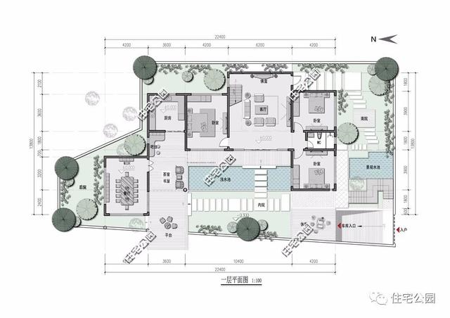
第七套 依山而建的中式庭院建筑一看便是懂得享受生活的房主,斜瓦白墻,庭院幾株翠竹,中式之美躍然而出。占地面積大但建筑面積把控適度,庭院寬敞,挑空客廳顯得建筑從外觀看雅致高格,且室內大氣。地下室只占用土地的小部分面積,對面占地面積寬闊的宅基地足矣。
房屋基本信息 占地尺寸:22.4m*13.8m 建筑情況:共設7室 2廳 3衛 1廚 2露臺 1茶室 1吧臺 1儲藏室 1圖庫 平面布局圖:
第八套 灰白相間的外觀頗具藝術家氣質,干凈而有個性,多窗設計適合溫暖的地區。寬敞的地下室可整體可隔間使用,裝修自定,充分擴展空間。
房屋基本信息 占地尺寸:12m*12m 建筑情況:共設5室 1老人房 3廳 1玄關 6衛 3衣帽間 1書房 2露臺 1地下室 平面布局圖:
第九套 三合院式設計吸引眼球,寬敞的大露臺讓眼前景色盡收眼底。完善的室內設置,豐富的地下室設計,讓房子不只居住還有娛樂休閑。
房屋基本信息 占地尺寸:19.2m*12.3m 建筑情況:共設6室 1老人房 3廳 1堂屋 6衛 1廚 4衣帽間 1陽光房 1洗衣房 1書房 5露臺 2儲藏室 1影視房 1酒窖 1健身房 1設備間 平面布局圖:
第十套 最后一套建筑為雙拼式別墅,設計師巧妙的運用了對稱之美,中間留空設計新穎美觀。室內健生房、雙入門進出都從點點滴滴中照顧您的生活,將地下室隔成多個小空間合理運用,實用經濟。
房屋基本信息(單戶) 占地尺寸:11.26m*16.6m 建筑情況:共設5室 4廳 5衛 1廚 1茶水間 1書房 1健身房 1棋牌室 1露臺 1花園 1地下室 1地下車庫 平面布局圖:
如果你想建一個帶地下室的別墅,萬萬不要錯過這10套別墅設計! 圖紙之家-專注農村別墅/自建房設計18年,集合國內200余位經驗豐富的設計師,被評為口碑最好的農村建筑設計公司! |

鄉村別墅現代風平屋頂四層自建房設計圖,簡約時尚
占地:144.7平方米
最漂亮的農村二層小樓圖,平屋頂的設計對于農村來說尤為便利
占地:170平方米
小戶型經濟型三層雙拼小別墅施工設計圖紙,單戶100平內
占地:150平方米
經濟實用二層農村自建房設計圖,新中式風格12x11米
占地:114平方米
農村新款二層中式別墅設計圖效果圖,帶堂屋設計
占地:144平方米
13米開間的獨棟經濟型二層小別墅房屋設計圖,現代簡約
占地:150.39平方米
高端農村三層歐式房屋設計圖紙,帶車庫,帶露臺
占地:163平方米
面寬22米的高端三層自建房別墅設計圖,功能齊全
占地:222.47平方米
四開間一層半別墅設計圖,帶閣樓設計的戶型方案
占地:190.7平方米
160平方米農村二層四合院別墅設計圖及外觀圖片
占地:158平方米
農村一層中式三合院別墅設計圖紙,外觀漂亮極了
占地:195平方米
三層帶地下室+旋轉樓梯別墅設計圖紙,復式挑空客廳
占地:多種戶型
造價40萬內三層別墅房屋設計方案,設計圖+外觀效果圖
占地:150平方米
好看又簡單的二層樓房設計,經濟實用型的農村小別墅
占地:135平方米
140平方米新農村二層自建平屋頂房屋設計圖紙帶外觀效果圖
占地:140平方米左右
占地105平實用三層樓房別墅設計圖紙,造型方正簡單大氣
占地:105平方米
三層新中式別墅設計圖,面寬12米經典漂亮
占地:154.93平方米
農村二層半雙拼別墅設計圖,客廳中空,帶大露臺
占地:270平方米
農村三層雙拼別墅戶型圖及全套施工圖紙,帶書房,帶衣帽間
占地:260平方米
帶獨立廚房的二層自建房設計圖,大戶型方案
占地:233平方米
推薦:10套新農村自建房設計圖,2026年最新設計
閱讀次數:4825737次
100套鄉村別墅圖片大全,2026年最新設計
閱讀次數:2492203次
6款農村蓋一層平房的設計圖,10萬元就能建起來
閱讀次數:1852637次
這11個一層農村自建房別墅火爆了朋友圈!我最喜歡戶型十!你呢
閱讀次數:750268次
農村6萬元建一層小別墅圖,你敢相信嗎
閱讀次數:567686次
農村5萬塊就能自建房,6套普通房子設計圖分享,你沒看錯!
閱讀次數:419410次
8套農村漂亮三間平房圖片,非常適合在農村修建!
閱讀次數:411197次
農村自建房化糞池怎么做?附方案及施工過程
閱讀次數:391783次
農村一層三間平房設計圖,告別土氣養老房,讓人忍不住點贊
閱讀次數:350581次
新農村二層樓房圖片造價12萬,挑一套回家建房吧!
閱讀次數:349126次
