
|
對于建房,各有各的想法,因不同家庭審美和需求不同,市場上才會出現那么多設計圖,雖說圖紙很多,但要挑選到符合自己心意的實屬不易,有時候你看上了外觀,但布局又不合適,布局合適了,尺寸又不符,真讓人頭疼,不過呢多一套圖紙就多一種選擇,下面給大家分享一款28萬15×11米3廳5臥帶主臥套房二層獨棟別墅設計效果圖,這套戶型設計高低錯落,一層客廳獨享一層,有超大落地窗,哈有走廊、陽臺,主臥套房等,戶型雅觀精致,一起來看看。
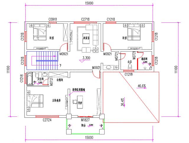
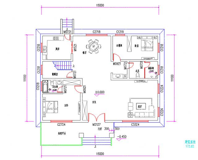
效果圖 圖紙詳情 層數:二層 開間:15米 進深:11.1米 首層占地面積:172平方米 總建筑面積:313平方米 結構形式:磚混結構 主體造價:28萬 平面圖展示
一層平面圖 一層:休息平臺、玄關、客廳、廚房、餐廳、主臥(帶主衛)、臥室(帶衣帽間)、公衛(帶淋浴間)、儲藏室
二層平面圖 二層:起居室、主臥套房(帶書房、衛生間、陽臺)、臥室、臥室、公衛(帶淋浴間) 圖紙之家-專注農村別墅/自建房設計18年,集合國內200余位經驗豐富的設計師,被評為口碑最好的農村建筑設計公司! |

面寬15米的農村三層房屋設計圖,帶別墅效果圖
占地:137平方米左右
2026新款農村15萬元二層小樓圖,占地90平米左右
占地:多種戶型
2026最火的現代別墅設計圖農村三層戶型,帶地下室
占地:119.79平方米
農村最好看兩層小樓圖及全套CAD施工圖紙,新中式風格,簡潔大氣
占地:150平方米
2026農村漂亮的一層平房圖片平面圖與全套施工圖紙,戶型周正
占地:150平方米
二層農村房子圖片及全套施工圖紙,占地150平面左右
占地:150平方米
帶地下室設計三層自建房別墅設計圖,復式挑空客廳
占地:192平方米
最接農村地氣的二層農村小別墅,造價30萬左右,經濟實用
占地:170平方米
回村蓋一層養老房別墅設計圖紙,面寬16米四開間戶型圖
占地:127平方米左右
90平方米農村二層房屋設計施工圖紙及效果圖,11x8.5米
占地:90平方米
大戶型美觀一層平房自建房設計圖,面寬19米左右
占地:245.1平方米
二層雙拼別墅外觀效果圖及施工圖,帶露臺,14乘12米
占地:168平方米
帶堂屋新農村三層房屋別墅設計圖紙,帶外觀效果圖
占地:214平方米
12x10米帶閣樓的農村一層半別墅設計圖,外觀洋氣
占地:110.54平方米
豪華二層別墅設計圖紙及別墅圖片,旋轉樓梯,內設佛堂,大大落
占地:260平方米
新農村三層小別墅設計圖紙,占地160平左右,好看不貴
占地:160平方米
現代二層農村別墅全套設計圖,大旋轉露臺+超大中空客廳
占地:133平方米
好看又簡單的二層樓房設計圖紙,戶型還實用
占地:150平方米
三層新農村住宅設計圖及效果圖,三層樓房設計圖展示
占地:140平方米
2026戶型方正三層農村小別墅設計圖紙(含外觀圖片)
占地:150平方米
推薦:10套新農村自建房設計圖,2026年最新設計
閱讀次數:4825737次
100套鄉村別墅圖片大全,2026年最新設計
閱讀次數:2492203次
6款農村蓋一層平房的設計圖,10萬元就能建起來
閱讀次數:1852637次
這11個一層農村自建房別墅火爆了朋友圈!我最喜歡戶型十!你呢
閱讀次數:750268次
農村6萬元建一層小別墅圖,你敢相信嗎
閱讀次數:567686次
農村5萬塊就能自建房,6套普通房子設計圖分享,你沒看錯!
閱讀次數:419410次
8套農村漂亮三間平房圖片,非常適合在農村修建!
閱讀次數:411197次
農村自建房化糞池怎么做?附方案及施工過程
閱讀次數:391783次
農村一層三間平房設計圖,告別土氣養老房,讓人忍不住點贊
閱讀次數:350581次
新農村二層樓房圖片造價12萬,挑一套回家建房吧!
閱讀次數:349126次
