
|
別墅基本信息 占地尺寸:10.24m*13.04m 占地面積:123㎡ 建筑面積:320㎡ 總 高 度:13.1m 建筑情況:方案①共設8室 3廳 5衛 1娛樂室 1儲藏室 2露臺;方案②9室3廳5衛1娛樂室1書房2露臺
這套戶型是業主的定制戶型,我們設計師為業主出圖后,在基于原方案之上又做了少許的調整和優化,為我們多提供了一套布局方案,供選擇。
業主信息:
設計需求:
360°旋轉圖
立 面 圖
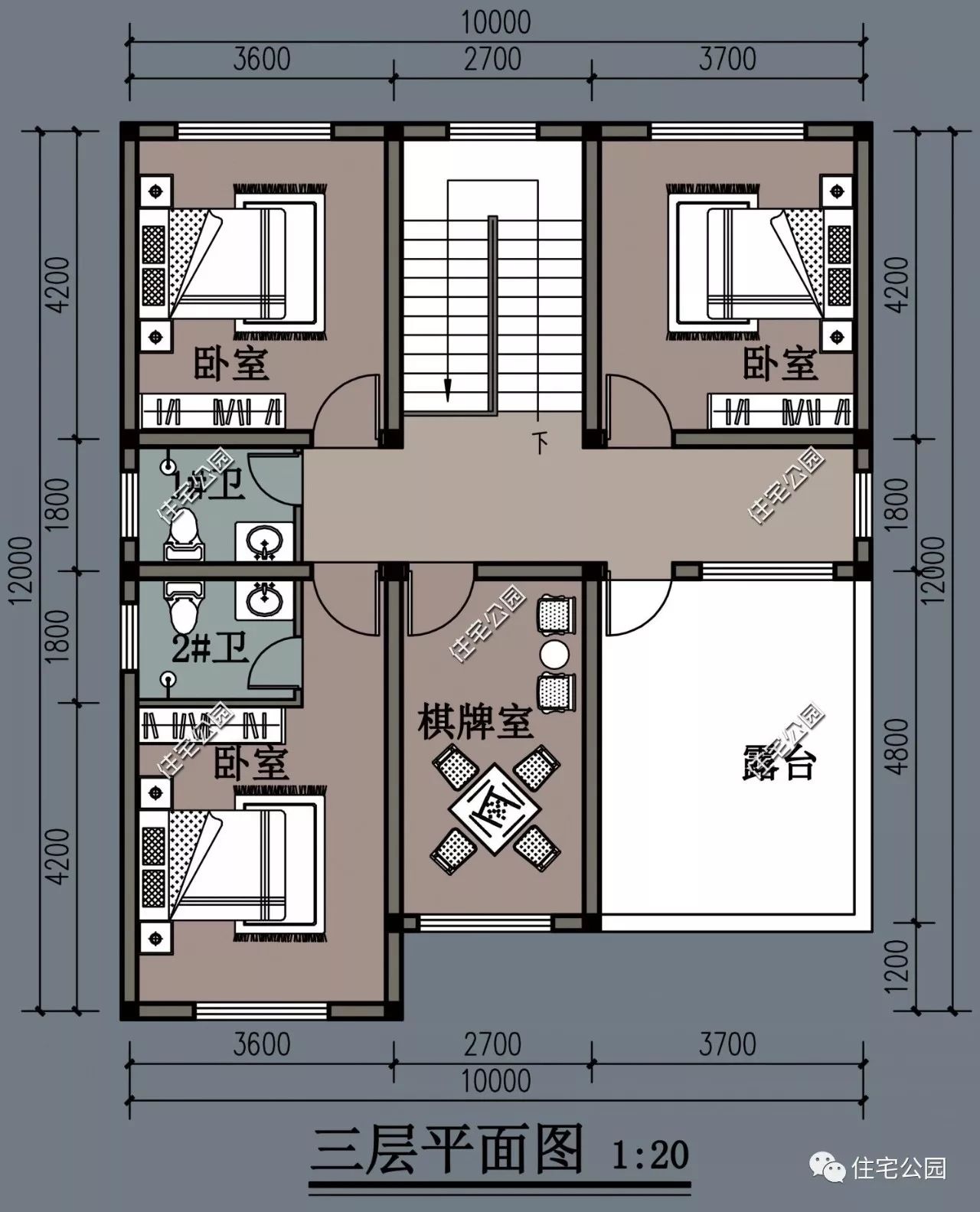
平面布局圖
01 方案一(業主方案)
方案一,是業主的定制布局,根據業主要求出圖;設有挑空客廳,未設廚房(業主在室外單獨設有廚房)。 具體層高做法:一層3.6米,二三層3.3米
02 方案二(衍生推廣方案))
在戶型一的基礎上,稍微做出了調整,改變了樓梯的位置,增加了廚房,舍棄了挑空客廳,多增加了一個居住空間,更趨于實用性。
圖紙之家-專注農村別墅/自建房設計18年,集合國內200余位經驗豐富的設計師,被評為口碑最好的農村建筑設計公司! |

經典小戶型雙拼二層新農村房屋住宅設計圖,含效果圖
占地:80平方米
農村三層別墅新款圖片及戶型設計圖紙大全,110平簡歐風格
占地:110平方米左右
經典簡約三層農村自建房設計圖,功能實用簡單大氣,比城里鴿子
占地:144平方米
帶車庫的三層房屋方案設計圖,帶堂屋全套圖紙
占地:163.8平方米
大氣的三層鄉村別墅設計方案圖,小面積建出豪宅感
占地:104.9平方米
農村一層平房別墅設計施工圖效果圖,外觀簡約時尚,17萬到19萬
占地:168平方米
一層中式風格自建小院,白墻黛瓦舒適宜居,享受舒適愜意的鄉村
占地:263.94平方米
12×11米兩層農村建房圖紙,農村建房最佳戶型,簡單的風格
占地:140平方米
三層樓房設計圖紙含效果圖,外觀造型高低錯落,別致大方
占地:152.4平方米
對稱型歐式別墅設計圖,穩重實用,開間18米,適合全國農村建
占地:228.2 平方米
歐式風格三層別墅建筑設計圖,復式樓中樓結構
占地:138平方米
簡單的二層樓房圖片及設計方案,自建樓房必看
占地:140平方米
新中式三層別墅設計圖紙(含效果圖),110平農村自建房施工圖推
占地:110平方米
農村自建二層半樓房效果圖,美觀大氣布局合理,很適合農村人自
占地:160.11平方米
占地130平方米中式二層小樓房設計圖紙,農村自建戶型實用
占地:136.04平方米
230平方米豪華歐式二層別墅CAD設計圖紙帶外觀效果圖,21.6×15米
占地:236平方米
農村二層四合院設計圖,秒殺各種洋別墅
占地:220平方米
?13.5x9米這尺寸火了!好多人家照著建這款二層別墅,簡單實用
占地:115.11平方米
中式二層三合院設計圖紙含外觀效果圖片,大氣又實用
占地:216.04平方米
10×12米三層別墅戶型,挑空大客廳設計,圈粉無數的爆款方案
占地:120平方米
推薦:10套新農村自建房設計圖,2026年最新設計
閱讀次數:4825737次
100套鄉村別墅圖片大全,2026年最新設計
閱讀次數:2492203次
6款農村蓋一層平房的設計圖,10萬元就能建起來
閱讀次數:1852637次
這11個一層農村自建房別墅火爆了朋友圈!我最喜歡戶型十!你呢
閱讀次數:750268次
農村6萬元建一層小別墅圖,你敢相信嗎
閱讀次數:567686次
農村5萬塊就能自建房,6套普通房子設計圖分享,你沒看錯!
閱讀次數:419410次
8套農村漂亮三間平房圖片,非常適合在農村修建!
閱讀次數:411197次
農村自建房化糞池怎么做?附方案及施工過程
閱讀次數:391783次
農村一層三間平房設計圖,告別土氣養老房,讓人忍不住點贊
閱讀次數:350581次
新農村二層樓房圖片造價12萬,挑一套回家建房吧!
閱讀次數:349126次
