
|
現在有地的農村人可幸福了,家家戶戶都可以蓋別墅了,還真不是給你吹,農村有錢人可是越來越多了。其實自建房和別墅之間就差幾張設計圖,有了好的設計,才可以有好的造型啊,那樣的話才可以蓋出好房子來。今天小編就給大家帶來幾款12×13房屋設計圖戶型,堪稱完美,為什么呢?就聽小編好好的給大家介紹一下吧。 戶型一:農村二層簡約小別墅設計圖,主體造價20萬左右
圖紙介紹:本戶型墻體顏色為淺色,簡約風格,共有4個臥室,足夠滿足普通一家人居住需求,還有陽臺和涼亭,方便晾曬東西和乘涼。
占地面積:12.0m*13.0m,140平方米左右; 建筑層高:二層; 建筑高度:9.5米(含屋頂); 設計功能: 一層戶型:客廳、餐廳、廚房、衛生間、主臥(帶衛生間)、臥室; 二層戶型:起居室、主臥(帶衛生間)、臥室x2、衛生間、娛樂室、陽臺、涼亭; 戶型二:農村簡約二層樓房設計圖,經典時尚
圖紙介紹:本戶型外觀簡單漂亮,經典時尚,主體造價28萬左右;外觀采用真石漆裝飾,非常秀氣精致。
占地面積:12.0m*12.7m,138平方米左右; 建筑層高:二層; 建筑高度:9.86米(含屋頂); 設計功能: 一層戶型:客廳、餐廳、廚房、衛生間、主臥(帶衛生間)、臥室; 二層戶型:客廳、主臥(帶衛生間)、臥室x2、書房、娛樂室、衛生間、陽臺、小露臺; 戶型三:帶地下室的農村二層別墅自建房戶型圖,外觀簡約大氣
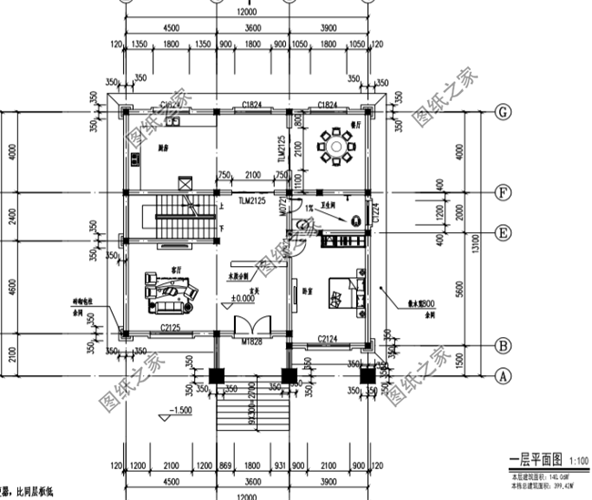
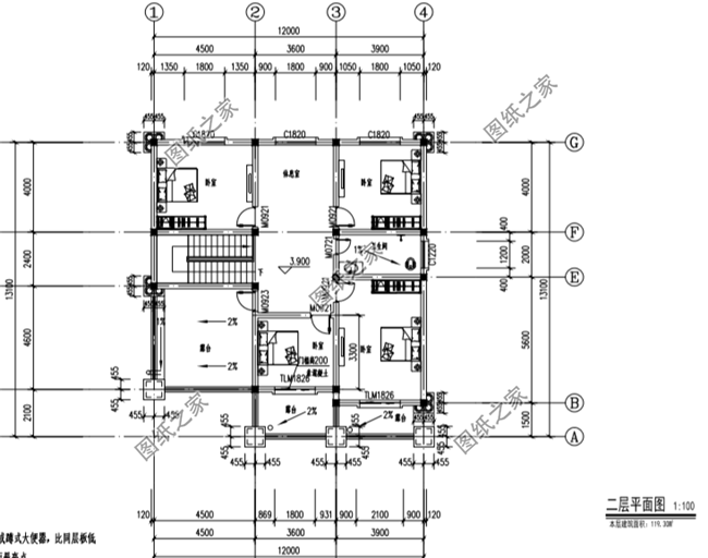
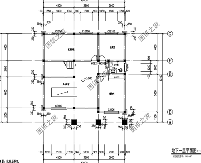
圖紙介紹:本戶型占地140平米左右,外觀明亮溫暖,下有地下室,上面有大露臺,全方位的滿足業主的居住需求,而且室內布局同樣的實用。
占地面積:12.00m*13.10m,140平方米左右; 建筑層高:二層; 建筑高度:10.08米(含屋頂); 設計功能: 地下一層戶型:家庭影院、棋牌室、乒乓球室、儲物間、衛生間; 一層戶型:玄關、客廳、餐廳、廚房 、臥室、衛生間; 二層戶型:臥室x4、衛生間、休息室、露臺x3; 戶型四:農村二層建房別墅設計圖紙,帶堂屋和陽光房,面寬12米
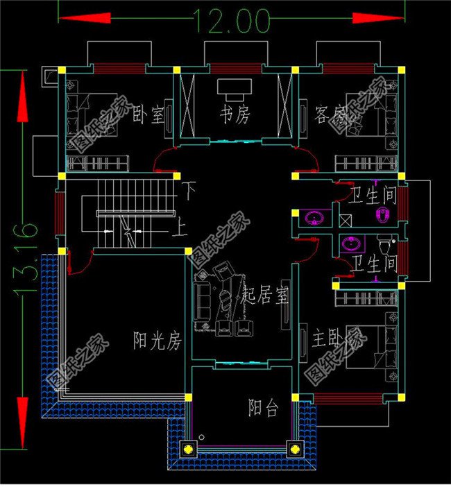
圖紙介紹:本戶型帶堂屋和陽光房,主體造價20萬左右;進門就是堂屋,廚房臥室分開,布局明確合理;二層臥室采光好、分布整齊,有書房方便工作學習;還有陽光房,可以作為休閑區。
占地面積:12m*13.16m,137.47平方米左右; 建筑層高:二層; 建筑高度:10.181米(含屋頂); 設計功能: 一層戶型:堂屋、茶室、客廳、餐廳、廚房、臥室、臥室(帶衛生間)、衛生間; 二層戶型:起居室、書房、臥室x2、臥室(帶衛生間)、衛生間、陽臺、陽光房; 小編今天推薦的這幾款12×13的二層房屋設計圖就介紹完了,你心動了嗎?
圖紙之家-專注農村別墅/自建房設計18年,集合國內200余位經驗豐富的設計師,被評為口碑最好的農村建筑設計公司! |

時尚的農村二層別墅圖紙設計,現代風格,簡約的外觀
占地:152平方米左右
農村現代三層建房子設計圖及圖片,平屋頂的設計
占地:150平方米
二層美式自建別墅設計圖,全套施工圖+外觀效果圖
占地:145平方米
四層(三層半)豪華歐式別墅房屋設計圖,外觀高端、大氣
占地:150平方米
125平方米新中式農村自建三層別墅建筑設計圖紙及效果圖
占地:124平方米
簡單大氣農村兄弟三層雙拼別墅住宅設計圖,13X8米
占地:110平方米左右
130平新農村二層住宅設計圖,外觀精致、漂亮
占地:130平方米
120多平米三層農村別墅設計圖,把實用做到極致,造價適中
占地:126.85平方米
10×12米三層別墅戶型,挑空大客廳設計,圈粉無數的爆款方案
占地:120平方米
百余平三層豪華別墅設計圖,高品位穩重耐看,全村都羨慕的豪華
占地:108.95平方米
最實用中式一層三合院別墅設計圖,簡約精致布局實用
占地:162.49平方米
外觀造型對稱的二層別墅設計圖,老虎窗+挑空客廳
占地:175.2平方米
帶屋頂平臺的一層農村小別墅圖,有閣樓有露臺
占地:152平方米
200平米二層自建房別墅設計圖,外觀漂亮布局實用
占地:207.09平方米
帶院子的四間二層別墅房屋設計圖,帶獨立車庫
占地:350平方米
豪華歐式三層別墅住宅設計圖紙,占地面積150平方米
占地:150平方米
二層復式小別墅設計圖,樓中樓結構,外觀漂亮,簡單
占地:120平方米
新中式三層樓房設計圖紙,帶地下室,地下車庫,帶電梯
占地:230平方米
一層中式風格自建小院,白墻黛瓦舒適宜居,享受舒適愜意的鄉村
占地:263.94平方米
120平米簡單實用型農村小別墅設計圖,二層屋頂為全露臺,小開間
占地:120平方米
推薦:10套新農村自建房設計圖,2026年最新設計
閱讀次數:4825737次
100套鄉村別墅圖片大全,2026年最新設計
閱讀次數:2492203次
6款農村蓋一層平房的設計圖,10萬元就能建起來
閱讀次數:1852637次
這11個一層農村自建房別墅火爆了朋友圈!我最喜歡戶型十!你呢
閱讀次數:750268次
農村6萬元建一層小別墅圖,你敢相信嗎
閱讀次數:567686次
農村5萬塊就能自建房,6套普通房子設計圖分享,你沒看錯!
閱讀次數:419410次
8套農村漂亮三間平房圖片,非常適合在農村修建!
閱讀次數:411197次
農村自建房化糞池怎么做?附方案及施工過程
閱讀次數:391783次
農村一層三間平房設計圖,告別土氣養老房,讓人忍不住點贊
閱讀次數:350581次
新農村二層樓房圖片造價12萬,挑一套回家建房吧!
閱讀次數:349126次
