
|
這款二層別墅設計圖開間進深19.6×13.6米,首層占地面積266.56㎡,總建筑面積517.11㎡,主體造價預算大概50萬。一層設有3廳4臥1衛1娛樂室1洗衣房,二層設有5臥1廳2陽臺1衛1洗衣房。
效果圖 紅磚式外墻,體現出傳統中國紅磚特色建筑的復古和時尚,既舒適又美觀。養老,環境好,深受大眾的喜愛,這也是很多選擇回農村建房的人,共同的出發點。 室內布局:
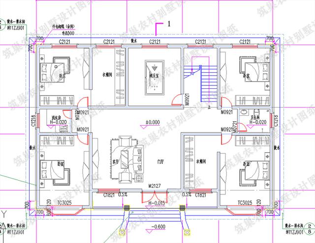
一層平面圖 一層:門廳、客廳、2臥室(帶衣帽間)、2臥室、娛樂室、洗衣房、衛生間。
二層平面圖 二層:客廳、2臥室(帶衣帽間、陽臺)、2臥室、臥室(陽臺)、洗衣房、衛生間。 可能大家都會有這個疑問?廚房餐廳呢?其實很多農村的宅基地都很大,有院子,很多家庭把廚房餐廳建在副樓,與主樓分離,這樣既做到臟凈分區。 圖紙之家-專注農村別墅/自建房設計18年,集合國內200余位經驗豐富的設計師,被評為口碑最好的農村建筑設計公司! |

20萬以內二層歐式小別墅設計方案,全套施工圖+效果圖
占地:115平方米
歐式三層樓房設計圖,客廳中空,旋轉樓梯,帶土灶房
占地:206平方米
最新網紅二層別墅,寬敞時尚沉穩大氣,布局實用正好滿足您的需
占地:110平方米
農村平屋頂三層現代風別墅戶型圖,簡約實用經濟顏值高
占地:111.9平方米
170平方米新農村現代樓中樓三層別墅設計施工圖紙及效果圖
占地:170平方米
農村三層帶露臺、帶車庫房屋設計圖,含外觀圖片
占地:155平方米
鄉下一層門面二層別墅設計圖紙,帶門面的自建房方案
占地:198.4平方米
鄉村兩層半150平帶閣樓別墅房屋設計圖,客廳大、臥室多
占地:150平方米
面寬11米現代風二層小別墅,平屋頂設計,緊跟潮流時尚前衛
占地:94.43平方米
簡單平房農村自建一層別墅設計圖,時尚大氣,造價經濟
占地:166平方米
好看精致的三層自建房別墅設計圖,開間12米進深12米左右
占地:125.73平方米
90平米三層農村房子設計圖,簡單大氣實用
占地:94.28平方米
百余平三層豪華別墅設計圖,高品位穩重耐看,全村都羨慕的豪華
占地:108.95平方米
二層現代風格雙拼別墅設計圖,平屋頂,帶地下室設計
占地:192.47平方米
農村16萬一層平房小院設計圖,左右對稱布局好,南北方都能建
占地:195.9平方米
經典農村二層小別墅設計圖紙帶露臺(含外觀效果圖)
占地:110平方米
農村120平米兩層樓的房子設計圖,外觀新穎
占地:120平方米
豪華大氣三層農村房屋設計圖,對稱的主體設計大氣恢宏
占地:240平方米
最新款農村三層自建房戶型設計圖及外觀圖片照片,鄉村蓋房精選
占地:112.56平方米
時尚創意型二層小別墅設計圖,占地面積110平方米,外觀清新典雅
占地:110平方米
推薦:10套新農村自建房設計圖,2026年最新設計
閱讀次數:4825737次
100套鄉村別墅圖片大全,2026年最新設計
閱讀次數:2492203次
6款農村蓋一層平房的設計圖,10萬元就能建起來
閱讀次數:1852637次
這11個一層農村自建房別墅火爆了朋友圈!我最喜歡戶型十!你呢
閱讀次數:750268次
農村6萬元建一層小別墅圖,你敢相信嗎
閱讀次數:567686次
農村5萬塊就能自建房,6套普通房子設計圖分享,你沒看錯!
閱讀次數:419410次
8套農村漂亮三間平房圖片,非常適合在農村修建!
閱讀次數:411197次
農村自建房化糞池怎么做?附方案及施工過程
閱讀次數:391783次
農村一層三間平房設計圖,告別土氣養老房,讓人忍不住點贊
閱讀次數:350581次
新農村二層樓房圖片造價12萬,挑一套回家建房吧!
閱讀次數:349126次
