
|
現在農村建房一般都是建兩三層較為普遍,四五層的都在少數,但現在宅基地越來越小,一樓還要增加車庫,頂樓還要隔熱無法住,只有中間樓層住人才比較舒適。如果建三層,只能二樓住人,有的人口多的家庭顯得有點局促了。下面為大家推薦款造價55萬的四層新農村自建房,不論從外觀還是布局上,均充分考慮農村住戶的需求,最大限度滿足生活需要,家庭人口多的朋友有意向建房可作為參考哦!
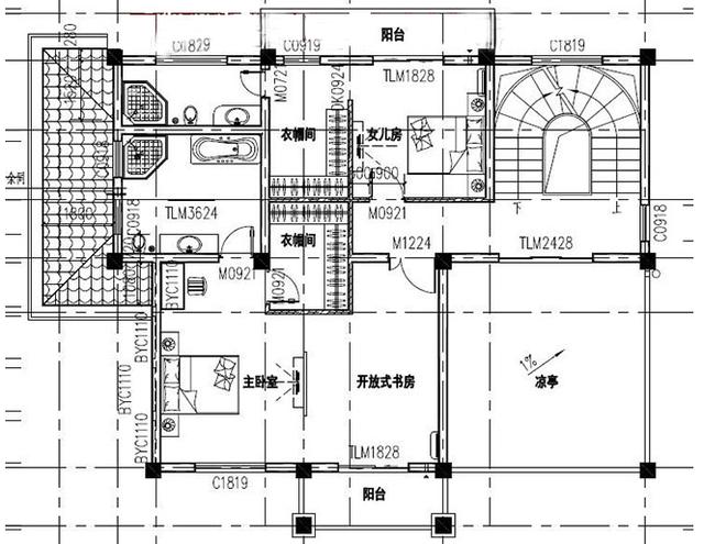
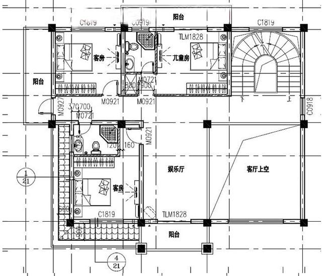
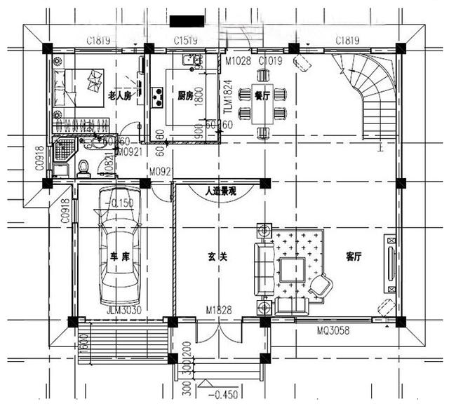
本戶型為現代新中式四層復式別墅房屋設計圖,含效果圖,外觀看起來現代、高端,復式客廳+旋轉樓梯,讓本來豁亮的客廳更高端,采光、通風良好,帶車庫(車庫可以改成臥室)。占地面積:13.90m*12.30m,占地150平方米左右;建筑層高:四層;建筑高度:15.57米(含屋頂);
設計功能: 一層戶型展示:玄關、客廳、餐廳、廚房、臥室、衛生間、車庫(可以建成臥室); 二層戶型展示:客廳上空、休閑廳、臥室x3(其中一個臥室帶衛生間)、陽臺x3;【建造時可以把主衛改成公衛,把公衛改成主衛,兒童房向南開門】 三層戶型展示:主臥(帶開放式書房、衣帽間、衛生間)、次臥(帶衣帽間、和衛生間)、娛樂露臺、陽臺x2; 四層戶型展示:活動大廳、雜物房、露臺x2;
立面圖: ![]() 圖紙之家-專注農村別墅/自建房設計18年,集合國內200余位經驗豐富的設計師,被評為口碑最好的農村建筑設計公司! |

異形宅基地二層農村別墅設計圖,現代風時尚又大氣
占地:242.03平方米
經濟實用二層農村自建房設計圖,新中式風格12x11米
占地:114平方米
網紅款兩層別墅圖紙設計圖,外觀簡單好看,后面不開窗
占地:171平方米左右
175平方米二層別墅設計CAD圖紙及效果圖大全,中式風格
占地:175平方米
建一棟就成了村里的門面擔當!三層歐式別墅,左右對稱太氣派
占地:173.67平方米
農村二層仿古尖屋頂別墅設計圖,外觀古樸耐看
占地:87平方米左右
兩層半20萬農村自建房,占地120平米左右
占地:120平方米
農村20萬元二層小樓圖片及全套圖紙,外型美造價低
占地:多種戶型
小青瓦一層中式小院三合院設計施工圖,白墻青瓦古色古香
占地:155.3平方米
雅致的鄉下二層蓋別墅設計圖紙,造價35萬左右
占地:178平方米
165平方米三層雙拼農村房屋設計圖大全14x12
占地:168平方米
農村二層住宅樓房設計圖紙,全套方案(施工圖+效果圖)
占地:113平方米
復式挑空二層別墅設計圖,占地175平米,建好住著很舒適
占地:175.44平方米
鄉村自建獨棟三層別墅樓房設計圖,預算30萬內
占地:120平方米
新款鄉村二層半別墅設計圖紙帶效果圖,三層別墅外觀圖片大全
占地:108.795平方米
14米×10米農村二層小別墅自建房設計圖,外觀設計時尚美觀
占地:125平方米
簡單經濟一層自建養老房,12米乘9.5米,溫暖舒適施工簡單
占地:103.2平方米
140平方米新農村三層房屋設計圖,磚混結構帶地下室
占地:138平方米左右
110平左右農村復式二層小樓設計圖,外觀非常受歡迎
占地:112平方米
200平方二層小別墅設計圖紙,含效果圖,歐式風格帶車庫
占地:197.6平方米
推薦:10套新農村自建房設計圖,2026年最新設計
閱讀次數:4825737次
100套鄉村別墅圖片大全,2026年最新設計
閱讀次數:2492203次
6款農村蓋一層平房的設計圖,10萬元就能建起來
閱讀次數:1852637次
這11個一層農村自建房別墅火爆了朋友圈!我最喜歡戶型十!你呢
閱讀次數:750268次
農村6萬元建一層小別墅圖,你敢相信嗎
閱讀次數:567686次
農村5萬塊就能自建房,6套普通房子設計圖分享,你沒看錯!
閱讀次數:419410次
8套農村漂亮三間平房圖片,非常適合在農村修建!
閱讀次數:411197次
農村自建房化糞池怎么做?附方案及施工過程
閱讀次數:391783次
農村一層三間平房設計圖,告別土氣養老房,讓人忍不住點贊
閱讀次數:350581次
新農村二層樓房圖片造價12萬,挑一套回家建房吧!
閱讀次數:349126次
