
|
新農村建別墅跟過去不一樣,不再只為了面子,而是更注重里子。具體來說就是房型外觀還是要大氣漂亮,但房間室內布局,也就是平面圖布局要更加溫暖舒適,比如說,臥室最好是全南。今天給大家奉上一套宅基地尺寸需求僅為11米X9米的二層農村別墅戶型,臥室全南,值得大家建房參考。
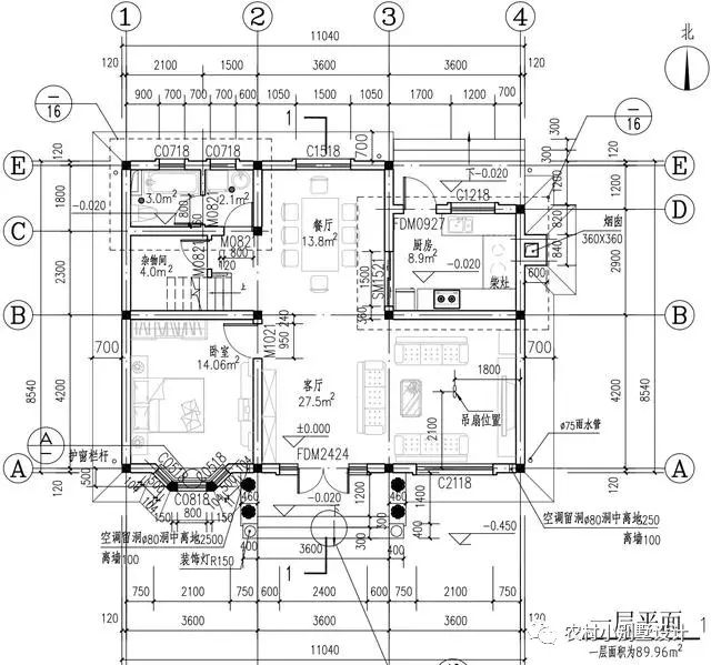
一層平面圖:南向是橫向客廳和老人房,客廳面寬大,改為堂屋加客廳的布局也是可以的。餐廳緊鄰廚房,廚房留后門,預留柴火灶及煙筒,使用更加方便。
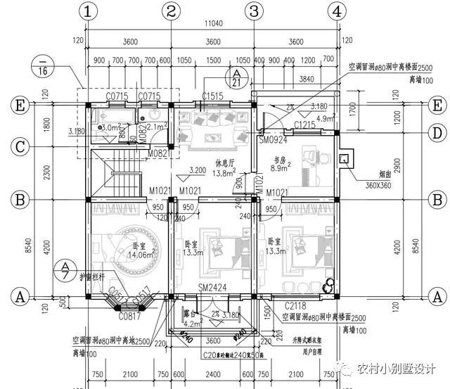
二層平面圖:二層以居住為主,三間臥室全部朝南,北側有起居室和書房。現在農村主臥流行套間,也就是自帶衛生間,東南主臥如增加衛生間,面積也夠。
立面圖:最近農村建房子,外墻主流就是文化石,外墻涂料或者真石漆。不管實用性,經濟性,美觀性都是經過驗證,比全貼瓷磚好很多。
![]() 圖紙之家-專注農村別墅/自建房設計18年,集合國內200余位經驗豐富的設計師,被評為口碑最好的農村建筑設計公司! |

150平方米自建現代二層別墅施工設計圖帶外觀圖,15x10米
占地:多戶型可選
新中式三層樓房設計圖,外觀精致布局也是相當的樸實
占地:140平方米
150平米左右歐式三層鄉村別墅設計圖,客廳中空
占地:150平方米
140平中式徽派一層別墅設計圖,一層照樣建這樣漂亮
占地:140平方米
一層農村三合院別墅設計方案圖,秀氣優美,大氣又實用
占地:191.18平方米
帶車庫徽派風格三層別墅房屋設計圖,新農村住宅設計推薦
占地:140平方米
14×12米二層自建房蓋別墅設計圖,簡單對稱也很漂亮
占地:157.868平方米
簡歐復式四層別墅房屋設計圖,外觀圖高端、大氣
占地:143平方米
農村四間二層別墅設計圖,七室二廳帶車庫,室內寬敞鄰居都羨慕
占地:217.1平方米
歐式二層別墅cad施工圖紙,含效果圖,歐式別墅設計圖紙展示
占地:189平方米
兩層三間農村房屋設計圖,新農村住宅方案推薦
占地:155平方米
農村二層住宅設計圖,大窗戶客廳,一起享受大面積采光的溫暖
占地:220平方米
自建一層三合院別墅圖,雅致鄉村居造價經濟,南北通透更宜居!
占地:176.36平方米
鄉下建房一層戶型圖,一層住宅設計圖紙,誰說一層平房不能叫別
占地:200平方米
農村小戶型三層別墅設計圖,平屋頂,造價20萬左右
占地:80平方米
農村二層住宅樓圖紙及效果圖,帶地下室,戶型好
占地:220平方米
農村帶閣樓一層房屋設計施工圖,13X9米
占地:102平方米
造價33萬左右超漂亮的三層別墅圖紙設計圖,旋轉樓梯戶型設計
占地:121.59平方米
新中式別墅一層自建房設計,戶型實用緊湊
占地:170.54平方米
大二間三層別墅戶型圖,三層新農村自建房設計圖紙及效果圖
占地:116平方米
推薦:10套新農村自建房設計圖,2026年最新設計
閱讀次數:4825737次
100套鄉村別墅圖片大全,2026年最新設計
閱讀次數:2492203次
6款農村蓋一層平房的設計圖,10萬元就能建起來
閱讀次數:1852637次
這11個一層農村自建房別墅火爆了朋友圈!我最喜歡戶型十!你呢
閱讀次數:750268次
農村6萬元建一層小別墅圖,你敢相信嗎
閱讀次數:567686次
農村5萬塊就能自建房,6套普通房子設計圖分享,你沒看錯!
閱讀次數:419410次
8套農村漂亮三間平房圖片,非常適合在農村修建!
閱讀次數:411197次
農村自建房化糞池怎么做?附方案及施工過程
閱讀次數:391783次
農村一層三間平房設計圖,告別土氣養老房,讓人忍不住點贊
閱讀次數:350581次
新農村二層樓房圖片造價12萬,挑一套回家建房吧!
閱讀次數:349126次
