
|
在任何地方待久了的人,都想換個環境。于是農村的想融入城市,城市的想回歸農村。農村的融入城市,無非就是想尋找更多的發展機會,為自己以后的生活過得更加舒心。而城里人看慣了高樓大廈,羨慕農村那青山綠水的環境,最適合居住養老。不同的心境,不同的選擇,你說是不是這么回事。 農村適宜居住,這個是沒有錯的,在農村空氣好,有的可以自己種糧食種,菜,種瓜果,養雞養鴨,可以養豬養牛養羊,可以種種花養養草,這是適宜居住的最佳環境。 基于城市生活的壓力,農村惠民政策增多,所以近幾年很多在外地打工的農村人紛紛回老家創業,修建新房,如果打算在農村建新樓房的,不妨設計個帶有商鋪的別墅戶型,這樣日后還可以做點小生意。 下面帶來1套帶有商鋪別墅樓房設計方案。
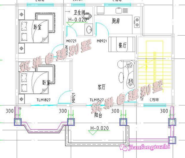
圖紙詳情 層數:四層 結構形式:框架結構 主體造價:26-30萬 開間:10.7米 進深:9.3米 占地面積:94.10平方米 建筑面積:294.98平方米 平面布局圖:
一層平面圖 一 層:商鋪、衛生間
二層平面圖 二 層:客廳、廚房、餐廳、2臥室、陽臺、衛生間
三層平面圖 三 層:客廳、廚房、餐廳、2臥室、陽臺、衛生間
三層平面圖 四層:2臥室、露臺、衛生間 圖紙之家-專注農村別墅/自建房設計18年,集合國內200余位經驗豐富的設計師,被評為口碑最好的農村建筑設計公司! |

蓋別墅圖紙新農村簡歐二層房屋設計圖,12米×12米左右
占地:128平方米左右
經典三層農村房屋設計圖紙,占地100平米左右,外觀典雅精致,內
占地:100平方米
3層20萬農村自建房設計圖,占地110平米
占地:110平方米
一層帶商鋪的四層樓房別墅設計圖紙和效果圖,房屋戶型圖
占地:133平方米
最新網紅二層別墅,寬敞時尚沉穩大氣,布局實用正好滿足您的需
占地:110平方米
130平方米湖南二層復式自建房屋設計圖紙12x11米
占地:128平方米
平屋頂12米寬別墅三層設計圖,平頂照樣建的漂亮
占地:129.6平方米
經典三層雙拼樓房設計圖,經典外觀,經典戶型
占地:225平方米
簡單大方二層小別墅設計圖,占地180平米,造型美觀,構造整齊有
占地:180平方米
超實用超現代兩層自建小樓圖,純粹極簡風格
占地:184平方米左右
125平方米新農村二層房屋施工設計CAD圖紙加效果圖
占地:125平方米
不帶廚房的一層別墅設計圖,三臥二廳超巴適,室外獨立廚房
占地:120平方米
歐式三層雙拼別墅設計圖,精致大氣布局實用,兄弟建房上上之選
占地:234平方米
260平方米仿歐式二層別墅設計圖紙及效果圖,22X12米
占地:260平方米
2026最新款50萬左右農村三層別墅設計圖,客廳中空
占地:160平方米
80-90平米二層經典小別墅房屋設計圖,左右對稱外觀
占地:88.46平方米
二層復式農村別墅設計圖,進深12米,戶型堪稱完美
占地:193.2平方米
高端農村三層歐式房屋設計圖紙,帶車庫,帶露臺
占地:163平方米
雙戶168平方米小戶型新農村雙拼樓房設計建筑圖紙帶外觀圖
占地:168平方米
一層半中式合院別墅設計圖,帶配房,有庭有院有品位
占地:135平方米左右
推薦:10套新農村自建房設計圖,2026年最新設計
閱讀次數:4825737次
100套鄉村別墅圖片大全,2026年最新設計
閱讀次數:2492203次
6款農村蓋一層平房的設計圖,10萬元就能建起來
閱讀次數:1852637次
這11個一層農村自建房別墅火爆了朋友圈!我最喜歡戶型十!你呢
閱讀次數:750268次
農村6萬元建一層小別墅圖,你敢相信嗎
閱讀次數:567686次
農村5萬塊就能自建房,6套普通房子設計圖分享,你沒看錯!
閱讀次數:419410次
8套農村漂亮三間平房圖片,非常適合在農村修建!
閱讀次數:411197次
農村自建房化糞池怎么做?附方案及施工過程
閱讀次數:391783次
農村一層三間平房設計圖,告別土氣養老房,讓人忍不住點贊
閱讀次數:350581次
新農村二層樓房圖片造價12萬,挑一套回家建房吧!
閱讀次數:349126次
