
|
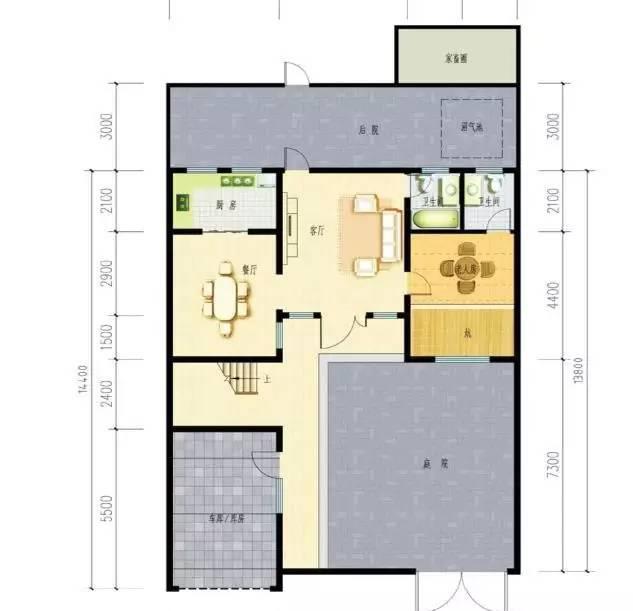
該戶型客廳采用現代年輕人喜歡的設計類型,挑空設計,美觀大氣,一樓的老人房還帶有土炕,方便冬天給老人取暖,還設有車庫,方便車輛出入。內設有小庭院,可栽種花草竹葉,營造一個充滿詩意的中式庭院生活。
這款二層農村別墅圖紙開間11.4米,進深13.8米,占地面積101.9㎡,總建筑面積203.8㎡,院落占地面積205㎡,采用磚混結構,主體造價約20萬。一層設有2廳1廚2衛1車庫,二層設有1廳3臥2衛1陽臺。
功能設計及室內布局
一層:庭院、車庫、挑空客廳、餐廳、廚房、老人房(帶土炕、衛生間)、公衛、后院
二層:起居室、臥室(帶陽臺)、臥室(帶衛生間)、臥室、公衛 圖紙之家-專注農村別墅/自建房設計18年,集合國內200余位經驗豐富的設計師,被評為口碑最好的農村建筑設計公司! |

農村10萬元一層小別墅平房設計圖大全,含效果圖
占地:120平方米
三層新農村小別墅設計圖紙,占地120平米,客廳中空,帶大露臺
占地:120平方米
帶大套間新農村二層別墅自建房設計圖紙帶效果圖
占地:185平方米
13×16米農村自建樓房三層別墅戶型設計圖,大氣
占地:168平方米
135平鄉村三層復式樓房設計圖,自建房推薦
占地:135平方米
異形宅基地二層農村別墅設計圖,現代風時尚又大氣
占地:242.03平方米
新中式帶露臺30萬左右農村三層別墅,客廳中空
占地:110平方米
二層平頂別墅設計圖,漂亮經濟實用二層農村小別墅最新房屋設計
占地:多種戶型
105平方米新農村三層別墅設計圖,全套CAD建筑圖+效果圖
占地:105平方米
三層新農村自建小型別墅設計圖及效果圖,三間三層樓房戶型
占地:114平方米
農村養老房還是一層好,帶閣樓的一層房子設計圖
占地:135平方米
農村四間房屋設計圖經典戶型,這樣設計美觀、實用
占地:169平方米
農村一層養老別墅設計圖,兩個戶型方案可選
占地:多種戶型
農村兄弟雙拼平房別墅設計圖,獨門獨戶,一層也能建雙拼
占地:274.18平方米
農村四間二層別墅設計方案圖,外觀精致、時尚
占地:152平方米
占地180平豪華三層農村別墅自建房設計圖,歐式與現代相融合
占地:183.706平方米
二層復式農村豪宅別墅設計圖,挑空客廳旋轉樓梯高級感十足
占地:215.43平方米
140平方米農村三層復式房屋設計施工圖,開放式廚房
占地:143平方米
經濟實用二層復式樓房設計圖 ,占地150平方米,造價25萬左右
占地:150平方米
120平方房子設計圖,農村120平建房設計圖推薦
占地:122平方米
推薦:10套新農村自建房設計圖,2026年最新設計
閱讀次數:4825737次
100套鄉村別墅圖片大全,2026年最新設計
閱讀次數:2492203次
6款農村蓋一層平房的設計圖,10萬元就能建起來
閱讀次數:1852637次
這11個一層農村自建房別墅火爆了朋友圈!我最喜歡戶型十!你呢
閱讀次數:750268次
農村6萬元建一層小別墅圖,你敢相信嗎
閱讀次數:567686次
農村5萬塊就能自建房,6套普通房子設計圖分享,你沒看錯!
閱讀次數:419410次
8套農村漂亮三間平房圖片,非常適合在農村修建!
閱讀次數:411197次
農村自建房化糞池怎么做?附方案及施工過程
閱讀次數:391783次
農村一層三間平房設計圖,告別土氣養老房,讓人忍不住點贊
閱讀次數:350581次
新農村二層樓房圖片造價12萬,挑一套回家建房吧!
閱讀次數:349126次
