
|
俊秀清雅,飄逸靈氣的徽派建筑一直為世人所喜愛,那經典的素雅配色,大氣利落的建筑形態,歷經歲月依然傲然于世間;相信再也沒有什么建筑風格,能跟徽派設計這般,意蘊深厚。 今天的這套別墅面寬8.4米,進深13.7米,占地面積105平方米,建筑面積245平方米,總高度12.5米,共設有6室 2廳 3衛 1廚 1書房 1衣帽間 1陽臺 2露臺 1活動區。 立體圖:
別墅外觀上仍是傳統典雅的建筑造型,筆調清雅,自然清秀。寄寓生生不息之吉意的大屋脊吻,高聳雪白的馬墻頭,古樸淡雅的青瓦,集山川風景之靈氣,融中國風俗文化之精華,溫婉而詩意。
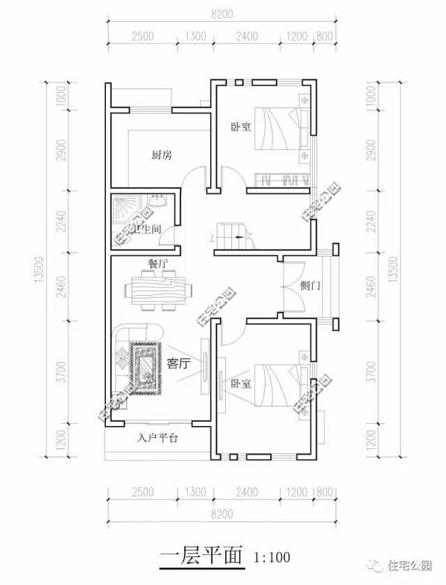
平面布局圖: 首層設計雙入戶門,方便進出,雙臥室的配備設計從一定程度上緩解了現在農村生活擁擠的情況。
二層無獨立起居空間,多臥室設計,主臥居北帶獨立衣帽間設計,兩次臥居南相連方便日常生活。
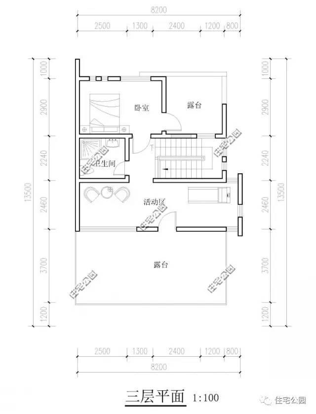
陽臺和露臺的綜合運用,在滿足住戶日常晾曬需求的同時,更注重于周遭環境的互動性,更加隨性自由。
轉載請注明出自別墅設計網:http://m.bjcyqiyejia.com/ 千套別墅設計帶別墅圖片 |

農村二層半帶露臺別墅圖片及設計圖,戶型方案比較經典
占地:123平方米
簡單漂亮實用的三層自建房設計圖,帶露臺,占地170平方米
占地:170平方米
農村實用三層樓房圖片,占地140平米左右,客廳中空
占地:140平方米
100平復式三層別墅房屋設計圖,客廳挑高,采光好,臥室多
占地:100平方米
一層鄉村自建別墅設計方案推薦,含外觀圖片
占地:148平方米
10萬農村別墅設計圖小戶型,經濟、耐看、實用
占地:多種戶型
農村蓋房設計大全一層房子的設計圖紙,色調清新靚麗
占地:220平方米
帶閣樓的二層半別墅設計圖和效果圖,外飾簡單但不失奢華
占地:210平方米
中式四合院風格別墅設計圖,平屋頂,書房、茶室、健身房一應俱
占地:370平方米
新中式農村三層四合院別墅設計圖,四合院風格的別墅圖
占地:177平方米
10X13米新款歐式三層別墅樓房設計圖,外觀清新明亮
占地:140平方米
兩層20萬農村自建房設計圖,經典農村建房款式,越看越有韻味
占地:160平方米
經典小戶型新農村房屋住宅設計圖,10萬左右
占地:80平方米
140平三層自建房別墅設計圖,外觀圖大氣、美觀
占地:140平方米
農村中式一層合院別墅設計圖,帶小院子規劃設計
占地:202平方米左右
農村二層半別墅圖片大全,二層半別墅設計圖推薦
占地:160平方米
經濟型實用歐式一層小樓房別墅平房設計圖,11X10米
占地:103平方米
110平方米新農村二層別墅設計圖及效果圖,12.36x9.36米
占地:115平方米
新款農村三層雙拼聯體別墅戶型圖,客廳中空,單戶120平米左右
占地:240平方米
新農村私人別墅建筑設計施工圖,全套別墅設計圖紙
占地:多種戶型
11×10造價25萬帶神位平頂三層自建房設計圖
閱讀次數:29678次
2021年最流行的10套經典農村別墅,最愛那一套?
閱讀次數:25940次
進深8.5米,開間12米,帶堂屋的樓房設計圖怎么做?
閱讀次數:23817次
18萬搞定的農村二層別墅,詳細施工過程實拍!含別墅設計圖!
閱讀次數:17744次
5款帶落地窗的農村別墅,大氣的別墅就應該是這個樣子
閱讀次數:17217次
15套2017年最新潮二層農村別墅,這樣蓋既實用又上檔次!
閱讀次數:12834次
2021農村建的最多的2款二層小別墅戶型,爆款是有理由的
閱讀次數:11876次
農村自建房這樣預埋水電管,老師傅說規范又實用
閱讀次數:11471次
9X12米二層農村別墅,不超過規定面積還能有小院
閱讀次數:10618次
農村自建房打地基的費用是多少,需要注意哪些問題?
閱讀次數:10549次
