
|
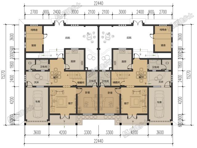
設計說明: 這是一座具有傳統韻味的雙拼民宅,白色和原木色的搭配總能給人一種寧靜的感覺,樸實的外觀造型傳達出平淡的鄉土氣息。 案例基本信息 ? 占地尺寸:22.4x15.3m ? 占地面積:343㎡ ? 建筑面積:557㎡ ? 建筑情況:8室4廳6衛2廚房2車庫2雞鴨舍2豬舍2庫房 ? 建筑結構:磚混結構 ? 造價估算:50萬 平面圖 一層室內布局相對緊湊,臥室朝向良好,餐廳與廚房連接,可通往后院,雞鴨舍和豬舍的布置為農村生活帶來了便捷,糞污處理可從后院直接清理出院。
▲ 一層平面圖 二層設置三個臥室一個衛生間,儲藏間位于家禽舍上方,可通過室外階梯到達,與室內互不相通,可避免搬運物品對室內造成的污染。
▲ 二層平面圖 閣樓設置庫房,可存放室內雜物,也可根據自身需要將其改造成臥室或娛樂室等。
▲ 閣樓平面圖
▲ 屋頂平面圖 立面圖
▲ 南立面
▲ 北立面
▲ 東立面
▲ 西立面 這個兩層帶閣樓的雙拼別墅,占地面積相對合理,其布局在農村非常實用,外觀設計也符合大眾審美,如果您想建一個同樣風格的房子可以聯系我們的設計師,我們將盡心盡力為您設計一個符合您家庭需求的住宅。 轉載請注明出自別墅設計網:http://m.bjcyqiyejia.com/ 千套別墅設計帶別墅圖片 |

10萬內2層小洋樓設計圖,平屋頂,戶型設計合理
占地:90平方米
農村三間兩層樓房設計圖,帶車庫,戶型簡單實用
占地:140平方米
開間12米的三層簡歐別墅設計圖,農村建房布局實用住的舒服
占地:108.15平方米
簡單實用農村自建房五間一層別墅設計圖
占地:238平方米左右
2021最受歡迎的三層農村小別墅設計圖紙,占地155平方米
占地:155平方米
鄉下建房一層戶型圖及全套圖紙,養老房,還是一層好
占地:210平方米
新農村復試兩層半樓房設計圖,帶大露臺,簡單經濟實用大氣
占地:190平方米
大氣自建三層雙拼別墅戶型圖方案,完美的戶型就是它
占地:287平方米
240平方米新農村漂亮的兄弟雙拼別墅設計圖紙,單戶120平
占地:239平方米
120平方米帶地下室三層復式別墅戶型圖,現代風格
占地:120.78平方米左
230平(單戶115平)雙拼別墅房屋設計圖及效果圖大全
占地:230平方米
120平米左右農村房屋設計圖占地面積適宜,外觀舒適大氣
占地:120平方米
二層農村小別墅設計圖,造價經濟實惠,參考價30萬以內
占地:140平方米
180平米農村二層小別墅設計圖,外觀漂亮,帶露臺
占地:180平方米
簡單二層半現代復式別墅設計圖,簡約大氣帶開放車庫
占地:174平方米左右
美式風格鄉村兩層小別墅自建房設計圖,外觀圖好看
占地:150平方米
三間三層樓房設計圖紙,復試的設計,漂亮的一塌糊涂
占地:175平方米
四層豪華別墅設計圖及效果圖,高端房屋設計方案
占地:250平方米
100平方米左右新農村二層房屋設計建筑CAD圖紙帶外觀效果圖
占地:102平方米
最新140平米三層自建房屋設計圖紙,本戶型帶小院
占地:140平米
11×10造價25萬帶神位平頂三層自建房設計圖
閱讀次數:29678次
2021年最流行的10套經典農村別墅,最愛那一套?
閱讀次數:25940次
進深8.5米,開間12米,帶堂屋的樓房設計圖怎么做?
閱讀次數:23817次
18萬搞定的農村二層別墅,詳細施工過程實拍!含別墅設計圖!
閱讀次數:17744次
5款帶落地窗的農村別墅,大氣的別墅就應該是這個樣子
閱讀次數:17217次
15套2017年最新潮二層農村別墅,這樣蓋既實用又上檔次!
閱讀次數:12834次
2021農村建的最多的2款二層小別墅戶型,爆款是有理由的
閱讀次數:11876次
農村自建房這樣預埋水電管,老師傅說規范又實用
閱讀次數:11471次
9X12米二層農村別墅,不超過規定面積還能有小院
閱讀次數:10618次
農村自建房打地基的費用是多少,需要注意哪些問題?
閱讀次數:10549次
