
|
占地面積小,經典又時尚的小別墅最受人們的歡迎,為了滿足更多人的需求,特地為大家分享占地不大哦100平的樓房設計圖,這6套別墅中,很多都有7個臥室,但是大家都喜歡第5套,難道都是因為它有火炕? 第一套:
干凈的小房子,簡單的造型,再配上一個長滿綠樹紅花的小院,好一個愜意的田園生活! 360度全景圖展示: 平面布局圖: 此戶型一層設:客廳、車庫、衛生間、老人房、餐廳、廚房;
二層設:3臥室、1客廳、1休閑臺、1陽臺、2衛生間;
三層設:3臥室、1衛生間、1小客廳、1露臺。此戶型共7個臥室,可實現四世同堂。
第二套:
這是一個三層半的別墅戶型。面寬10.8米,設有封閉式車庫,側面是一瀉而下的落地窗,戶型美觀,建筑立面豐富。與庭院的菜園、花園相得益彰,生活氣息濃重,寧靜、舒適。 360度全景圖展示:
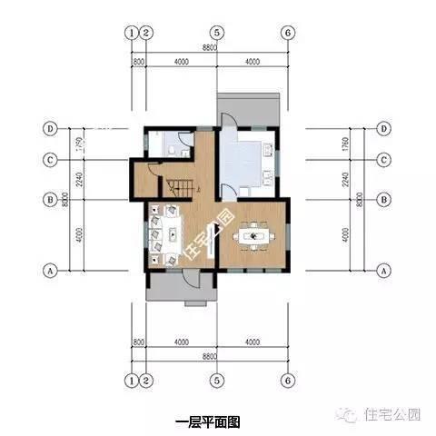
平面布局圖: 此戶型一層設:車庫、客廳、臥室、廚房、餐廳、衛生間;
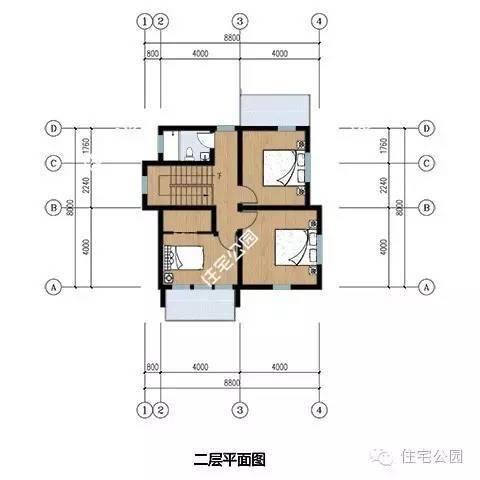
二層設:3臥室、1客廳、1衛生間,其中一個臥室設有獨立書房;
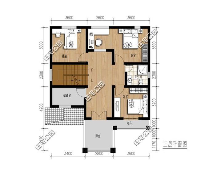
三層設:3臥室、1儲藏間、1大陽臺,共7個臥室,可以隔代居住。
第四層是多功能用房設計,同時配有一個陽臺和一個露臺供家人娛樂。
第三套:
簡單的線條、簡單的造型是這座房子最大的特點,它占地僅7X10.4米,設計師卻在有限的空間里設計出了更多可利用的空間。 360度全景圖展示: 平面布局圖: 戶型一層設:廚房、餐廳、客廳、雜物間、衛生間;
二層設:3臥室、1起居室、1衛生間;
三層設3臥室、1起居室、1衛生間,在有限的空間內,設計師布置了6個臥室,很實用。
第四套:
此別墅戶型方正,采光好,弧形采光窗外用文化石來裝飾,起到了很好的藝術裝飾的效果。 360度全景圖展示: 平面布局圖: 戶型一層設:臥室、客廳、廚房、餐廳、衛生間;
二層設2臥室、客廳、書房、衛生間;
三層設:1臥室、1客廳、1客房、2陽臺。
第五套:
這是一個2層的別墅,磚混結構、框架結構都可以建造,它的外墻貼瓷磚,是一個經濟的戶型,很適合咱農村人建造。 360全景圖展示: 平面布局圖: 戶型一層設:帶火炕的老人房、臥室、廚房、餐廳、客廳、衛生間;
二層設2臥室、1陽光房、1書房、1衛生間、1茶歇間、1陽臺。
第六套: 此戶型面寬8.8米,進深8米,占地面積僅僅70平方米,在設計師的手下卻呈現了一個很時尚的別墅。 360度全景圖展示:
平面布局圖: 戶型一層設:客廳、餐廳、廚房、儲藏室、衛生間;
二層設:3臥室、1衛生間,適合五口之家。
這6套戶型,你更喜歡哪套呢? 轉載請注明出自別墅設計網:http://m.bjcyqiyejia.com/ 千套別墅設計帶別墅圖片 |

最新潮的90平方米三層房屋設計圖 ,古樸典雅又不失時尚
占地:90平方米
農村四層樓房設計圖,含外觀圖片,自建四層房屋推薦
占地:140平方米
二層農村小別墅設計圖,造價經濟實惠,參考價30萬以內
占地:140平方米
高端三層新中式農村別墅設計圖,仿合院布局,外觀霸氣
占地:133.64平方米
現代四合院別墅設計圖紙,二層戶型,外觀時尚漂亮
占地:287.97平方米
260平方米歐式四層別墅設計圖20X18米,造價108萬
占地:260平方米
新農村三層小別墅設計圖紙,占地160平左右,好看不貴
占地:160平方米
三層平屋頂別墅房屋設計圖及外觀效果圖
占地:150平方米
10米×13米最好看的農村三層樓房圖,客廳中空
占地:124平方米
150平左右新農村自建房設計圖,含外觀效果圖
占地:150平方米
90平方米新農村二層自建房屋設計全套施工圖紙帶外觀效果圖10X
占地:90平方米
鄉村二層別墅設計圖,含外觀效果圖,設計師推薦
占地:140平方米
二層農村自建小別墅設計圖,歐式風格,占地160平方米
占地:160平方米
115平方米農村三層別墅設計圖,預算30萬左右
占地:115平方米
農村4間2層樓房設計圖,戶型方正,四平八穩的二層農村別墅
占地:180平方米
歐式獨棟二層小別墅設計圖,客廳中空,占地126平米
占地:120平方米
125平方米新中式農村自建三層別墅建筑設計圖紙及效果圖
占地:124平方米
90平方米農村二層房屋設計施工圖紙及效果圖,11x8.5米
占地:90平方米
簡歐式三層半(4層)農村自建房別墅設計圖效果圖,帶車庫戶型
占地:127平方米
2021帶車庫三層雙拼別墅房屋設計圖,配色淡雅低調
占地:224平方米
11×10造價25萬帶神位平頂三層自建房設計圖
閱讀次數:29678次
2021年最流行的10套經典農村別墅,最愛那一套?
閱讀次數:25940次
進深8.5米,開間12米,帶堂屋的樓房設計圖怎么做?
閱讀次數:23817次
18萬搞定的農村二層別墅,詳細施工過程實拍!含別墅設計圖!
閱讀次數:17744次
5款帶落地窗的農村別墅,大氣的別墅就應該是這個樣子
閱讀次數:17217次
15套2017年最新潮二層農村別墅,這樣蓋既實用又上檔次!
閱讀次數:12834次
2021農村建的最多的2款二層小別墅戶型,爆款是有理由的
閱讀次數:11876次
農村自建房這樣預埋水電管,老師傅說規范又實用
閱讀次數:11471次
9X12米二層農村別墅,不超過規定面積還能有小院
閱讀次數:10618次
農村自建房打地基的費用是多少,需要注意哪些問題?
閱讀次數:10549次
