
|
走進北方,你會發現北方的別墅都是一層,而南方大多是都是兩三層甚至更多。這是由于北方雨水少,一層設計不會影響日常正常生活,而南方如果沒有做好防水防潮的措施,那基本是不能住人的。那如果做好的這些是否能在南方建這樣的一層別墅呢,今天小編為大家推薦5套15萬元以內農村別墅圖。 戶型一 總面積93.78平米,面寬12.6米,設計有三室一廳二衛一廚房一儲物間。主要特點:開放式餐廳增加別墅的闊度,三間臥室都朝陽,廚房和儲物間相連,冬天烤火取暖更方便安全。
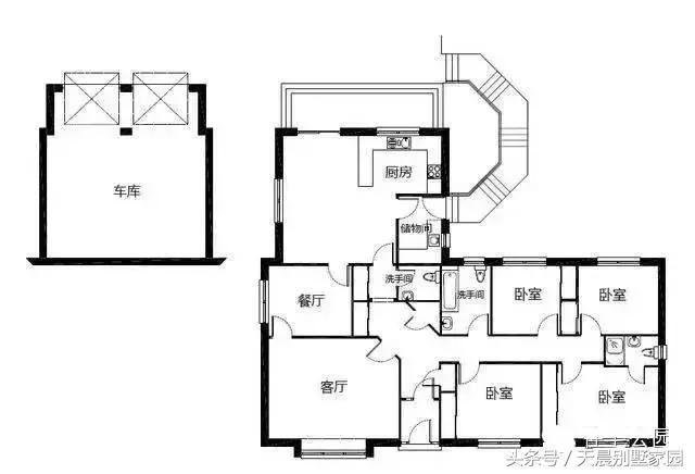
戶型二 總面積106平米,面寬13.2平米,設計有二室二廳二衛,并帶車庫。車庫遠離臥室,動靜結合不影響休息。這套帶車庫的戶型最適合不過了。
戶型三 總建筑面積102.9平米,面寬13.2米,設計有二室二廳二衛,并帶車庫。這套戶型車庫相對獨立,減少噪音干擾,同時車庫與居住相連,在北方雨雪天再也不發愁了。臥室入口避開了廚房,油污分離。
戶型四 總建筑面積不包括車庫165平米,設計有四室二廳二衛。有獨立餐廳,主臥帶衛生間,內部交通走道四通八達,移步換景,內含風水,寓意人脈廣泛,順風順水。
戶型五: 總建筑面積153.5平米,設計有四室二廳三衛一車庫。由于地基不平整,宅地面積不夠,建成半地下式的車庫。車庫上方建成露臺形式,節省空間的同時更好地服務于生活。
轉載請注明出自別墅設計網:http://m.bjcyqiyejia.com/ 千套別墅設計帶別墅圖片 |

120平農村三層自建房屋設計圖,旋轉樓梯復式別墅戶型方案
占地:119.23平方米
120平方房子設計圖,農村120平建房設計圖推薦
占地:122平方米
氣派的歐式風格三層房子設計圖紙,外觀圖太漂亮了
占地:132平方米
100平簡單三層房屋設計圖紙,新農村自建推薦圖紙
占地:100平方米
簡單現代平屋頂兩層四間自建樓房設計圖紙施工方案,簡潔又實用
占地:192平方米
新中式三層樓房設計圖,外觀精致布局也是相當的樸實
占地:140平方米
兄弟合建房新農村三層雙拼別墅建筑圖紙及效果圖,300平方米
占地:301平方米
三層平屋頂別墅房屋設計圖及外觀效果圖
占地:150平方米
鄉村最美四合院設計圖及外觀效果圖片,國人的理想住宅
占地:280.62平方米
造價40萬內三層別墅房屋設計方案,設計圖+外觀效果圖
占地:150平方米
新農村二層房屋設計圖紙(全套建筑施工圖紙+外觀效果圖)
占地:85平方米
新款現代一層小別墅設計圖,農村自建平房推薦戶型
占地:129.36平方米
最美中式農村別墅二層三間的房子圖,帶土灶房,娛樂室,大露臺
占地:180平方米
13×16米農村自建樓房三層別墅戶型設計圖,大氣
占地:168平方米
帶堂屋設計一層5間平房新農村自建別墅效果圖全套施工圖
占地:198.41平方米
農村兩層新中式別墅圖紙設計圖,外觀圖片大氣,21萬左右
占地:108平方米
農村三層復式自建樓房設計圖,外觀圖大氣
占地:130平方米
大平方大面積別墅設計方案圖,樓中樓客廳中空
占地:247平方米
130平米左右三層農村小別墅,經典永不過時三層小洋樓
占地:130平方米
簡潔大氣140平方三層房子設計圖,帶車庫戶型極佳
占地:140平方米
11×10造價25萬帶神位平頂三層自建房設計圖
閱讀次數:29678次
2021年最流行的10套經典農村別墅,最愛那一套?
閱讀次數:25940次
進深8.5米,開間12米,帶堂屋的樓房設計圖怎么做?
閱讀次數:23817次
18萬搞定的農村二層別墅,詳細施工過程實拍!含別墅設計圖!
閱讀次數:17744次
5款帶落地窗的農村別墅,大氣的別墅就應該是這個樣子
閱讀次數:17217次
15套2017年最新潮二層農村別墅,這樣蓋既實用又上檔次!
閱讀次數:12834次
2021農村建的最多的2款二層小別墅戶型,爆款是有理由的
閱讀次數:11876次
農村自建房這樣預埋水電管,老師傅說規范又實用
閱讀次數:11471次
9X12米二層農村別墅,不超過規定面積還能有小院
閱讀次數:10618次
農村自建房打地基的費用是多少,需要注意哪些問題?
閱讀次數:10549次
