
|
在大多數人的農村人眼里,建別墅,跟自己沒關系,其實不然,今天小編就給大家分享一款15萬就能建起主體的小型別墅圖片,一般家庭也能圓別墅夢,接下來就給大家上圖【文末有詳細介紹】
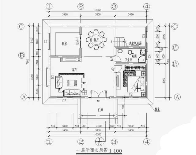
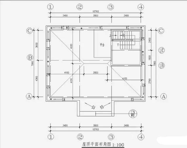
平面圖介紹
一層:設有門廊、客廳、臥室、衛生間、餐廳、廚房等,保證了農家生活的需求,大大的客廳也方便鄰居串門和日常接待之用。
二層:陽臺、客廳、兒童房/書房、臥室兩間、衛生間、棋牌室,一家人的主要生活和娛樂空間都可以安排在這里。
建筑層數:二層 門面寬:10.76m 進深:7.96m 占地面積:90平方米 預算造價:13萬 建筑高度:10.5m(含屋頂) 屋頂:坡屋頂 建筑結構:磚混結構 主體造價參考:15萬左右 看完這套別墅覺得怎么樣?如果對你有幫助,趕緊收藏吧! 轉載請注明出自別墅設計網:http://m.bjcyqiyejia.com/ 千套別墅設計帶別墅圖片 |

110平方米農村三層自建房設計圖紙帶外觀圖
占地:110平方米
二層半農村小別墅設計方案圖,南方設計圖精選
占地:82平方米
農村二層住宅樓圖紙及效果圖,帶地下室,戶型好
占地:220平方米
適合兄弟自建的二層雙拼別墅設計方案,帶效果圖
占地:180平方米
歐式小型二層別墅效果圖片,帶全套Cad別墅設計圖紙
占地:120平方米
農村三層樓房設計圖紙及效果圖,經典自建圖紙
占地:201平方米
簡單實用農村自建小樓二層別墅設計圖,戶型造型簡約好看
占地:146平方米
歐式三層豪宅樓設計圖紙及外觀效果圖,占地180平左右
占地:177.82平方米
農村四間兩層別墅房屋設計圖,含外觀圖片
占地:160平方米
新農村帶陽臺三層樓房圖紙,占地180平米左右,豪華大氣
占地:180平方米
復式客廳挑空三層別墅設計圖,帶外觀效果圖片,推薦
占地:150平方米
農村兩層半樓房設計圖,平面功能分區明確,布置合理
占地:180平方米
農村27萬二層自建別墅設計圖,占地140平米左右,戶型極好
占地:140平方米
100平復式三層別墅房屋設計圖,客廳挑高,采光好,臥室多
占地:100平方米
三層歐式豪華別墅設計方案,全套圖紙+效果圖
占地:168平方米
新農村復試兩層半樓房設計圖,帶大露臺,簡單經濟實用大氣
占地:190平方米
高端農村三層歐式房屋設計圖紙,帶車庫,帶露臺
占地:163平方米
260平方米仿歐式二層別墅設計圖紙及效果圖,22X12米
占地:260平方米
一層半房屋別墅設計圖,帶閣樓圖、帶露臺,外觀新穎時尚
占地:130平方米
帶地下室的一層別墅設計圖,農村自建房比較合適
占地:206平方米
11×10造價25萬帶神位平頂三層自建房設計圖
閱讀次數:29678次
2021年最流行的10套經典農村別墅,最愛那一套?
閱讀次數:25940次
進深8.5米,開間12米,帶堂屋的樓房設計圖怎么做?
閱讀次數:23817次
18萬搞定的農村二層別墅,詳細施工過程實拍!含別墅設計圖!
閱讀次數:17744次
5款帶落地窗的農村別墅,大氣的別墅就應該是這個樣子
閱讀次數:17217次
15套2017年最新潮二層農村別墅,這樣蓋既實用又上檔次!
閱讀次數:12834次
2021農村建的最多的2款二層小別墅戶型,爆款是有理由的
閱讀次數:11876次
農村自建房這樣預埋水電管,老師傅說規范又實用
閱讀次數:11471次
9X12米二層農村別墅,不超過規定面積還能有小院
閱讀次數:10618次
農村自建房打地基的費用是多少,需要注意哪些問題?
閱讀次數:10549次
