
|
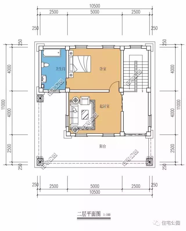
二層別墅一直是農村人的心頭所好,方正的布局設計很符合咱們國人所追求的天圓地方一說,無多余浪費宅地,細心規劃整體繪與圖紙之上,一眼就能看清楚平面布局走向,同時外觀設計并無過于花俏,僅以純白墻漆為主調,簡潔自然。 今天的這套戶型面寬11米,進深11.5米,占地面積126平方米, 建筑面積186平方米,總高度9.2米,共設1室3廳 2衛 1廚 1鍋爐房 1露臺。
立面圖: 別墅以法式建筑為主調,用簡約的設計手法所彰顯演繹,占地不大,卻很適合自建生活,營造出品質生活感受。
平面布局圖: 別墅很適合剛結婚的小夫妻自建,二層獨立臥房設計大氣通透,滿足當下農村人的居住需求;首層布局無多余設計,加大的客廳布局使空間整體趨于利落簡潔,整體設計精簡得當,提升居住品質。
技術指標及造價表
轉載請注明出自別墅設計網:http://m.bjcyqiyejia.com/ 千套別墅設計帶別墅圖片 |

二層現代別墅設計圖及效果圖,外觀美觀,大氣
占地:195平方米
帶庭院的農村一層別墅圖紙設計,外觀時尚好看
占地:184平方米左右
160平方米經典鄉村二層房屋設計圖紙
占地:160平方米
農村120平三層樓房設計圖,造型現代,帶屋頂花園
占地:120平方米
農村最漂亮二層歐式別墅設計圖,面寬16.5米(含車庫)
占地:180.366
不帶廚房餐廳的二層別墅設計圖,農村建房很多人都這樣做
占地:124平方米左右
農村二層仿古尖屋頂別墅設計圖,外觀古樸耐看
占地:87平方米左右
二層農村小別墅設計圖,造價經濟實惠,參考價30萬以內
占地:140平方米
90平方米農村二層房屋設計施工圖紙及效果圖,11x8.5米
占地:90平方米
歐式二層別墅平面圖,全套cad設計圖紙和外觀效果圖
占地:202平方米
高端大氣三層半別墅客廳挑空設計,豪華農村自建房圖
占地:179.52平方米
20萬農村自建三層別墅設計圖,外觀美觀,戶型實用
占地:105平方米
歐式新農村三層復式樓自建房別墅圖紙,旋轉樓梯設計
占地:128平方米
最漂亮的農村二層小樓設計圖紙,簡約又大氣時尚
占地:120平方米
農村三層雙拼房屋建筑施工設計圖紙,帶車庫
占地:180平方米
農村超級好看的現代風格兩層小樓圖,清新優雅
占地:多種戶型
新古典中式風格別墅設計圖,全套施工圖+效果圖
占地:188平方米
仿古別墅建筑設計圖,外觀效果圖+全套施工圖
占地:142平方米
最新潮的90平方米三層房屋設計圖 ,古樸典雅又不失時尚
占地:90平方米
35萬內三層自建別墅設計圖,外觀美觀,戶型舒適
占地:135平方米
11×10造價25萬帶神位平頂三層自建房設計圖
閱讀次數:29678次
2021年最流行的10套經典農村別墅,最愛那一套?
閱讀次數:25940次
進深8.5米,開間12米,帶堂屋的樓房設計圖怎么做?
閱讀次數:23817次
18萬搞定的農村二層別墅,詳細施工過程實拍!含別墅設計圖!
閱讀次數:17744次
5款帶落地窗的農村別墅,大氣的別墅就應該是這個樣子
閱讀次數:17217次
15套2017年最新潮二層農村別墅,這樣蓋既實用又上檔次!
閱讀次數:12834次
2021農村建的最多的2款二層小別墅戶型,爆款是有理由的
閱讀次數:11876次
農村自建房這樣預埋水電管,老師傅說規范又實用
閱讀次數:11471次
9X12米二層農村別墅,不超過規定面積還能有小院
閱讀次數:10618次
農村自建房打地基的費用是多少,需要注意哪些問題?
閱讀次數:10549次
