
|
轉載請注明出自別墅設計網:http://m.bjcyqiyejia.com/ 千套別墅設計帶別墅圖片 |

三層歐式豪華別墅設計方案,全套圖紙+效果圖
占地:168平方米
140平方米三層半新農村房屋別墅設計圖,帶車庫
占地:140平方米
別致美觀的簡歐二層別墅房屋設計圖,含外觀效果圖
占地:145平方米
鄉村自建獨棟三層別墅樓房設計圖,預算30萬內
占地:120平方米
大戶型帶車庫的兩層農村自建房設計圖,施工簡單,戶型方正
占地:236平方米
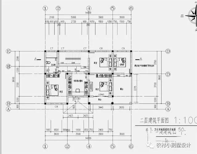
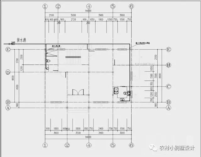
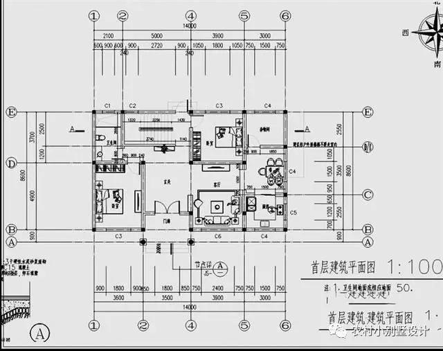
150平方米農村二層房屋建筑設計圖,15.2x9.4米
占地:148平方米
簡單大氣農村兄弟三層雙拼別墅住宅設計圖,13X8米
占地:110平方米左右
農村兄弟雙拼別墅三層,美觀氣派,室內布局合理實用
占地:300平方米
美式二層別墅設計圖,含外觀效果圖,造型精美
占地:144平方米
農村最好看兩層小樓圖及全套CAD施工圖紙,新中式風格,簡潔大氣
占地:150平方米
170平方米農村二層房屋設計施工圖,外觀圖時尚、好看
占地:172平方米
90平方米農村二層房屋設計圖紙(施工圖+效果圖)
占地:90平方米
農村自建四層百萬豪宅別墅設計圖,客廳中空
占地:170平方米
高端四間五間兩層別墅設計圖紙,開間20米自建房效果圖
占地:265平方米
175平大客廳三層別墅房屋設計圖,含外觀造型現代,美觀
占地:175平方米
100平米左右簡單實用的二層樓房設計圖,施工簡單造價低
占地:95平方米
南方新農村三層別墅設計圖紙,含效果圖,帶車庫
占地:120平方米
170平方米歐式三層雙拼別墅建筑設計圖紙及效果圖片
占地:172平方米
自建房共堂屋雙拼別墅設計圖方案,三層挑空復式戶型
占地:199.5平方米左右
普通農村二層房子設計圖 ,復式結構,帶車庫,占地160平米左右
占地:160平方米
11×10造價25萬帶神位平頂三層自建房設計圖
閱讀次數:29678次
2021年最流行的10套經典農村別墅,最愛那一套?
閱讀次數:25940次
進深8.5米,開間12米,帶堂屋的樓房設計圖怎么做?
閱讀次數:23817次
18萬搞定的農村二層別墅,詳細施工過程實拍!含別墅設計圖!
閱讀次數:17744次
5款帶落地窗的農村別墅,大氣的別墅就應該是這個樣子
閱讀次數:17217次
15套2017年最新潮二層農村別墅,這樣蓋既實用又上檔次!
閱讀次數:12834次
2021農村建的最多的2款二層小別墅戶型,爆款是有理由的
閱讀次數:11876次
農村自建房這樣預埋水電管,老師傅說規范又實用
閱讀次數:11471次
9X12米二層農村別墅,不超過規定面積還能有小院
閱讀次數:10618次
農村自建房打地基的費用是多少,需要注意哪些問題?
閱讀次數:10549次
