
|
項目地點:陜西地區 占地尺寸:10.80米X17.50米 建筑面積:179.00平方米 院落占地面積:196.00平方米 建筑占地面積:96.54平方米 建筑情況:具體可參考圖紙內容 建筑高度:9.30米 結構形式:磚混結構 設計人員:孔工
設計說明 本方案共兩層,四室兩衛兩廳的空間格局。可滿足一家三代(6口人左右)的使用需求。采用雙坡屋面,灰磚灰瓦,使整個建筑在色調上渾然一體,再配以半圓形的窗戶和磚砌花格欄桿等建筑元素,使整個建筑具有古老居住建筑的特色又符合現代的居住心理需求。 平面布置PINGMIANBUZHI 簡要說明: 該方案,宅地利用率高,室內布局經典合理,整體格局設計方正,在建筑結構上也十分工整,降低施工難度,是一套性價比高,施工方便,符合時代氣息。 前后各有院落,可采用雙拼院落的組合形式或者多拼組合。前院沿街布置主要是平時的機動車停車位和休閑納涼的場所,分別設有人行和機動車出入口既方便又實用;后院為副業勞作區,設有禽舍、畜舍和農具房,還設有沼氣池以充分利用能源,做到減小污染充分利用的小生態循環庭院。
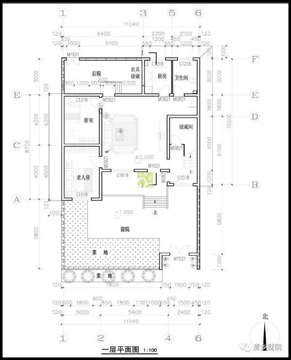
一層建筑面積:96.54平方米,主要由老人房、客廳、廚房和餐廳組成,功能分區明確,既能滿足平時會客接待的要求,也滿足老年人的生活需求。
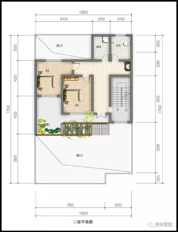
二層建筑面積:82.46平方米,由兩間臥室及公共衛生間組成,還設有一個南向的露臺,房間功能靈活多變可同時滿足家庭生活的各種需要。整個建筑都能享受充足的自然陽光,既能滿足建筑的日照要求又能提高房間的舒適度。
屋頂設置簡單大方,凸顯住宅的整體性。房屋通體采用坡屋頂,整潔方正。另此方案較為精美,空間闊度較大。在較大程度上彰顯了此建筑方案的合理性與統一性。
展成效果ZHANCHENGXIAOGUO
立面展示LIMIANZHANSHI
圖紙目錄 TUZHIMULU 建筑施工圖 建筑設計說明、一層平面圖、二層平面圖、屋頂平面圖、正立面圖、背立面圖、左立面圖、右立面圖、門窗表、樓梯平面圖、1-1剖面圖、節點詳圖; 結構施工圖 結構設計說明、基礎平面布置圖、基礎詳圖、一層柱結構平面圖、屋頂柱結構平面圖、一層梁結構平面圖、屋頂梁結構平面圖、一層結構平面圖、屋頂結構平面圖、樓梯結構圖; 給排水施工圖 給排水設計說明、一層給排水平面圖、二層給排水平面圖、屋頂給排水平面圖、給排水系統圖; 電氣施工圖 電氣設計說明與圖例、配電系統圖、弱電系統圖、一層照明平面圖、二層照明平面圖、一層插座平面圖、二層插座平面圖、一層弱電平面圖、二層弱電平面圖、基礎接地平面圖、屋頂防雷平面圖等。 小貼士 注:以上所涉及尺寸,以實際測量為準。 該方案僅供參考,如有需要,請聯系客服。 在清鄉墅院, 您獲得的是獨一無二的專屬定制服務! 在清鄉墅院, 您得到的是經過多重注冊工程師審核的放心服務! 在清鄉墅院, 您花的是請個人設計師的錢,買的是甲級設計院的服務! 真正懂行的業主,都選擇清鄉墅院! 自建房 找清墅 就夠了 轉載請注明出自別墅設計網:http://m.bjcyqiyejia.com/ 千套別墅設計帶別墅圖片 |

適合農村建造的二層房屋設計圖紙及效果圖,帶悶頂層,占地15
占地:150平方米
農村二層半別墅設計圖,簡單實用,造價低
占地:140平方米
農村三層樓房設計圖及圖片,客廳挑空,優化室內采光
占地:140平方米
110平方米二層自建小別墅設計CAD施工圖紙帶效果圖,12x13米
占地:110平方米
農村四間二層小洋樓設計圖,歐式別墅、現代洋氣
占地:200平方米
農村自建房設計圖,三層房屋設計圖及效果圖
占地:120平方米
二層美式花園洋房設計圖,帶堂屋戶型,外觀簡直美爆了
占地:159.32平方米
新農村中式三層四合院別墅設計戶型圖,農村自建四合院效果圖
占地:多種戶型可選
現代田園風格一層農村別墅設計圖效果圖,帶閣樓設計
占地:220平方米
160平方米左右二層自建別墅設計圖,對稱設計,23萬建好!
占地:157平方米左右
新農村兩層帶露臺自建房設計圖,造價30萬內
占地:170平方米
100平方米自建三層半別墅設計圖紙,帶地下車庫
占地:100平方米
中國最好看的二層農村房子圖片及施工圖紙,20萬現代風格
占地:130平方米
現代二層別墅房屋設計圖,帶外觀圖片
占地:138平方米
經典農村三層樓房設計圖,10個不同尺寸戶型,各種戶型供您選擇
占地:多種
2021最美三層別墅設計圖紙及效果圖,十佳最美農村別墅
占地:151平方米
二層半房子設計圖及效果圖,客廳中空,南北通透
占地:160平方米
復式三層帶車庫簡歐小別墅設計圖,農村三層房屋設計圖
占地:126平方米
130平新農村二層住宅設計圖,外觀精致、漂亮
占地:130平方米
農村最好看18萬左右兩層小樓圖,外觀、造型簡潔大方
占地:120平方米
11×10造價25萬帶神位平頂三層自建房設計圖
閱讀次數:29678次
2021年最流行的10套經典農村別墅,最愛那一套?
閱讀次數:25940次
進深8.5米,開間12米,帶堂屋的樓房設計圖怎么做?
閱讀次數:23817次
18萬搞定的農村二層別墅,詳細施工過程實拍!含別墅設計圖!
閱讀次數:17744次
5款帶落地窗的農村別墅,大氣的別墅就應該是這個樣子
閱讀次數:17217次
15套2017年最新潮二層農村別墅,這樣蓋既實用又上檔次!
閱讀次數:12834次
2021農村建的最多的2款二層小別墅戶型,爆款是有理由的
閱讀次數:11876次
農村自建房這樣預埋水電管,老師傅說規范又實用
閱讀次數:11471次
9X12米二層農村別墅,不超過規定面積還能有小院
閱讀次數:10618次
農村自建房打地基的費用是多少,需要注意哪些問題?
閱讀次數:10549次
