
|
隨著大家生活水平提高,農村的房子也是大變樣。套間變大平層,平層蓋二層,現在二層都不夠很多都要蓋三層了,今天就給大家介紹幾個三層別墅戶型給大家參考。 農村新款三層樓房:戶型1
點擊此處輸入圖片描述 該戶型地基東西長13.2米,南北寬13.4米,占地面積170平方米,建筑高度12m,建筑面積437平方米。整體外觀呈歐式風格戶型,左右對稱,羅馬柱的設計大氣,莊重。白色的外觀干凈優美。建議外墻用外掛石材或真石漆裝飾。
戶型內設8室5廳3衛1廚1陽臺1儲藏室,臥室都彼此獨立 造價預算: 造價范圍 : ¥40萬 ~ 80萬 分項用量與成本清單 戶型2
該戶型:東西長12.4m,南北進深13m;占地面積:145㎡;建筑面積:366㎡;總 高 度:12.65m。外觀采用歐式風格設計,戶型方正,設置大露臺
戶型內設7室3廳6衛1廚1露臺1雨棚, 預算造價: 造價范圍 : ¥30萬 ~ 60萬 分項用量與成本清單 戶型3
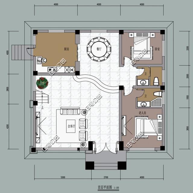
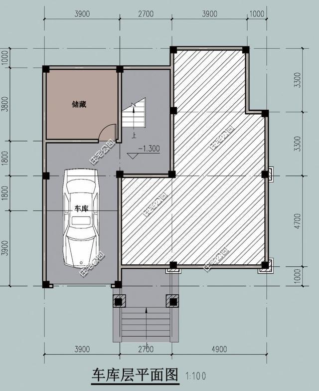
戶型東西向長12米,南北向進深13.6m,占地面積:133㎡。建筑面積:431㎡。總 高 度:14.2m。外觀歐式風格,古典優美,三層大露臺,美觀實用。
設10室 3廳 6衛 1廚 1門廳 1車庫 1儲藏室 2露臺、10室的設計即使是四室同堂的大家庭也足夠使用,再也不怕逢年過節親友來訪無處招待,三層主臥衛生間加衣帽間加書房配置豪華,一層起居區和居住區左右分開,動線分離避免了相互打擾。 預算造價: 造價范圍 : ¥40萬 ~ 80萬 分項用量與成本清單 以上報價僅供參考,各地區根據地區情況各有不同。 轉載請注明出自別墅設計網:http://m.bjcyqiyejia.com/ 千套別墅設計帶別墅圖片 |

100平二層精致小別墅房屋設計圖,外觀精致、漂亮
占地:100平方米
適合農村建造的二層房屋設計圖紙及效果圖,帶悶頂層,占地15
占地:150平方米
農村200平一層別墅房屋設計圖,外觀圖片時尚、漂亮
占地:200平方米
現代新中式四層復式別墅房屋設計圖,旋轉樓梯,含效果圖
占地:150平方米
農村一層帶小院房屋設計圖,帶院子一層自建房別墅戶型圖
占地:161.16平方米
三層新農村小別墅設計圖紙,占地120平米,客廳中空,帶大露臺
占地:120平方米
高端大氣四層復式別墅房屋設計圖,含外觀效果圖
占地:270平方米
農村中式兩層雙拼別墅房屋設計圖,含效果圖片
占地:200平方米
農村一層半房屋設計圖,帶外觀效果圖,外觀時尚
占地:155平方米
260平方米兩層帶車庫四合院房屋設計圖紙及效果圖
占地:260平方米
簡單實用農村自建小樓二層別墅設計圖,戶型造型簡約好看
占地:146平方米
最新高端四層別墅外觀效果圖及全套設計圖,真土豪就這樣建
占地:174.08平方米
鄉村二層半別墅圖紙設計,歐式風格、錯落有致,150平左右
占地:149.76
農村四層樓房外形設計圖,主臥配有陽臺和衣帽間還有衛生間
占地:126平方米
200平方二層小別墅設計圖紙,含效果圖,歐式風格帶車庫
占地:197.6平方米
農村10萬元一層小別墅設計圖紙,戶型實用又合理
占地:130平方米
鄉村高檔四層豪華別墅自建房設計圖,一層不帶餐廳廚房戶型
占地:147平方米
農村30萬別墅款式三層設計圖紙,帶地下儲藏室,挑空客廳
占地:110平方米
舒適大方三層房屋設計圖紙及圖片,占地150平米,布局合理,臥室
占地:150平方米
180平方別墅房屋設計圖,外觀效果圖美觀
占地:180平方米
11×10造價25萬帶神位平頂三層自建房設計圖
閱讀次數:29678次
2021年最流行的10套經典農村別墅,最愛那一套?
閱讀次數:25940次
進深8.5米,開間12米,帶堂屋的樓房設計圖怎么做?
閱讀次數:23817次
18萬搞定的農村二層別墅,詳細施工過程實拍!含別墅設計圖!
閱讀次數:17744次
5款帶落地窗的農村別墅,大氣的別墅就應該是這個樣子
閱讀次數:17217次
15套2017年最新潮二層農村別墅,這樣蓋既實用又上檔次!
閱讀次數:12834次
2021農村建的最多的2款二層小別墅戶型,爆款是有理由的
閱讀次數:11876次
農村自建房這樣預埋水電管,老師傅說規范又實用
閱讀次數:11471次
9X12米二層農村別墅,不超過規定面積還能有小院
閱讀次數:10618次
農村自建房打地基的費用是多少,需要注意哪些問題?
閱讀次數:10549次
