
|
? 占地尺寸:17.7米x17米 ? 占地面積:300.9㎡ ? 建筑面積:471㎡ ? 建筑情況:4室2廳4衛1廚房1餐廳1傭人房 ? 建筑結構:磚混結構 ? 造價估算:40萬元
設計說明: 在農村設計一套自建房的前提條件是擁有足夠面積的宅基地,有的宅基地面積不是很大所以更多的是考慮實現功能需要,而有的住戶宅基地很大這就需要我們盡可能去把宅基地充分利用起來。
該別墅在建筑外型上很有層次感,正面大的落地窗設計拉長了線條使其展現層次的同時更顯簡潔。
這所別墅的宅基地在能滿足功能需要的同時還建有大面積的陽臺,彰顯自建別墅與普通住宅相比在室外設計上的優勢。
別墅本身是一個較為明顯的歐美風格建筑,門口的一些綠植同時又很好的展示了歐美別墅外觀設計的特點。
車庫安排在別墅正面,車與人同出同入,在功能區域安排上顯得更加規矩有條理。 平面圖 一層主要設置家庭日常活動空間,傭人房的安排便于每日工作,另一臥室可以安排行動不便的老人居住。
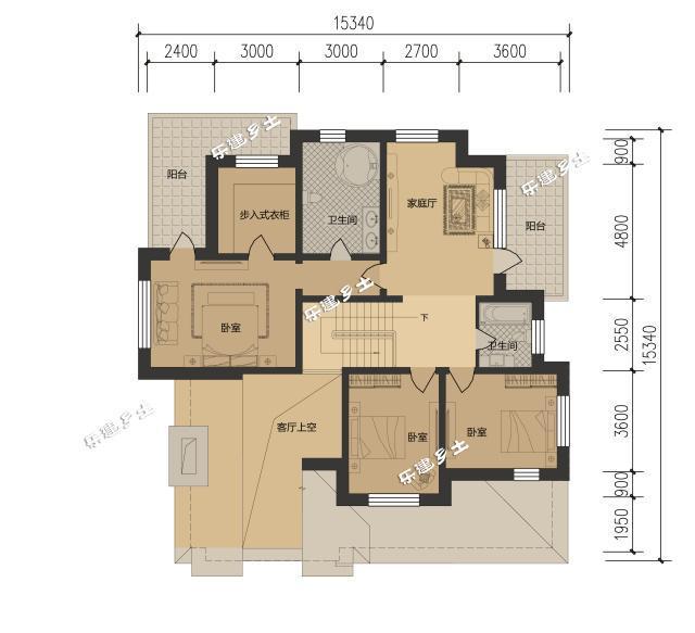
▲ 一層平面圖 二層以臥室為主另設家庭廳和衣帽間,與一層動靜分離。
▲ 二層平面圖
▲ 屋頂平面圖 立面圖 磚混結構的建筑一般會給人一種呆板、單調的感覺,很明顯該建筑在空間感和層次感上推翻了這種理解。
▲ 南立面
▲ 北立面
▲ 東立面
▲ 西立面 歐美別墅一般是沒有圍墻,景觀空間體系相協調。一棟好的住宅設計不僅要注重單體本身,戶型本身,更應該放眼于豐富室外空間模式。 轉載請注明出自別墅設計網:http://m.bjcyqiyejia.com/ 千套別墅設計帶別墅圖片 |

兩層樓房設計圖,兩層新農村樓房圖紙,外觀典雅古樸
占地:140平方米
農村15萬元一層半小樓圖,最新的戶型設計
占地:150平方米
二層農村自建四合院設計圖,中式外觀古樸有質感200-300平方米
占地:270平方米左右
鄉村二層別墅設計圖,含外觀效果圖,設計師推薦
占地:140平方米
農村三層房屋設計圖紙,三層農村住宅設計效果圖,11米*10米
占地:100平方米
20萬左右普通農村房子設計圖,二層簡約小別墅
占地:140平方米
鄉下復式三層房子設計圖,帶堂屋,客廳中空,輕奢風格
占地:190平方米
90平小戶型四層房屋設計圖,農村自建別墅推薦
占地:90平方米
農村25萬元二層小樓圖,經典大氣建成20年不過時
占地:150平方米
簡單質樸三層新農村小別墅設計圖紙,別墅圖片,戶型簡單合理實
占地:120平方米
一層半房屋別墅設計圖,帶閣樓圖、帶露臺,外觀新穎時尚
占地:130平方米
中國最美建筑四合院設計圖紙及效果圖,顏值爆棚
占地:152平方米左右
造價40萬內三層別墅房屋設計方案,設計圖+外觀效果圖
占地:150平方米
兄弟四間三層雙拼別墅設計圖,造價40萬左右
占地:210平方米
145平方米新農村二層別墅設計效果圖及施工圖,12.6米x11.4米
占地:147平方米
18X12米農村二層溫馨小別墅設計圖,美式風格
占地:203平方米
12x10米帶閣樓的農村一層半別墅設計圖,外觀洋氣
占地:110.54平方米
120平米農村三層房屋設計圖,客廳中空,戶型合理
占地:120平方米
簡歐風格別墅設計圖帶外觀效果圖,三層140平米戶型方案
占地:140平方米
15×10米農村二層四合院自建房戶型圖,小型四合院設計圖
占地:150平方米
11×10造價25萬帶神位平頂三層自建房設計圖
閱讀次數:29678次
2021年最流行的10套經典農村別墅,最愛那一套?
閱讀次數:25940次
進深8.5米,開間12米,帶堂屋的樓房設計圖怎么做?
閱讀次數:23817次
18萬搞定的農村二層別墅,詳細施工過程實拍!含別墅設計圖!
閱讀次數:17744次
5款帶落地窗的農村別墅,大氣的別墅就應該是這個樣子
閱讀次數:17217次
15套2017年最新潮二層農村別墅,這樣蓋既實用又上檔次!
閱讀次數:12834次
2021農村建的最多的2款二層小別墅戶型,爆款是有理由的
閱讀次數:11876次
農村自建房這樣預埋水電管,老師傅說規范又實用
閱讀次數:11471次
9X12米二層農村別墅,不超過規定面積還能有小院
閱讀次數:10618次
農村自建房打地基的費用是多少,需要注意哪些問題?
閱讀次數:10549次
