
|
現在回農村建房的朋友主要也是考慮兩個因素,要么是老房子太舊了,想家里老人住得舒服點;要么是家里的孩子快結婚了,城里房價虛高,還不如回村建房做婚房。不管是什么原因,建房一定要遵循實用這個原則,切不可盲目追求外觀內飾的豪華大氣。 下面這套圖片房屋設計, 美觀與實用兼具,一起來看看吧!
白色瓷磚外墻墻結合淺紅屋瓦,高低錯落的房屋形態,鍍膜玻璃裝飾的唯美落地窗,讓人心神蕩漾。
這套別墅外立面造型豐富,簡歐式風格既沉穩大氣又不會過分繁復,符合國人傳統審美,適合農村自建。
1樓設置客廳、臥室、廚房、餐廳、衛生間和車庫。玄關對面處設置隔檔,避免開門見山的尷尬。
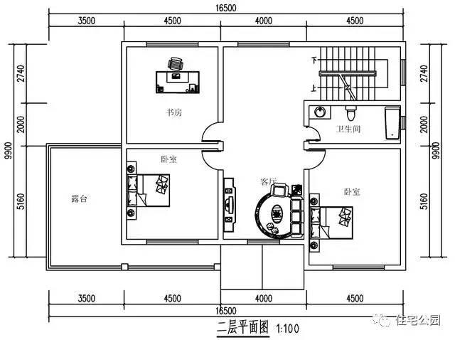
2樓設置客廳、2間臥室、書房、衛生間和露臺。除此之外2樓臥室頂部也設置了一個超大的露臺,雙露臺的設置一個作晾曬一個打造成露臺花園也是非常不錯的選擇。 你覺得這套別墅設計圖及效果圖怎么樣? 轉載請注明出自別墅設計網:http://m.bjcyqiyejia.com/ 千套別墅設計帶別墅圖片 |

農村蓋房設計大全一層房子的設計圖紙,色調清新靚麗
占地:220平方米
歐式三層小洋樓設計圖,外觀氣派,典雅、高貴
占地:145平方米
三層雙拼別墅效果圖及戶型設計圖,占地150平米
占地:150平方米
鄉下二層樓房住宅設計圖紙及效果圖,農村二層小洋樓
占地:140平方米
造價15萬經濟美觀一層農村別墅設計圖,占地150平米
占地:150平方米
高端大氣三層半別墅客廳挑空設計,豪華農村自建房圖
占地:179.52平方米
徽派3層農村小別墅設計圖,廣東新農村住宅設計圖集
占地:110平方米
農村最漂亮二層歐式別墅設計圖,面寬16.5米(含車庫)
占地:180.366
10X13米新款歐式三層別墅樓房設計圖,外觀清新明亮
占地:140平方米
面寬15米大氣的農村二層復式戶型別墅設計圖紙及外觀圖片
占地:173.28平方米
樓中樓客廳挑高二層別墅設計圖,復式別墅方案推薦
占地:122平方米
150平歐式別墅房屋設計圖,外觀精美、氣派
占地:150平方米
南方新農村三層別墅設計圖紙,含效果圖,帶車庫
占地:120平方米
農村二層住宅樓圖紙及效果圖,帶地下室,戶型好
占地:220平方米
農村三層復式自建樓房設計圖,外觀圖大氣
占地:130平方米
現代二層別墅房屋設計圖,帶外觀圖片
占地:138平方米
四合院別墅設計效果圖及平面圖,全套施工圖紙
占地:220平方米
高端四間五間兩層別墅設計圖紙,開間20米自建房效果圖
占地:265平方米
12×11米兩層農村建房圖紙,農村建房最佳戶型,簡單的風格
占地:140平方米
蓋別墅圖紙新農村簡歐二層房屋設計圖,12米×12米左右
占地:128平方米左右
11×10造價25萬帶神位平頂三層自建房設計圖
閱讀次數:29678次
2021年最流行的10套經典農村別墅,最愛那一套?
閱讀次數:25940次
進深8.5米,開間12米,帶堂屋的樓房設計圖怎么做?
閱讀次數:23817次
18萬搞定的農村二層別墅,詳細施工過程實拍!含別墅設計圖!
閱讀次數:17744次
5款帶落地窗的農村別墅,大氣的別墅就應該是這個樣子
閱讀次數:17217次
15套2017年最新潮二層農村別墅,這樣蓋既實用又上檔次!
閱讀次數:12834次
2021農村建的最多的2款二層小別墅戶型,爆款是有理由的
閱讀次數:11876次
農村自建房這樣預埋水電管,老師傅說規范又實用
閱讀次數:11471次
9X12米二層農村別墅,不超過規定面積還能有小院
閱讀次數:10618次
農村自建房打地基的費用是多少,需要注意哪些問題?
閱讀次數:10549次
