
|
讓湖南姑娘笑到醒的農村自建別墅設計!豪華大氣附全套別墅圖紙!
自建三層別墅正面外觀效果圖
自建三層別墅背面外觀效果圖
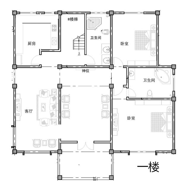
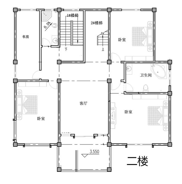
1
2
3 轉載請注明出自別墅設計網:http://m.bjcyqiyejia.com/ 千套別墅設計帶別墅圖片 |

130平帶閣樓兩層半別墅房屋設計圖,含外觀效果圖
占地:130平方米
最新五十萬農村二層別墅設計圖紙,客廳中空
占地:195平方米
農村四層樓房設計圖及外觀效果圖,造價60萬左右
占地:163.84平方米
140平方米歐式三層別墅建筑設計圖紙,復式結構
占地:140平方米
190平方米新農村二層別墅設計圖紙及效果圖大全,14.2x13.5米
占地:190平方米
農村三層帶露臺、帶車庫房屋設計圖,含外觀圖片
占地:155平方米
漂亮實用的新農村二層小樓圖,造價20萬左右,超大景觀露臺
占地:130平方米
小戶型二層四合院別墅設計圖,含外觀效果圖,小宅基地選擇
占地:134平方米
215平方米新農村一層房屋建筑設計施工圖,17x12米15萬
占地:215平方
預算20萬的農村三層房屋設計圖方案,帶外觀效果圖
占地:115平方米
經濟實用二層樓房設計圖紙,功能布局多,12×11米
占地:130平方米
120平方米帶地下室三層復式別墅戶型圖,現代風格
占地:120.78平方米左
160平方農村三層別墅CAD設計圖紙,含外觀圖片效果圖
占地:156平方米
新款中式二層四合院住宅設計圖,農村自建帶露臺設計
占地:223平方米
農村4間2層樓房設計圖,戶型方正,四平八穩的二層農村別墅
占地:180平方米
兩戶250平方米農村豪華歐式三層兄弟雙拼別墅設計圖
占地:251平方米
農村中式一層三合院自建房戶型方案圖,帶庭院設計
占地:222平方米
200平方米農村二層中式四合院設計圖,含外觀圖片
占地:200平方米
最美農村一層合院設計圖紙,自建一棟火遍十里八鄉
占地:190平方米左右
80平方米鄉村一層半帶閣樓自建別墅設計圖,帶車庫
占地:80平方米
11×10造價25萬帶神位平頂三層自建房設計圖
閱讀次數:29678次
2021年最流行的10套經典農村別墅,最愛那一套?
閱讀次數:25940次
進深8.5米,開間12米,帶堂屋的樓房設計圖怎么做?
閱讀次數:23817次
18萬搞定的農村二層別墅,詳細施工過程實拍!含別墅設計圖!
閱讀次數:17744次
5款帶落地窗的農村別墅,大氣的別墅就應該是這個樣子
閱讀次數:17217次
15套2017年最新潮二層農村別墅,這樣蓋既實用又上檔次!
閱讀次數:12834次
2021農村建的最多的2款二層小別墅戶型,爆款是有理由的
閱讀次數:11876次
農村自建房這樣預埋水電管,老師傅說規范又實用
閱讀次數:11471次
9X12米二層農村別墅,不超過規定面積還能有小院
閱讀次數:10618次
農村自建房打地基的費用是多少,需要注意哪些問題?
閱讀次數:10549次
