
|
20萬能干什么,在城里買不上房,不夠首付,但是卻能在農村建一套二層樓房設計圖。不要以為農村建別墅很貴,其實建個主體用不了多少錢,貴都是花在了裝修上,像下面這款小別墅,主體20萬以內就能搞定。
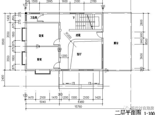
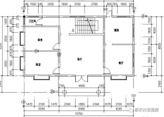
這款戶型,開間15.7米,進深8.5米,建筑層高為9.7米,采用的是二層磚混結構。
戶型功能,一層設計有二間臥室,衛生間、廚房、客廳、餐廳,廚房還有后門,這在農村既實用又方便。二層設計有二間臥室、衛生間、露臺。空間上大而舒適,而且可以根據各個家庭的需求靈活變動。
轉載請注明出自別墅設計網:http://m.bjcyqiyejia.com/ 千套別墅設計帶別墅圖片 |

造價25萬農村二層小別墅設計圖,外觀效果圖美觀、精致
占地:165平方米
好看又簡單的二層樓房設計,經濟實用型的農村小別墅
占地:135平方米
歐式豪華三層別墅設計圖,占地面積170平米,高端大氣帶露臺
占地:170平方米
簡單實用二層雙拼樓房設計圖,造價30萬左右
占地:180平方米
造價低經濟簡單的二層農村自建房圖紙設計,簡潔實用
占地:136.08平方米
適合兄弟自建的二層雙拼別墅設計方案,帶效果圖
占地:180平方米
小戶型三層別墅房屋設計圖紙,占地80多平米,麻雀雖小五臟俱全
占地:80平方米
簡歐復式四層別墅房屋設計圖,外觀圖高端、大氣
占地:143平方米
140平方米新農村三層房屋設計圖,磚混結構帶地下室
占地:138平方米左右
新中式三層雙拼別墅設計圖及效果圖,中式大氣風格
占地:235.26平方米
二層別墅設計圖紙及效果圖,占地200平米,外觀精致優雅,小有情
占地:200平方米
小型四合院二層別墅設計圖方案,對稱設計,頂層大露臺
占地:114平方米
三層復式別墅設計圖紙(含效果圖),復式住宅設計圖精選
占地:147.7平方米
175平方米二層別墅設計CAD圖紙及效果圖大全,中式風格
占地:175平方米
豪華大氣農村三層別墅圖紙,帶車庫、露臺,占地200平方米左右
占地:207平方米
農村二層小樓的設計圖紙,整體外觀凹凸有致,紅色的坡面屋頂
占地:180平方米
農村20萬元二層小樓圖片及全套圖紙,外型美造價低
占地:多種戶型
170平米自建三層房屋別墅設計圖紙及效果圖
占地:170平米
最美建筑四合院別墅設計方案,大氣經典,開間19米
占地:168.61平方米
14米×10米農村二層小別墅自建房設計圖,外觀設計時尚美觀
占地:125平方米
11×10造價25萬帶神位平頂三層自建房設計圖
閱讀次數:29678次
2021年最流行的10套經典農村別墅,最愛那一套?
閱讀次數:25940次
進深8.5米,開間12米,帶堂屋的樓房設計圖怎么做?
閱讀次數:23817次
18萬搞定的農村二層別墅,詳細施工過程實拍!含別墅設計圖!
閱讀次數:17744次
5款帶落地窗的農村別墅,大氣的別墅就應該是這個樣子
閱讀次數:17217次
15套2017年最新潮二層農村別墅,這樣蓋既實用又上檔次!
閱讀次數:12834次
2021農村建的最多的2款二層小別墅戶型,爆款是有理由的
閱讀次數:11876次
農村自建房這樣預埋水電管,老師傅說規范又實用
閱讀次數:11471次
9X12米二層農村別墅,不超過規定面積還能有小院
閱讀次數:10618次
農村自建房打地基的費用是多少,需要注意哪些問題?
閱讀次數:10549次
