
|
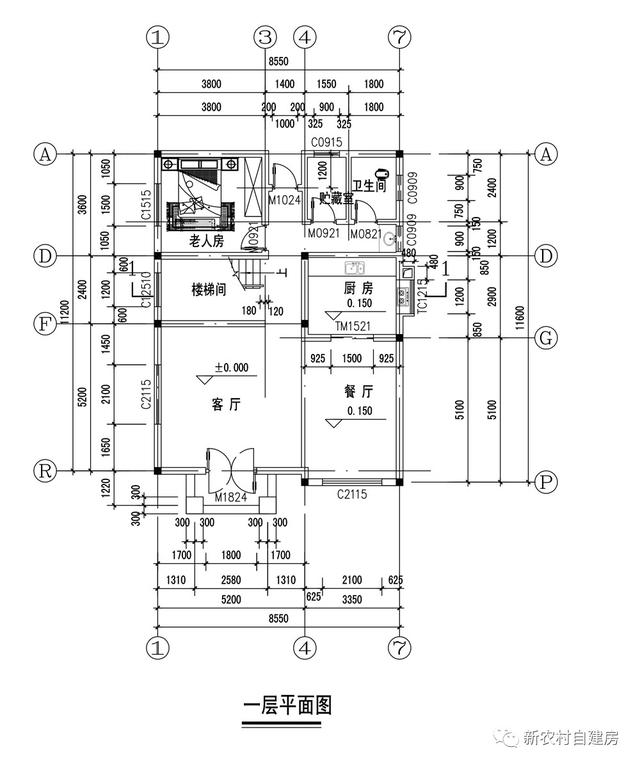
今天給大家推薦一款單家獨院式農村房子設計圖,外觀簡潔大方,通透明亮,造型錯落有致,美觀實用。
這款戶型開間8.55米,進深11.6米,占地面積102平方米,建筑面積275平方米,建層高為12.8平方米,采用的是三層磚混結構,主體造價20-25萬,抗震等級為6級,使用年限為50年。
戶型尺寸設計適宜,空間利用率高。一層設計有老人房、儲藏室、衛生間、廚房、客廳、餐廳、樓梯間;二層設有臥室、衣帽間、衛生間、陽臺;三層設有臥室、衛生間、棋牌活動室及屋頂花園。
轉載請注明出自別墅設計網:http://m.bjcyqiyejia.com/ 千套別墅設計帶別墅圖片 |

二層復式雙拼別墅設計圖(客廳中空),含外觀效果圖
占地:195平方米
150平左右新農村自建房設計圖,含外觀效果圖
占地:150平方米
高端三層別墅設計圖紙,客廳中空,帶地下室,設置多個套間
占地:220平方米
12x10三層別墅設計圖,農村自建房推薦戶型
占地:120平方米
農村中式兩層雙拼別墅房屋設計圖,含效果圖片
占地:200平方米
農村二層中式小三合院別墅全套設計圖,民族特色風格
占地:122平方米
110平左右二層小洋樓設計圖,含效果圖片
占地:108平方米
農村建房就該選新中式!13X11米新中式三層美宅,經典不過時
占地:130平方米左右
高端大氣三層歐式別墅設計圖,高檔新款外型圖片美觀時尚
占地:168平方米
20萬農村一層半小洋樓圖,自建別墅設計方案推薦
占地:155平方米
三層奢華歐式別墅圖片及全套設計圖,帶地下室和車庫
占地:208平方米左右
125平方米三層新農村房屋建筑施工設計圖帶外觀圖
占地:126平方米
90平方米新農村三層房屋設計圖紙,鄉村三層樓房圖紙精選
占地:92平方米
一層鄉村自建別墅設計方案推薦,含外觀圖片
占地:148平方米
2021最受歡迎的三層農村小別墅設計圖紙,占地155平方米
占地:155平方米
130平四間二層小洋樓設計圖,含外觀圖片
占地:130平方米
二層歐式小別墅設計方案,全套建筑設計圖紙+外觀效果圖
占地:146平方米
面寬22米的高端三層自建房別墅設計圖,功能齊全
占地:222.47平方米
帶堂屋設計一層5間平房新農村自建別墅效果圖全套施工圖
占地:198.41平方米
2021年新款別墅外觀圖,新中式風格,比簡歐大氣,時尚
占地:135平方米
11×10造價25萬帶神位平頂三層自建房設計圖
閱讀次數:29678次
2021年最流行的10套經典農村別墅,最愛那一套?
閱讀次數:25940次
進深8.5米,開間12米,帶堂屋的樓房設計圖怎么做?
閱讀次數:23817次
18萬搞定的農村二層別墅,詳細施工過程實拍!含別墅設計圖!
閱讀次數:17744次
5款帶落地窗的農村別墅,大氣的別墅就應該是這個樣子
閱讀次數:17217次
15套2017年最新潮二層農村別墅,這樣蓋既實用又上檔次!
閱讀次數:12834次
2021農村建的最多的2款二層小別墅戶型,爆款是有理由的
閱讀次數:11876次
農村自建房這樣預埋水電管,老師傅說規范又實用
閱讀次數:11471次
9X12米二層農村別墅,不超過規定面積還能有小院
閱讀次數:10618次
農村自建房打地基的費用是多少,需要注意哪些問題?
閱讀次數:10549次
