
|
又到了新的一個星期,今天小編為大家準備了3套特別適合自建的二層簡單一點的別墅圖,設計師最大程度的利用土地資源,開拓出更大的生活空間。建筑的主體以暖色調裝飾,建筑語言豐富。明快靚麗的色彩更顯現代時尚的生活氣息。 戶型一:
戶型的造型線條流暢簡約,方正沉穩大方。淳樸自然接近生活的本質。 平面圖:
為提高臥室的保密性,臥室的門避開客廳。由門廳進入直達餐廳。
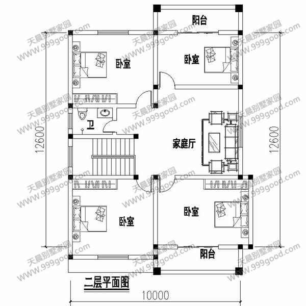
南面的陽臺,提升居住體驗,二層設4間臥室1衛生間1書房和衣帽間,面寬不大照樣滿足日常生活所需。 戶型二:
建筑語言豐富,建筑形態多變,建筑色彩平和。戶型大方接地氣,貼近自然的生活氣息。 平面圖:
戶型三:
小戶型的別墅帶車庫更適合農村自建,整體造型美觀,采光條件充足穩定。 平面圖:
客廳和餐廳一體化,拉伸居室的空間闊度,注重自然生活和空間生活的和諧統一。
轉載請注明出自別墅設計網:http://m.bjcyqiyejia.com/ 千套別墅設計帶別墅圖片 |

新農村二層住宅設計圖外觀素凈,精致,115平方米
占地:115平方米
歐式農村三層小別墅設計圖,占地120平米,客廳中空,空間利用率
占地:120平方米
大氣豪華四層別墅設計圖紙,占地180平米左右
占地:180平方米
260平方米歐式四層別墅設計圖20X18米,造價108萬
占地:260平方米
農村10萬元一層小別墅平房設計圖大全,含效果圖
占地:120平方米
占地170平米2021新款三層別墅設計圖片及設計方案
占地:170平方米
最新小別墅設計圖,復式三層,外觀非常漂亮
占地:158平方米
農村二層半樓房效果圖及全套設計圖紙,自建房簡單實用
占地:121平方米
新式160平方米農村三層樓房設計圖,客廳中空
占地:160平方米
高端大氣三層歐式別墅設計圖,客廳中空,旋轉樓梯
占地:150平方米
農村二層半帶露臺別墅圖片及設計圖,戶型方案比較經典
占地:123平方米
占地180平方米二層農村新款樓房別墅設計圖,外觀漂亮
占地:180平方米
200平方二層小別墅設計圖紙,含效果圖,歐式風格帶車庫
占地:197.6平方米
12x12農村三層別墅設計圖,自建房屋推薦戶型
占地:148平方米
最新歐式三層別墅設計圖紙,超漂亮,預算30到40萬
占地:160平方米
農村一層四間平房設計圖方案,含外觀圖片,預算10萬
占地:190平方米
最新140平米三層自建房屋設計圖紙,本戶型帶小院
占地:140平米
170平方米農村二層房屋設計施工圖,外觀圖時尚、好看
占地:172平方米
260平方米仿歐式二層別墅設計圖紙及效果圖,22X12米
占地:260平方米
面寬13米二層新農村別墅自建房設計圖,功能實用,外觀大氣
占地:168.96平方米
11×10造價25萬帶神位平頂三層自建房設計圖
閱讀次數:29678次
2021年最流行的10套經典農村別墅,最愛那一套?
閱讀次數:25940次
進深8.5米,開間12米,帶堂屋的樓房設計圖怎么做?
閱讀次數:23817次
18萬搞定的農村二層別墅,詳細施工過程實拍!含別墅設計圖!
閱讀次數:17744次
5款帶落地窗的農村別墅,大氣的別墅就應該是這個樣子
閱讀次數:17217次
15套2017年最新潮二層農村別墅,這樣蓋既實用又上檔次!
閱讀次數:12834次
2021農村建的最多的2款二層小別墅戶型,爆款是有理由的
閱讀次數:11876次
農村自建房這樣預埋水電管,老師傅說規范又實用
閱讀次數:11471次
9X12米二層農村別墅,不超過規定面積還能有小院
閱讀次數:10618次
農村自建房打地基的費用是多少,需要注意哪些問題?
閱讀次數:10549次
