
|
一棟兩層別墅效果圖,在農村自建,30萬就可以建起來。在城市開發商建起來,就是賣幾百萬的豪華別墅,放到北上廣深就是千萬級的別墅,百思不得其解,也許這就叫房地產。 分享了很多自建的30萬左右的農村別墅實例,很多網友說建不起來,一大部分是說買宅基地就要十幾萬。小編想說的是,絕大多數選擇在農村建房的都是有地,只是要批,不需要買的。現在新農村居民點是要買地,但是也有補貼。 城里買個幾十平的商品房,隨隨便便百來萬,首付就要花光10年積蓄,房貸還要透支2、3十年收入。在農村30萬建房,普通農民工、打工仔也是花光10年積蓄,裝修好還要簽下幾萬、十幾萬外債,這樣究竟哪個更值?
有不少網友留言說,農村別墅是外觀堪比城市豪華別墅,里面是屎一坨。小編想說的是,如果有錢的土豪,農村別墅裝修也完勝城市別墅;普通人家,房子建起來了,裝修慢慢來。客廳、主臥先弄好,然后家居再慢慢來,每年都要添置一些。即享受現下生活,又改造家,一天比一天美。當然那種好吃懶做的人就另做別論了。 今天小編重新整理了,網友們12套30萬左右建好主體的農村別墅,當然有的也只能稱之為自建小洋房。大家一起來看看,哪一套最喜歡,都值不值?
第一套:28萬,建筑面積342㎡,位置:河北 河北建房便宜是公認的。這套28萬主體建成,磚混結構,如果框架肯定要貴蠻多的。一樓文化石外立面,2樓真石漆配上線條裝飾,非常漂亮。房周一圈花壇,更為房子增色不少。
3室、3廳、2衛、2儲藏間、大露臺。如果覺得房間少了,2樓棋牌室可以稍加改動做臥室,2樓儲藏間大小做書房也蠻合適。一樓檐廊1.3米進深,再加上小涼亭。擺上小椅子也符合農村人日常休憩的實際習慣。戶型精美卻不浪費空間。
第二套 30萬,建筑面積284㎡,位置:湖北 辛辛苦苦在外奔波了數年時間,終于積攢了30萬人民幣,回鄉蓋房子,可能這30萬在別人眼里只是一小部分金錢而已,但是對咱們農村人來說,這筆錢可是很多了。新蓋好的房子,只是粉刷了外墻與門窗就已經花了30萬了,室內還沒有進行裝修,只能以后慢慢來了! 花光積蓄值不值?這套房子整體還是挺好的。不僅好看,戶型也很好。
首層為了滿足日常的生活需求,只設計了一間臥室,剩下的全都是功能用房,衛生間干濕分離潔污有序,從健康角度出發這一點做的是很好的。帶堂屋也符合南方人的農村的需求,相比一樓留客廳,有堂屋才是最重要的。 樓梯下方可以做為儲物房、工具房,也基本夠用。只是宅基地有限,建不了車庫了。小編覺得如果對車庫需求度高,一樓客廳可以改成車庫,2樓本身有大客廳,樓梯上去平臺還有一個娛樂活動區,在農村,一樓餐廳夠大,堂屋夠大,1樓再留一個大客廳反而顯得有點多余。
2樓臥室去掉衣帽間,墻體內移,多出了一個大陽臺。
第三套:造價30萬,建筑面積281㎡,位置:溫州 浙江溫州的張先生去年花費30萬在老家建了套歐式小別墅,每逢節假日就駕車帶著妻女回村,享受幾天怡然自得的慢生活,再也不用假期出門看人頭,還能多多陪伴老父母。 坡頂式設計,北方見這套農村別墅也是非常適合。 歐式風格,造型豐富的坡屋頂與弧形采光窗打造浪漫的歐式風情,精致簡約的歐式圍欄與石膏雕花也另有韻味。2樓主臥拐角飄窗設計也非常好。 整體采用雙段式配色,下部鋪設棕黃色瓷磚加以白色點綴,上部鋪設米色瓷磚更顯穩重大氣,整體配色和諧自然又不落俗套。
1樓設客廳、廚房、餐廳、臥室、衛生間,基本滿足了1樓的功能性特征。雖然沒有單獨做堂屋,但是留了神龕位,客廳跟堂屋一體,平時沙發外移,客廳面積更大,堂屋辦酒席等的時候,沙發右移,大大的堂屋就出來了。
2樓設計客廳、棋牌室、衛生間、兩間臥室。 將臥室都設計在陽光,增加臥室的日照率;2樓設計棋牌室,日常生活之外也能娛樂,充滿樂趣;3間臥室基本能滿足2-3代人居住。
第四套:30萬,中式,位置:四川 現代簡約中式風格,外部空間布局開放式三合院。別墅外觀中與西的結合如此和諧,中式的優雅與西式的簡約取長補短,不僅成就了另一種審美的愉悅,也貼近生活,舒適自然
有堂屋、餐廳、廚房、3間臥室,2間帶有獨衛,滿足了1層功能性的特征。
2層設有起居室、廚房、餐廳、3間臥室,與1層格局相差不大。這非常適合兄弟合建,每層都是套間設計。
這樣類似合院的坡頂房子,屋頂是最考驗設計師、施工隊技術的。
磚混結構,做了馬牙槎,其實在四川,做框架結構抗震強度層夠好。不過框架的話沒有40多萬,主體肯定搞不起來。
第五套:造價40萬,建筑面積298平方米。位置:廣東 現在人們農村建鄉村別墅是真的舍得花錢,隨隨便便就50萬、60萬的主體,廣東、福建農村有錢人多,而且也走在設計前沿,建房都會找人設計一下。 這套40萬主體2層半的農村別墅,絲毫不輸給60萬造價的。不說其他,單看外立面裝修小編就已經愛上它了,你呢?
11.8×9.8米的宅基地真的算是小的了,那就多蓋半層唄,不僅實用也美觀。一樓為生活活動區,但是有一個老人房。 不過衛生間都門對門,建議左側衛生間可以改成客廳方向開推拉門會更佳。
二三層是別墅主要的居住空間,一共設計了四間臥室兩間起居室,結構工整無雜亂,空間布局劃分合理,衛生間干濕分離技術讓生活更加實用,要是在農村有一棟這樣的房子出來,那可真算得上不錯了!
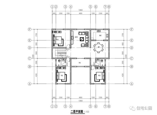
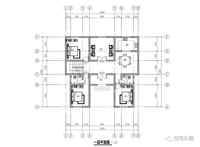
第六套:造價30萬,3層半,位置:廣西 都說農村的不能叫別墅,只能叫自建房,那么看完這個你就會覺得,那些確實是農村別墅,這才是標準的農村自建房。 這是一農民工夫妻建給父母的養老房,雖然不是那么美輪美奐,但是實用,符合農村人所有的居住習慣。 屋頂半平半坡,方便晾曬,又有好看的屋頂造型,仿石藝護欄其實屋頂也很美。只是因為宅基地太小,只有6.6開間,總進深14米。要建出實用的房子,那么2、3樓外觀上就比較難做好了。
房主沒有找設計師,自己畫的草圖,跟施工師傅說明就開建。二層做騎樓,飄檐一米多,既是一樓的屋檐,又讓2樓空間大了很多。不然這么小的開間、進深也才12.5米,2三樓這么規劃都弄不好。 木質大門,雖然不洋氣,但也實用,質量更是杠杠的。房子旁邊挖了塊地,種點瓜果蔬菜,自己種的菜吃了也放心。
再來看戶型,廁所放在廚房后面,,一樓留下一個大臥室做老人房,路邊臥室放后面,更安靜,適合老人休息。 開間6.4,進深近6米的堂屋符合南方人的居住需求,開間夠大,摩托車等可以直接停進去。
2、3樓都都是單獨套間設計,一個大主臥,兩個小一些次臥,因為騎樓式設計,次臥也是3.2×4.4米也不小,不然的話就只有3.2×2.8米的話就太小了。 想法很簡單,自己不出去做工了,救助二樓,三樓留給兒子,那樣兒子幾年后大學畢業在城里買房結婚了,回到農村老家,一家人生活也方便。
房屋側面和后面都沒有裝飾,只抹了灰,對于農村自建房,而不是定位農村別墅,外墻全部弄瓷磚這些才是浪費錢。在后門開了一道門,方便父母串鄰居,在農村就是“遠親不如近鄰”。 平時就老父母在家,防盜網的錢可不能省,一句話該花得花,能省的地方就省。
第七套:造價35萬,建筑面積393㎡,位置:湖南 別墅有三層,磚混結構建造,開間13米,進深10.26米,建筑面積393.26平方米。落地窗、大露臺,紅色外墻,搭配經典。入戶門廳左側是一個弧形采光窗,唯美大氣,日照率充足。
此戶型設計舒適,一層陽面是客廳、堂屋、老人房,老人房旁邊是衛生間,方便老人行動。東側是廚房和餐廳。
二三層是較為寧靜的區域,以臥室為主,二層有3臥室、1起居室、1衛生間;三層有2個臥室、1起居室和一個露臺,共6個臥室,能住3~4代人,適合人口較多的家庭建造。 房間空間非常大,可以考慮稍作修改,二樓臥室增加獨立衛生間。
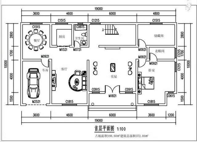
第八套:造價31萬,建筑面積372平方米,位置湖北 坐東朝西,開間19米,進深10米,占地面積198.68平方米,建筑面積372.04平方米,用磚混結構建造,因為有親戚朋友幫忙,省了很大一筆開銷,房子現在還沒裝修,建成這樣已經花了31萬。 房子正中間是入戶門、上面是陽臺,兩側是對稱的羅馬柱、老虎窗,再往兩側是對稱的弧形窗、落地窗。最外側就不是對稱設計了,一側是封閉式的車庫和露臺,一側是凹進去造型。在別墅的外裝上還恰當的運用了文化石,時尚、接地氣。
此戶型遵循當地的風俗習慣,進門是堂屋,臥室基本都在陽面。但是就臥室太少。 不過可以將2樓衣帽間和儲藏間合并改為一件臥室,棋牌室做小書房,一樓客廳可以改為臥室,這樣就有5個臥室,小編覺得更符合農村客多的需求。
第九套:造價35萬,框架結構,湖南 兩口子都是80后,從有了孩子開始就一直有蓋房的打算,但是各種原因一直沒蓋成,前兩年看著鋼材價格蹭蹭的漲,兩口子也等不及了,說蓋就蓋!也因為鋼價上漲,房子造價高了不少。
夫妻倆找出曾經在網上收藏的戶型,選了一套最喜歡也是最合適的。先看下布局,農村就講究堂屋,所以進門設計了堂屋;廚房也是單設帶柴火灶,省的屋里容易臟。3.6×5米的餐廳,擺個圓餐桌坐十幾個人都不成問題。 其實很多農村80后都有這樣的茫然:結婚十來年,花30多萬蓋了二層半樓房,生了兩孩子。十幾年的積蓄全掏出來,多的借了十來萬,少的借了六七萬外債用作裝修,躺在床上會忍不住想“三十多歲了,存款都用光了,還欠債,心里空空的,也不知道活著為了什么,一下子回到原點,又重新來過。”
第十套:造價33萬,建筑面積365㎡ 歐式風格的農村平頂別墅,這幾天推薦了很多平頂別墅,看大家留言才發現,原來南方那么多人最愛的還是平頂。簡單的文化石外墻裝修,配上玻璃窗就是絕美。
1樓不用多說,一樣是老人房、客廳、堂屋一體。11.6×10.8米的宅基地也是現在南方農村最普遍的存在。2樓、3樓棋牌室、書房、娛樂房等空間都夠大,可以根據實際需求決定用途。
第十一套:造價38萬,美式,位置:南方某省 單套造價38萬,但是這其實是美式雙拼,兩兄弟老父母還在,但是自己的孩子也長大了,住一起肯定不方便,所以選擇了建在一塊,搞雙拼,但是又都是單獨獨棟,不共用墻體。這是一個非常值得借鑒的兄弟一起建房的案例。
美式田園風,配色選不好的話真不符合中國人的審美,但是配色選的好,就會是中國人的最愛。
一樓客廳、堂屋、大餐廳,老人房,兩兄弟鏡像戶型,父母愿意跟誰住都行。2、3樓空間可以裝修時再靈活設計。這樣兩兄弟一樣的外觀,但是可以根據自己的喜好布置內部空間,同樣的別墅,不一樣的居住體驗。
房子還有一個大的亮點,那就是農村別墅怎么做防盜網。直接做外面肯定影響美觀,不妨學學這個,房屋直接跟窗戶一起做造型設計,即防盜又美觀。
第十二套:造價:30萬毛坯(不含外立面),建筑面積320㎡,位置:南方某省 毛坯30萬,外立面大家估計一下要多少,門窗要多少,建起來40萬夠嗎?外觀小編就不啰嗦了,大家自己看,只說一個字“霸氣”!
客廳和餐廳想通,空間闊度大,視野開闊。一層有兩個儲藏室,樓梯下面的儲藏室存放農具,北側的儲藏室存放蔬菜、糧食等;如果覺得4個臥室少了,可以對2、3層空間布局略作調整,可以多出2個臥室。
轉載請注明出自別墅設計網:http://m.bjcyqiyejia.com/ 千套別墅設計帶別墅圖片 |

簡單漂亮實用的三層自建房設計圖,帶露臺,占地170平方米
占地:170平方米
80-90平米自建樓房設計圖,農村小別墅經典戶型圖
占地:86平方米
好看的三層樓別墅圖片及全套建筑施工設計圖紙
占地:多戶型可選
50萬左右農村三層別墅設計圖紙,帶大露臺,外觀大氣
占地:150平方米
經典三層歐式造型別墅圖紙,功能房豐富,挑空客廳
占地:180平方米
140平二層帶閣樓別墅設計方案圖,外觀圖片色彩明快
占地:140平方米
帶車庫現代三層樓房設計圖,外觀效果圖時尚、美觀
占地:160平方米
簡簡單單的二層樓房的設計圖,24萬就能搞定
占地:120平方米
農村四間二層小洋樓設計圖,歐式別墅、現代洋氣
占地:200平方米
開間8米的小戶型二層別墅設計圖,2開間占地不到60平
占地:56平方米左右
戶型簡單實用的三層農村房屋設計圖紙,復式結構,大面積開窗,
占地:170平方米
全套三層農村房屋設計圖紙,客廳中空,大大的窗戶,采光極好,
占地:160平米
新農村兄弟合建三層雙拼房屋設計方案圖,開間18米有全套圖紙
占地:237.21平方米
300平四層別墅房屋設計圖,含外觀效果圖,大面積、多臥室
占地:300平方米
2021年最新三層房屋設計圖紙,12米×11米,實用接地氣
占地:130平方米
120平農村三層自建房屋設計圖,旋轉樓梯復式別墅戶型方案
占地:119.23平方米
新中式120平米農村20萬元二層小樓圖,外觀柔和而雅致
占地:120平方米
人氣頗高的三層新中式別墅方案,五種戶型,五種尺寸
占地:120-165平方米
140平三層自建房別墅設計圖,外觀圖大氣、美觀
占地:140平方米
帶車庫,帶露臺的三層復式樓房設計圖,新農村房屋方案推薦
占地:140平方米
11×10造價25萬帶神位平頂三層自建房設計圖
閱讀次數:29678次
2021年最流行的10套經典農村別墅,最愛那一套?
閱讀次數:25940次
進深8.5米,開間12米,帶堂屋的樓房設計圖怎么做?
閱讀次數:23817次
18萬搞定的農村二層別墅,詳細施工過程實拍!含別墅設計圖!
閱讀次數:17744次
5款帶落地窗的農村別墅,大氣的別墅就應該是這個樣子
閱讀次數:17217次
15套2017年最新潮二層農村別墅,這樣蓋既實用又上檔次!
閱讀次數:12834次
2021農村建的最多的2款二層小別墅戶型,爆款是有理由的
閱讀次數:11876次
農村自建房這樣預埋水電管,老師傅說規范又實用
閱讀次數:11471次
9X12米二層農村別墅,不超過規定面積還能有小院
閱讀次數:10618次
農村自建房打地基的費用是多少,需要注意哪些問題?
閱讀次數:10549次
