
|
黑格爾說,“建筑是凝固的音符,音樂是流動的建筑。” 微風清漾山谷間,太陽斜斜地掛著半空中,鳥兒在寧靜的鄉村自由自在的歌唱,一處私密的四層別墅躺在鄉野間,流轉著簡單質樸的美妙。
房屋基本信息: 項目名稱:四層自建別墅 占地尺寸:11.5m*19.7m 占地面積:226.5㎡ 建筑面積: 390㎡ 總 高 度:13.47m 建筑情況:六室三廳四衛一書房一廚一陽臺一臺球廳 設計說明 今天我們介紹的這套經濟型別墅設計圖最大的亮點是不規則設計。環形玻璃墻面自上而下貫通三層,流線型設計最大限度收納陽光。六間臥室,親朋好友多人造訪都不怕,大客廳的設計為多種場合的聚會而生。別墅頂層舍棄一半的空間,在外形設計上更加的美觀時尚。 平面布局:
一層超大客廳貫通東西,空間感十足。廚房、衛生間位于同一方向,干濕分離。餐廳與廚房緊密相連,熱騰騰的私家農鮮菜剛一出鍋,就能第一時間送到餐桌上。嘗一口,清香四溢,那個美呀!
二層一上來就是大客廳,坐下來喝杯茶聊會天,豈不快哉!兩間臥室遙相對望,互不影響。其中一間設有環形大窗戶,仰臥之間,山水美樹盡收眼底。
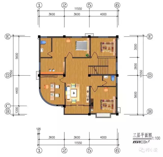
三層設有三間臥室,一間書房,主臥設有獨立的衛生間、衣帽間;次臥帶飄窗,清風入,風鈴舞,鄉間的音符,總是這么的自由和隨意。書房通透敞亮,花香伴著書香,飄飄蕩蕩,沁人心脾。客廳連通花園式陽臺,將碧樹藍天攬入廳內,躺在沙發上發會呆,看看電視,也是一種美的享受。
四層的設計凸顯了休閑區的功能,樓梯一上來就是臺球室,玩累了客廳就地休息。一室一廳的格局與大半留白的寬闊視野相得益彰。
本套別墅我們采用的是輕鋼集成房屋,那么它究竟有何優勢呢?抗 抗震性:可抵御8.9級罕遇地震,適用于抗震設防裂度為9度及以上的地區。 隔音性:外墻隔聲量可達75DB,內墻隔聲量可達55DB。 保溫性:160mm厚輕鋼噴漿復合墻體,熱阻值可達3.2㎡·K/W,是傳統建筑的6倍。 環保性:所有材料無毒無害無輻射,且可釋放負氧離子,完全達到環保要求。 節能性:比傳統建筑節能約65%。 施工周期:比傳統建筑建設周期縮短三分之二。 使用壽命長:主體結構可達100年。 無庭院不別墅,無山水不鄉村。
大面積的草坪,將自然的綠地毯鋪滿園,盛放的花朵在陽光下愈加嬌艷。擇一處或席地而坐,或斜靠躺椅,自然都化作美妙的音符來陪伴。啜一口清茶,手捧一書香,微風拂面,不知是該看山水還是該看書! 轉載請注明出自別墅設計網:http://m.bjcyqiyejia.com/ 千套別墅設計帶別墅圖片 |

140平方米清新別致新農村兩層房屋設計圖紙大全12x13米
占地:140平方米
一層半房屋別墅設計圖,帶閣樓圖、帶露臺,外觀新穎時尚
占地:130平方米
大二間三層別墅戶型圖,三層新農村自建房設計圖紙及效果圖
占地:116平方米
160平方米歐式一層半別墅施工設計圖紙13X13米
占地:160平方米
兩層20萬農村自建房設計圖,經典農村建房款式,越看越有韻味
占地:160平方米
320平方米高端農村帶車庫四合院別墅設計圖,徽派韻味十足
占地:320.89平方米
帶閣樓的一層半平房設計圖,比樓房還舒適,12米×13米
占地:170.1平方米
農村2021新式三間二層樓房,12×11.6米,戶型經典,造價實惠
占地:120平方米
120平農村三層自建房屋設計圖,旋轉樓梯復式別墅戶型方案
占地:119.23平方米
115平旋轉樓梯三層復式別墅房屋設計圖,含外觀效果圖
占地:115平方米
徽派3層農村小別墅設計圖,廣東新農村住宅設計圖集
占地:110平方米
100平方米新農村二層別墅設計圖紙,帶屋頂露臺
占地:100平方米
農村120平三層樓房設計圖,造型現代,帶屋頂花園
占地:120平方米
帶地下室的三層歐式別墅戶型設計圖,帶地下室農村自建房
占地:139.256平方米
110平方米新農村實用現代的二層建筑設計圖紙帶外觀圖11X10米
占地:110平方米
110平房子設計圖,經典的農村自建房屋設計圖
占地:110平方米
造價15萬經濟美觀一層農村別墅設計圖,占地150平米
占地:150平方米
鄉下一層自建養老平房戶型圖及全套圖紙,占地面積200左右
占地:200平方米
二層半農村小別墅設計方案圖,南方設計圖精選
占地:82平方米
農村四層樓房設計圖,復式結構、客廳中空,外觀效果圖+全套圖
占地:130平方米
11×10造價25萬帶神位平頂三層自建房設計圖
閱讀次數:29678次
2021年最流行的10套經典農村別墅,最愛那一套?
閱讀次數:25940次
進深8.5米,開間12米,帶堂屋的樓房設計圖怎么做?
閱讀次數:23817次
18萬搞定的農村二層別墅,詳細施工過程實拍!含別墅設計圖!
閱讀次數:17744次
5款帶落地窗的農村別墅,大氣的別墅就應該是這個樣子
閱讀次數:17217次
15套2017年最新潮二層農村別墅,這樣蓋既實用又上檔次!
閱讀次數:12834次
2021農村建的最多的2款二層小別墅戶型,爆款是有理由的
閱讀次數:11876次
農村自建房這樣預埋水電管,老師傅說規范又實用
閱讀次數:11471次
9X12米二層農村別墅,不超過規定面積還能有小院
閱讀次數:10618次
農村自建房打地基的費用是多少,需要注意哪些問題?
閱讀次數:10549次
