
|
相比多層自建房,單層經濟型別墅設計圖造價更低,省下的錢用于裝修可以更精細,單層一樣可以有漂亮的外觀,通過合理設計居住體驗也非常舒適!
這棟雖然只有一層,但通過屋檐門柱等造型,一樣顯得很靈動。明亮的大窗,三步入戶臺階,外加上白色欄桿,這樣的房子放到鄉下會非常的應景。當然,墻體外的裝飾掛板,屋頂的瀝青瓦都是可以根據個人愛好定制顏色的。
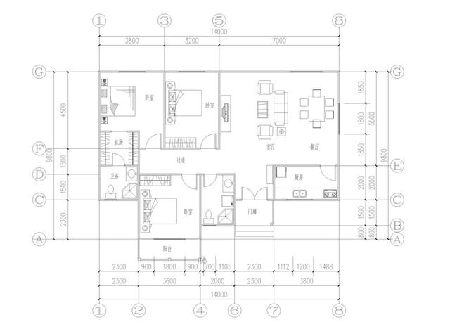
該房建筑面積約125平方,三室兩衛,客廳餐廳一體帶廚房,非常適合四口之家。 右側廚房的位置設計的很好,遠離休息區,3個臥室都不在附近,因為我們做飯炒菜油煙難免會溢出。廚房出門就是餐廳,上菜收桌都很方便。 左側則是休息區,2個次臥到公用衛生間都很方便,其中1個靠外側的次臥還有專用小陽臺。最左側是主臥,全房最安靜的位置,主臥內連著一間衣櫥,走過衣櫥就是主臥專用衛浴間。使用頻率最高的主臥得到了設計師的重點照顧,舒適度和便利度都不錯。 好了,本次就跟大家談這么多,湖北宜昌的朋友以及全國的頭條網友都可以關注我哦,專注鄉下自建房! 轉載請注明出自別墅設計網:http://m.bjcyqiyejia.com/ 千套別墅設計帶別墅圖片 |

復式三層別墅設計圖片及全套圖紙,客廳中空,外觀為歐式建筑的
占地:175平方米
南方新農村三層別墅設計圖紙,含效果圖,帶車庫
占地:120平方米
面寬8米也能建別墅,小面寬農村三層別墅設計圖
占地:93.83平方米
2021年新款二層半農村自建小別墅設計圖紙,占地150平方米
占地:150平方米
120平現代實用三層別墅房屋設計圖,含外觀效果圖
占地:120平方米
高端大氣三層雙拼自建房設計圖,外觀漂亮,240平左右
占地:240平方米
農村兩間兩層樓房設計圖,造價15萬左右,獨立的廚房設計,干凈
占地:95平方米
170平方米農村二層小別墅設計圖及效果圖
占地:170平方米
農村四間兩層別墅房屋設計圖,含外觀圖片
占地:160平方米
135平方米新農村三層別墅設計圖紙,外觀效果圖很漂亮
占地:134平方米
二層半農村小別墅設計方案圖,南方設計圖精選
占地:82平方米
農村15萬元二層小樓設計圖,外觀簡潔、樸素,造價低
占地:138平方米
農村中式一層三合院自建房戶型方案圖,帶庭院設計
占地:222平方米
一層平房小面積雙拼房屋住宅設計圖,造價低,面積小
占地:130平方米
歐式獨棟二層小別墅設計圖,客廳中空,占地126平米
占地:120平方米
150平方米農村二層房屋建筑設計圖,15.2x9.4米
占地:148平方米
12X14米四層農村自建別墅設計圖,功能設計豐富齊全
占地:157平方米
12x10米帶閣樓的農村一層半別墅設計圖,外觀洋氣
占地:110.54平方米
帶地下室的三層歐式別墅戶型設計圖,帶地下室農村自建房
占地:139.256平方米
20萬左右普通農村房子設計圖,二層簡約小別墅
占地:140平方米
11×10造價25萬帶神位平頂三層自建房設計圖
閱讀次數:29678次
2021年最流行的10套經典農村別墅,最愛那一套?
閱讀次數:25940次
進深8.5米,開間12米,帶堂屋的樓房設計圖怎么做?
閱讀次數:23817次
18萬搞定的農村二層別墅,詳細施工過程實拍!含別墅設計圖!
閱讀次數:17744次
5款帶落地窗的農村別墅,大氣的別墅就應該是這個樣子
閱讀次數:17217次
15套2017年最新潮二層農村別墅,這樣蓋既實用又上檔次!
閱讀次數:12834次
2021農村建的最多的2款二層小別墅戶型,爆款是有理由的
閱讀次數:11876次
農村自建房這樣預埋水電管,老師傅說規范又實用
閱讀次數:11471次
9X12米二層農村別墅,不超過規定面積還能有小院
閱讀次數:10618次
農村自建房打地基的費用是多少,需要注意哪些問題?
閱讀次數:10549次
