
|
你聽沒聽說過,在很多農村建房子,即使兩邊沒有緊貼的鄰居房子,只要能看到,就是不能開側窗的。所以很多農村別墅都只能前后采光,要是進深太大,那就只能做天井或者不采光了。不過要說到宅基地狹長,沒有地方能比上越南農村了,3米面寬,15米進深的都有,比我們的農村宅基地差多了。也正是因為這種限制,讓越南建筑師在處理狹長地塊采光方面非常有心得。今天我們來看一棟7.5米面寬,15米進深左右的鄉村別墅,兩側當然不能開窗,看看布局,裝修風格,采光是否滿足你的需求? 當地建別墅,更喜歡別墅手繪效果圖,有些還要做日照分析,只有這樣才能保證建成的房子,到處都亮堂。
這個造型中的玻璃窗,是為了樓梯間采光的。
地下室的自然采光效果。
門口夜景。
樓梯間,所有樓梯都不是現澆而是預制,只有踏面沒有踢面,扶手也是玻璃的,一切都是為了不阻隔光線。
衛生間,震撼不,步入式浴缸還能搭配庭院。而且是在第三層。
室內衛生間也都有自然照明。
本建筑信息如下,向參與的建筑機構,建筑師,結構師等致謝。 Project information : Architecture: ARCHITECT HOUSING Location: Ho Chi Minh City, VietnamMain architect : Nguyen Dinh Gio Area: 104.0 m 2Year of project: 2013Photo © Hiroyuki OkiDesign team: Nguyen Van Anh Nguyen Phan Anh Tuan Luong Xuan Eaststructure: Do Thanh TuanLighting: CARA Vietnamdoor Systems: company Quan Datbuilding contractors and finishing: THE PEOPLE construction 地下室平面圖:
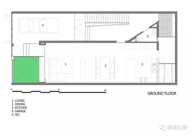
一層平面圖:
二層平面圖:
三層平面圖:
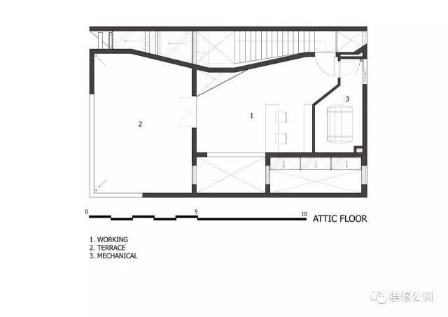
四層平面圖:頂層當然要有露臺。
屋頂平面圖:看看兩側都是天窗,上邊的天窗對應的是樓梯,下邊的天窗能讓光線覆蓋到一樓餐桌。
剖面圖:
房屋立體模型,幫助大家更好的理解樓梯的設計處理。
轉載請注明出自別墅設計網:http://m.bjcyqiyejia.com/ 千套別墅設計帶別墅圖片 |

三層兄弟雙拼別墅設計圖,外觀大氣漂亮,顏色搭配協調,一層為
占地:270平方米
帶車庫現代三層房屋別墅設計圖,占地110平米左右,功能齊全
占地:110平米
二層半大客廳復式別墅房屋設計圖,客廳寬闊明亮
占地:125平方米
240平農村二層自建別墅設計圖紙,帶你體驗家的溫馨
占地:240平方米
歐式農村三層小別墅設計圖,占地120平米,客廳中空,空間利用率
占地:120平方米
30萬預算三層別墅設計圖紙及效果圖,新農村自建推薦
占地:110平方米
170平方米農村二層房屋設計施工圖,外觀圖時尚、好看
占地:172平方米
農村二層半帶露臺別墅圖片及設計圖,戶型方案比較經典
占地:123平方米
簡單大氣農村兄弟三層雙拼別墅住宅設計圖,13X8米
占地:110平方米左右
農村二層半樓房設計圖及效果圖,歐式風格
占地:150平方米
最新農村三層樓房設計圖紙,客廳中空,采用暖黃色為主色
占地:160平方米
鄉下三層大氣房子設計圖,外觀挺高大上的,主體29萬多
占地:132.48平方米
私人二層現代農村小洋樓設計圖,外觀時尚、靚麗
占地:130平方米
帶地下室三層別墅設計圖紙(含外觀效果圖),別墅設計方案
占地:134平方米
160-170平方米二層自建別墅設計CAD圖紙帶效果圖,田園風
占地:167平方米左右
最美建筑四合院別墅設計方案,大氣經典,開間19米
占地:168.61平方米
140平方米新農村四層房屋設計圖紙,農村自建推薦
占地:140平方米
新農村自建二層小樓圖,時尚大方,外型精美,室內布局也很贊
占地:137平方米
175平方米歐式三層雙拼別墅設計施工圖紙及效果圖,12x13米
占地:175平方米
農村120平米三間三層樓房設計圖紙,農村理想住房設計圖
占地:120平方米
11×10造價25萬帶神位平頂三層自建房設計圖
閱讀次數:29678次
2021年最流行的10套經典農村別墅,最愛那一套?
閱讀次數:25940次
進深8.5米,開間12米,帶堂屋的樓房設計圖怎么做?
閱讀次數:23817次
18萬搞定的農村二層別墅,詳細施工過程實拍!含別墅設計圖!
閱讀次數:17744次
5款帶落地窗的農村別墅,大氣的別墅就應該是這個樣子
閱讀次數:17217次
15套2017年最新潮二層農村別墅,這樣蓋既實用又上檔次!
閱讀次數:12834次
2021農村建的最多的2款二層小別墅戶型,爆款是有理由的
閱讀次數:11876次
農村自建房這樣預埋水電管,老師傅說規范又實用
閱讀次數:11471次
9X12米二層農村別墅,不超過規定面積還能有小院
閱讀次數:10618次
農村自建房打地基的費用是多少,需要注意哪些問題?
閱讀次數:10549次
