
|
為什么在喧囂的城市里這么努力奔波,還不就是為了生活, 但是在我們空閑時坐下來,不免想要思考,這真的是我們想要的生活嗎,這樣的生活真的快樂嗎?思緒不經飄向遠方的小山村,雖然農村的老家跟不上潮流,又老舊又土氣,但是那里是我們根啊,生活在農村可以讓人放下所有的心事,笑看風輕云淡,閑聽花靜鳥喧,我們可以離開一間城市去往另一間,唯一離不開的,只有我們的老家,因為它是陪伴我們成長的地方,回家建一棟屬于自己的別墅吧,為自已留下一個美好的記憶! 農村別墅一: 基本信息 占地尺寸:10.9×9.1米 占地面積:104平方米 建筑面積:206平方米 結構類型:磚混結構 建筑高度:6.9米 主體造價:18萬左右
一層設有客廳、餐廳、廚房、活動室、老人房、衛生間。進門處空間可設門廳、堂屋、玄關,你想你想都能設,左手臥室,如果嫌棄衛生間太遠,也可以把房間那個處設為衛生間,凸出的一塊設計了一處雜物間,方便雜物的擺放,房屋內也會更整潔。 二層設有主臥、小孩房、書房、衛生間2間、一個大露臺。這本就是一間小戶型,二樓只設有一主臥、一次臥,但書房與露的配置,讓這個小空間增添了一抹亮色。
農村別墅二: 基本信息 占地尺寸:10X9.5米 占地面積:92.4平方米 建筑面積:161.9平方米 結構類型:磚混結構 主體造價:16萬左右
一層設有客廳,廚房,餐廳,臥室,衛生間。室內設計了兩處門,大門后門,不屬于一條直線,在風水上來說,是好的,衛生間干濕分離,分便打掃,符合生活習慣。 二層設有2臥室,衛生間,書房,陽臺,大露臺。書房是與露臺相通的,在書房學習累了,可以去露臺放松片刻,坐的時間久了,就是要活動一下筋骨的。
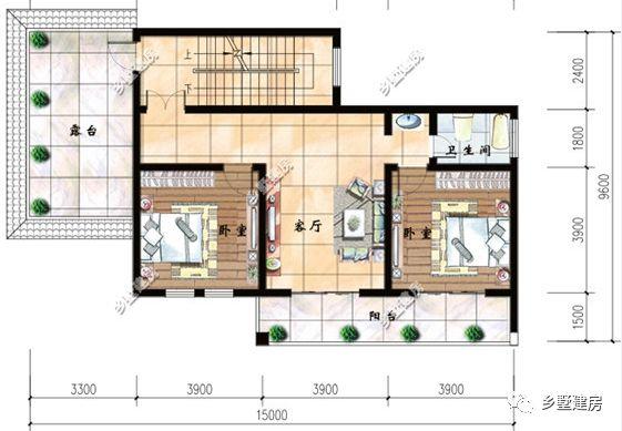
農村別墅三: 基本信息 占地尺寸:15X9.6米 占地面積:105.98平方米 建筑面積:209.36平方米 結構類型:磚混結構 主體造價:18萬左右
一層設有客廳、2臥室、衛生間、廚房、餐廳。大家從平面圖可以看出,這款戶型的宅基地并不是很規則,所以那些不規則地基的朋友們,有福啦,上樓處其實是有空間完全可以隔出一塊倉庫位置。 二層設有客廳、2臥室、衛生間、陽臺、露臺。在朝向方向,陽臺是偏臥室的,會讓臥室的采光,通風性都變高,露臺則是偏側向,有一定的私密性。
在農村建別墅的特別之處就是除了意境上的美麗外,還有心靈上的交融,你們有被誘惑到嗎?預防被罵,結尾說一句,主體造價,就是毛坯,不包括裝修外墻裝飾等! 轉載請注明出自別墅設計網:http://m.bjcyqiyejia.com/ 千套別墅設計帶別墅圖片 |

高端大氣三層雙拼自建房設計圖,外觀漂亮,240平左右
占地:240平方米
農村三層半自建房子效果圖及設計圖,戶型占地90平方米左右
占地:92.17平方米
新農村四合院別墅圖片及戶型方案圖,全套圖紙可施工
占地:154平方米左右
160-170平方米二層自建別墅設計CAD圖紙帶效果圖,田園風
占地:167平方米左右
高端大氣三層半別墅客廳挑空設計,豪華農村自建房圖
占地:179.52平方米
一層4間自建平房別墅及全套戶型圖紙,占地160平左右,簡單實用
占地:162.13平方米
農村二層住宅樓房設計圖紙,全套方案(施工圖+效果圖)
占地:113平方米
8萬元二層農村房子圖片及設計圖,簡易二層小樓,占地50平米
占地:50平方米
110平方米新農村三層房屋設計圖紙,含效果圖,帶車庫
占地:113平方米
90平方米小戶型一層三間平房農村別墅設計圖方案戶型
占地:91.036平方米
230平(單戶115平)雙拼別墅房屋設計圖及效果圖大全
占地:230平方米
新農村二層雙拼小別墅設計圖,開間22米的現代房屋圖紙設計
占地:230平方米
農村25萬別墅款式二層自建房設計圖,外觀圖時尚
占地:115平方米
新中式三層豪華大氣三層別墅自建房屋設計圖,帶地下室,土豪專
占地:194平方米
110平房子設計圖,經典的農村自建房屋設計圖
占地:110平方米
120平面三層鄉村樓房設計圖及效果圖,歐式風格
占地:120平方米
現代一層(帶悶頂)別墅住宅設計圖,外觀現代時尚
占地:160平方米
歐式三層樓房設計圖,客廳中空,旋轉樓梯,帶土灶房
占地:206平方米
130平方米新農村三層房屋設計圖紙,外觀簡單大方
占地:130平方米
帶商鋪挑高的三層別墅房屋設計圖,商鋪挑高,層高比較高
占地:118平方米
11×10造價25萬帶神位平頂三層自建房設計圖
閱讀次數:29678次
2021年最流行的10套經典農村別墅,最愛那一套?
閱讀次數:25940次
進深8.5米,開間12米,帶堂屋的樓房設計圖怎么做?
閱讀次數:23817次
18萬搞定的農村二層別墅,詳細施工過程實拍!含別墅設計圖!
閱讀次數:17744次
5款帶落地窗的農村別墅,大氣的別墅就應該是這個樣子
閱讀次數:17217次
15套2017年最新潮二層農村別墅,這樣蓋既實用又上檔次!
閱讀次數:12834次
2021農村建的最多的2款二層小別墅戶型,爆款是有理由的
閱讀次數:11876次
農村自建房這樣預埋水電管,老師傅說規范又實用
閱讀次數:11471次
9X12米二層農村別墅,不超過規定面積還能有小院
閱讀次數:10618次
農村自建房打地基的費用是多少,需要注意哪些問題?
閱讀次數:10549次
