圖紙說明:本套圖紙僅包含全套建筑圖+結構圖,不含水電圖,水電施工隊直接可以按您的要求做,不必非參考圖紙。
建筑層數:三層
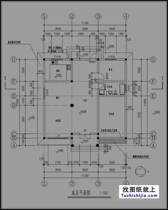
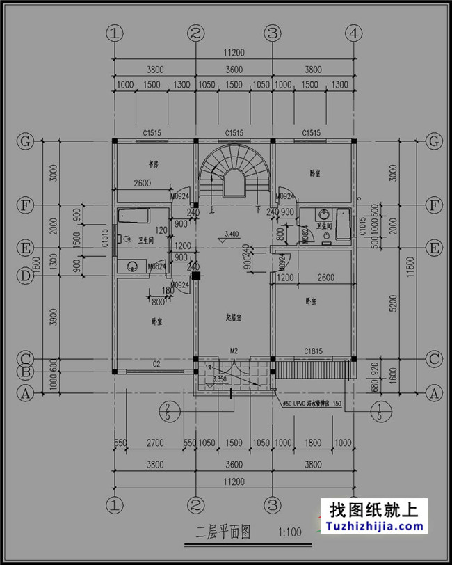
占地尺寸:面寬11.2米x進深11.8米
占地面積:130平方
造價預算:26萬
建筑總面積/總層高:338平米(不含入戶平臺、陽臺、露臺)/總高10.1米,屋檐口高9.0米
施工圖(建施圖、結施圖、水施圖、電施圖)共32張,效果圖2張。
建施圖指(建筑說明、每層平面圖、各面立面施工圖、以及剖面圖、門窗、節點詳圖等)19張
結施圖指(結構說明、基礎圖、柱配筋、板配筋、梁配筋等與鋼筋結構有關的圖紙)13張



































































































