項目名稱:浙江金華褚家現代別墅
項目地點:浙江省金華市
建筑面積:568㎡
基地面積:310㎡
建筑尺寸:15m×14.5m
占地面積:145㎡
圖紙編號:605
戶型概況:8室4廳6衛1廚1車庫1衣帽1健身1影音1兒童活動室
建筑結構:框架結構
主創建筑師:范亞朋
土建參考造價:80萬元(不包含室內裝修費用)
項目概況
△基地范圍示意圖
項目位于浙江,基地東、西兩側都有道路,南側鄰居家住宅與基地之間存在2米左右人行通道,北側是村內主路,同時北側有個較大的池塘,景觀面較好。
業主個人比較喜歡簡約的建筑,因此建筑最終設計為現代風格。
△總平面示意圖
圖紙設計
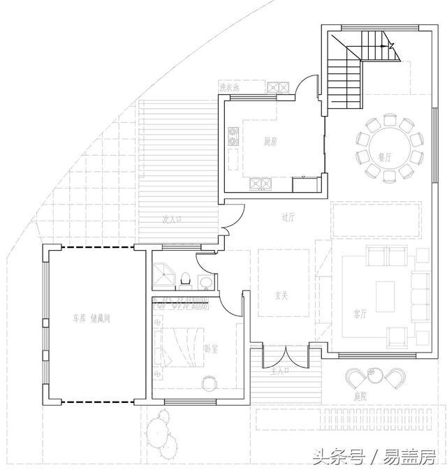
△一層平面圖
平面根據地勢進行設計,南側是建筑主向,但考慮到北側道路為村內行車主路,一層采取雙門入戶,主入口正對玄關,次入口正對過廳,兩個入口空間均有極好過渡。
東側客廳和餐廳十分開闊,餐廳空間可隨用餐人數進行調整,較大面積使得整體感覺十分大氣。老人房位于南側,與衛生間相鄰,便利的位置讓老人生活更加舒適。車庫位于西南角,兩側開門的形式增加了各種可能性,較大面積使得車庫也能作為儲藏間。
△二層平面圖
平層設計賦予空間大氣感,一層和二層通過獨立樓梯相連,二層作為起居區域,起居室與樓梯間緊鄰。由于北側池塘景色很好,因此二層在北側設計多處室外空間供業主及其家人觀景使用。
三間臥室位于南側,西南角主臥帶有獨立衛生間和開敞式衣帽間,兩側陽臺使得主臥室內南北通透,居住環境更佳。兒童活動室在不同階段可隨之調整功能,當需要時,此處空間可改造為書房。
△三層平面圖
三層與二層布局基本一致,兒童活動室修改為客房,室內采用榻榻米形式布置,使得有限空間可同時容納多人住宿。起居室設計有轉角窗,不僅讓公共區域得到充足光照,也使得空間成為極好觀景地點。
△四層平面圖
四層主要提供娛樂休閑功能,東側影音室和健身房豐富室內功能,頂層設計讓娛樂活動對起居空間影響較小。西側大面積露臺可彌補庭院過小的缺憾,作為頂層平臺,露臺處可享受更好景色。
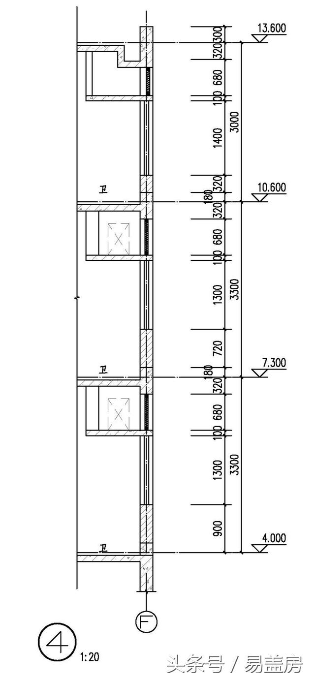
△節點圖
在設計階段,我們規劃了空調機位,并利用百葉進行遮擋和隱藏。衛生間位置做成雙層結構以此隱藏空調位置,隱藏式內墻排水和空調機位更加利于后續造型設計,也使得方案整體效果更好。
△節點圖
造型設計
△鳥瞰圖
建筑整體為現代風格,立面采用品味高調的黑白灰作為主色調,以簡約塑造經典。干凈的顏色與利落的線條搭配,讓建筑時尚感頓生。立面裝飾較少,整體層次感通過空間變化進行展現。
△南側效果圖
南北兩側造型迥異,南側以黑為主,局部使用白色提亮。空間內凹配合不同幾何的窗戶形狀將立面質感展露。白色立面為主臥空間,貫通木格柵將二、三層連通,亮點自然突出。
△北側效果圖
北側以白色為主,樓梯間選用貫通玻璃配合高度變化引入不同景色。起居室轉角窗將整層空間虛化,橫向、豎向對比使得簡約造型在視覺上更具感染力。
△南側效果圖
南側主入口和北側次入口均用黑色渲染深邃的空間感,南側庭院較小,但入戶庭院配合綠色植物確定了入戶儀式感,也讓業主及其家人能第一時間看到綠色,有更好體驗。
△主入口鳥瞰圖
△東立面圖
△西立面圖
△南立面圖
△北立面圖







































