
|
現在的農村自建房是非常流行的,但是也不能隨心所欲的修建。各個地區對房子的占地面積和總建筑面積都有自己的限制條件,如果不遵守這些規定,自家辛苦哦建成的新房子就會成為違章建筑,所以在建房前一定要選擇好戶型設計。下邊給大家推薦6套120平方米左右的三層別墅,配置實用,保證你喜歡! 第一套
正面效果圖
鳥瞰效果圖
背面效果圖 占地面積:9.7m*12.6m,一層占地116平方米左右(含外門庭); 建筑層高:三層; 建筑高度:12.5米(含屋頂); 設計功能: 一 層:客廳、玄關、廚房、餐廳、臥室、衛生間、洗衣房; 二 層:臥室(帶衣帽間)、臥室×2、衛生間、洗衣房、露臺; 三 層:臥室x3、衛生間、大露臺;
一層平面圖
二層平面圖
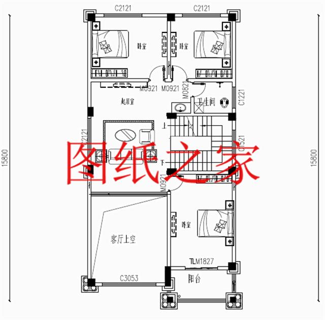
三層平面圖 第二套
正面效果圖
鳥瞰效果圖
背面效果圖 占地面積:8.0m*15.8m,一層占地120平方米左右; 建筑層高:三層; 建筑高度:13.6米(含屋頂); 設計功能: 一 層:客廳、廚房、餐廳、臥室、衛生間; 二 層:客廳上空、起居室、臥室x3、衛生間、陽臺; 三 層:起居室、臥室x2、衛生間、大露臺、涼亭;
一層平面圖
二層平面圖
三層平面圖 第三套
正面效果圖
鳥瞰效果圖
背面效果圖 占地面積:12.0m*10.0m,一層占地120平方米左右; 建筑層高:三層; 建筑高度:11.8米(含屋頂); 設計功能: 一 層:客廳、廚房、餐廳、影音室、娛樂室、衛生間; 二 層:起居室、臥室(帶衛生間,衣帽間)、臥室、書房、衛生間; 三 層:臥室(帶衛生間)、臥室、衛生間、書房、陽光房;
一層平面圖
二層平面圖
三層平面圖 第四套
正面效果圖
鳥瞰效果圖
背面效果圖 占地面積:12.0m*10.5m,一層占地120平方米左右; 建筑層高:三層; 建筑高度:12.45米(含屋頂); 設計功能: 一 層:客廳、廚房、餐廳、臥室(帶衛生間)、臥室、衛生間; 二 層:客廳、臥室(帶衛生間)、臥室x3、衛生間、陽臺; 三 層:休閑空間、臥室x2、大露臺;
一層平面圖
二層平面圖
三層平面圖 第五套
正面效果圖
鳥瞰效果圖
背面效果圖 占地面積:10.5m*13.1m,一層占地120平方米左右; 建筑層高:三層; 建筑高度:12.68米(含屋頂); 設計功能: 一 層:客廳、廚房、餐廳、臥室(帶衛生間,衣帽間)、儲藏室、衛生間; 二 層:客廳上空、小客廳、臥室(帶衛生間,衣帽間)、臥室x2、衛生間、陽臺; 三 層:臥室(帶衛生間,衣帽間)、臥室x2、衛生間、大露臺;
一層平面圖
二層平面圖
三層平面圖 第六套
別墅效果圖 占地面積:9.9m*11.9m,120平方米左右; 建筑層高:三層; 建筑高度:12.46米(含屋頂); 設計功能: 一 層:客廳、餐廳、廚房、臥室、衛生間、車庫、洗衣房; 二 層:大客廳、主臥(帶衛生間)、臥室x2、衛生間、陽臺、小露臺; 三 層:主臥(帶衛生間和露臺)、臥室x2、書房、衛生間、露臺;
一層平面圖
二層平面圖
三層平面圖
圖紙之家-專注農村別墅/自建房設計18年,集合國內200余位經驗豐富的設計師,被評為口碑最好的農村建筑設計公司! |

七字型一層平房別墅設計圖紙,15X16米
占地:177.9平方米
新農村私人別墅建筑設計施工圖,全套別墅設計圖紙
占地:多種戶型
新農村中式一層三合院效果圖及全套設計圖,喜歡合院的有福了
占地:118平方米
三層帶露臺21萬別墅設計圖,占地面積100平米左右
占地:106平方米
農村三層兄弟雙拼別墅設計圖及效果圖片,14X12米自建戶型
占地:154平方米
鄉村三層別墅設計圖紙,帶屋頂花園(含效果圖)
占地:150平方米
簡單的復式住宅設計圖,客廳挑高,帶外觀效果圖片
占地:148平方米
農村四層復式樓房設計圖,外觀效果圖+全套圖紙
占地:108平方米
農村三層雙拼別墅設計圖,兄弟建房開間20米,單戶80平方
占地:160平方米
占地200平米時尚現代三層農村別墅設計圖,簡簡單單百看不厭
占地:202.95平方米
120平方米農村漂亮實用的兩層別墅設計圖紙,含外觀圖片
占地:120平方米
二層氣質現代小洋樓設計圖,堪比城市別墅,全村最美沒商量
占地:121.07
帶中式小院的二層仿古別墅設計圖,小戶型自建房設計,外觀美極
占地:82.94
獨棟歐式三層農村實用樓房設計圖,外觀圖大氣,13×13米
占地:144.75平方米
一層半房屋別墅設計圖,帶閣樓圖、帶露臺,外觀新穎時尚
占地:130平方米
200平米二層自建房別墅設計圖,外觀漂亮布局實用
占地:207.09平方米
三層兄弟雙拼別墅設計圖,外觀大氣漂亮,顏色搭配協調,一層為
占地:270平方米
帶閣樓的二層半別墅設計圖和效果圖,外飾簡單但不失奢華
占地:210平方米
時尚大氣的三層現代風別墅設計圖,露臺+挑空客廳
占地:321平方米
155平方米新三層全套別墅設計資料,15x10米
占地:158平方米
推薦:10套新農村自建房設計圖,2026年最新設計
閱讀次數:4825737次
100套鄉村別墅圖片大全,2026年最新設計
閱讀次數:2492203次
6款農村蓋一層平房的設計圖,10萬元就能建起來
閱讀次數:1852637次
這11個一層農村自建房別墅火爆了朋友圈!我最喜歡戶型十!你呢
閱讀次數:750268次
農村6萬元建一層小別墅圖,你敢相信嗎
閱讀次數:567686次
農村5萬塊就能自建房,6套普通房子設計圖分享,你沒看錯!
閱讀次數:419410次
8套農村漂亮三間平房圖片,非常適合在農村修建!
閱讀次數:411197次
農村自建房化糞池怎么做?附方案及施工過程
閱讀次數:391783次
農村一層三間平房設計圖,告別土氣養老房,讓人忍不住點贊
閱讀次數:350581次
新農村二層樓房圖片造價12萬,挑一套回家建房吧!
閱讀次數:349126次
