
|
城市商品房價格持續走高,讓大部分人望而祛步。不少人都選擇回老家自己建房,而農村蓋房子圖的就是經濟實用,滿足一家老小的居住需求,又不是那么的貴。選擇兩層半20萬農村自建房是最合適的,下面小編就給大家推薦幾款兩層半20萬左右的農村自建房,喜歡的朋友可以作為參考。 兩層半20萬農村自建房推薦: 第一款:單家獨院式農村自建房
本戶型屬于兩層半20萬農村自建房的一種,采用平屋頂與坡屋頂相結合,外觀、造型簡潔大方,色彩明快,房間尺度設計適宜,空間利用率高。占地面積215.46平方米,建筑面積564.3平方米;
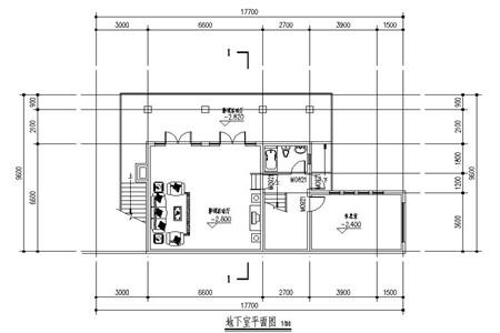
地下室設:有影視活動廳,休息室、衛生間;
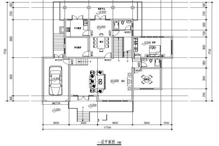
一層:設有客廳、棋牌室、車庫、西式廚房、中式廚房、餐廳、客房、2個衛生間;老人臥室、衛生間、廚房、餐廳;
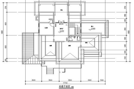
二層:設有主臥室、2間次臥室、2間書房、家庭室、2個衛生間、大露臺;
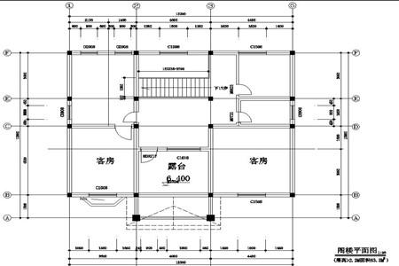
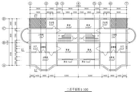
閣樓:設有兒童房、游戲廳、衛生間、儲藏間,其他空間功能自定、屋面露臺。 第二款:帶閣樓的雙拼別墅
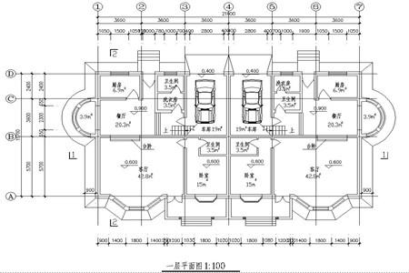
戶型為雙拼別墅,占地面積252.72平方米,采用坡屋頂,內部布置合理,凈污分離,外觀造型簡潔大方,色彩明快,多用途的閣樓設計。
一層:設有廚房、餐廳、客廳、洗衣房、車庫、衛生間、臥室(帶衛生間),雙拼戶型一樣,一樓的臥室可以設置為老人房,方便家里的老人生活起居,省的爬樓梯。
二層:設有衛生間、2間臥室、主臥、衣帽間、工作間、陽臺,雙拼戶型一樣,工作間可以根據需要改為書房或者儲藏室,陽臺用于觀景。
閣樓:設有2間臥室,可以用做客房,也可以另行設計成其他風格房間。 第三款:單家獨院式農村自建房
戶型為二層半獨棟別墅,占地面積126.43平方米,本戶型平面功能分區明確,布置合理;立面造型樸素大方而又活潑別致,色彩清新淡雅,明廚明衛,各使用空間都有較好的采光通風,富有時代氣息。
一層:設有客廳、餐廳、廚房、洗衣房、儲藏間、臥室、衛生間;布局合理,沒有浪費空間。
二層:設有主臥室(帶衣帽間)、客房帶陽臺、兒童臥室、走入式衣柜、2間衛生間、書房;客房也帶陽臺感覺很棒,2間衛生間很實用。
閣樓層:設有3臥室、衛生間、活動室、露臺;3間臥室充分滿足家里來客時的需要,活動室也可根據需要改為儲藏室或者兒童玩具房。 以上三款就是兩層半20萬農村自建房,個人覺得設計都比較獨特,空間布局也很多,完全可以滿足一家老小的居住需求,重點是主體的造價也不貴,需要在農村建房子的朋友可以參考。 圖紙之家-專注農村別墅/自建房設計18年,集合國內200余位經驗豐富的設計師,被評為口碑最好的農村建筑設計公司! |

獨棟二層別墅cad設計圖紙,平屋頂自建別墅方案精選
占地:190平方米
新農村簡歐三層樓房圖片自建3層別墅施工設計圖及效果圖
占地:126平方米
兩層樓房設計圖,兩層新農村樓房圖紙,外觀典雅古樸
占地:140平方米
客廳中空三層復式別墅房屋設計圖,帶外觀效果圖
占地:145平方米
開間13米左右新農村2層自建房別墅戶型設計圖,簡潔實用
占地:170平方米
鄉下三層大氣房子設計圖,外觀挺高大上的,主體29萬多
占地:132.48平方米
中式三層新農村房子別墅設計圖,看了那么久,還是中式最有韻味
占地:97.2平方米
歐式風二層別墅設計圖,帶陽光房設計,時尚美觀還很實用
占地:多戶型可選
155平方米自建二層CAD房屋設計圖紙及效果圖,13X12米
占地:156平方米
120平米農村40萬三層別墅自建房款式,簡歐風格
占地:120平方米
新中式三層別墅,旋轉樓梯+挑空客廳,高級感拉滿
占地:125平方米
高端大氣的三層新中式合院別墅設計圖紙及外觀效果圖
占地:203.4平方米
2026新中式農村三層別墅圖,外觀漂亮,看一眼就愛上
占地:240平方米
大氣的三層鄉村別墅設計方案圖,小面積建出豪宅感
占地:104.9平方米
帶車庫二層別墅設計圖及效果圖,帶車庫的農村二層樓房推薦
占地:123平方米
歐式小別墅設計圖紙帶效果圖,二層歐式小別墅設計方案展示
占地:166平方米
農村四間二層別墅設計方案圖,外觀精致、時尚
占地:152平方米
農村帶車庫兩層歐式農村別墅設計圖紙,占地220平方米左右
占地:221平方米
114平方米農村四層別墅設計圖紙及效果圖,11X11米
占地:114平方米
占地110平米兩層半農村房子設計圖,簡單實用
占地:110.25平方米
推薦:10套新農村自建房設計圖,2026年最新設計
閱讀次數:4825737次
100套鄉村別墅圖片大全,2026年最新設計
閱讀次數:2492203次
6款農村蓋一層平房的設計圖,10萬元就能建起來
閱讀次數:1852637次
這11個一層農村自建房別墅火爆了朋友圈!我最喜歡戶型十!你呢
閱讀次數:750268次
農村6萬元建一層小別墅圖,你敢相信嗎
閱讀次數:567686次
農村5萬塊就能自建房,6套普通房子設計圖分享,你沒看錯!
閱讀次數:419410次
8套農村漂亮三間平房圖片,非常適合在農村修建!
閱讀次數:411197次
農村自建房化糞池怎么做?附方案及施工過程
閱讀次數:391783次
農村一層三間平房設計圖,告別土氣養老房,讓人忍不住點贊
閱讀次數:350581次
新農村二層樓房圖片造價12萬,挑一套回家建房吧!
閱讀次數:349126次
