
|
現在農村的經濟是越來越好了,很多人都在自己的家里建起了小別墅,一個是為自己在外面過年回去的時候能有個地方住,再有一個重要的就是給家里的父母住了,不在乎大小,經濟實惠就最好的選擇。 今天給大家介紹五套農村養老房別墅,第三款造價18萬,你中不中? 款式一
歐式別墅,一層非常適合農村老人居住,看外觀布局簡潔大方。內部布局合理,很適合農村居住的習慣。 別墅編號:MS1701008 占地尺寸:21.34X14米 占地面積:230.87平方米 建筑面積:230.87平方米 結構類型:框架結構 主體造價:23-28萬左右 建筑風格:歐式風格
款式二
兩層歐式別墅,造型比較偏高大,門外在加一節樓梯,給房子添加它的特色,白墻藍瓦,房子看起來更好看了 別墅編號:MS1702145 占地尺寸:12.4X14.6米 占地面積:181平方米 建筑面積:358.3平方米 結構類型:磚混結構 造價預算:28-35萬左右 建筑風格:歐式風格
款式三
簡歐風小別墅,富有品味。門廊設計高大體面,雖然面積小,但也能建出大氣體面的一層別墅 別墅編號:MS1701005 占地尺寸:16X9.3米 占地面積:145.38平方米 建筑面積:145.38平方米 結構類型:磚混結構 主體造價:16-22萬 款式四
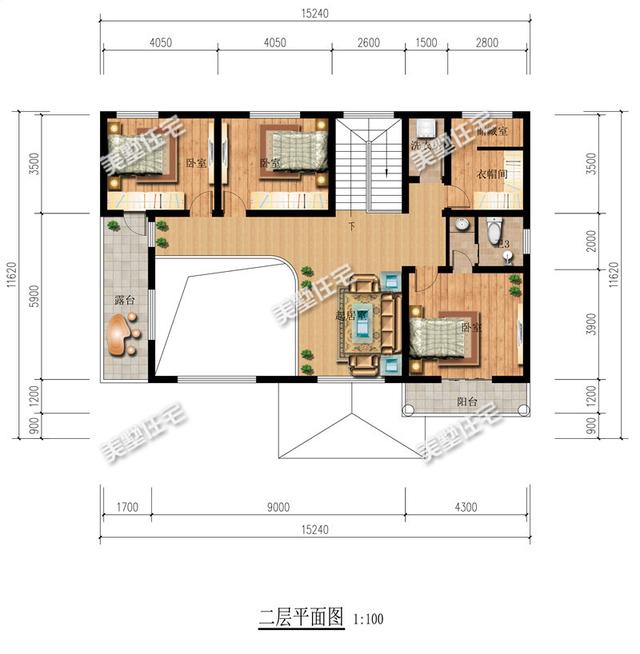
二層簡歐式背書,漸變色建筑外觀顯得明媚,富有品味。有專門設計的老人房,布局合理,非常適合農村生活。 別墅編號:MS1702139新品 占地尺寸:15.24X11.62米 占地面積:176.78平方米 建筑面積:391.95平方米 結構類型:框架結構 造價預算:39-46萬左右 別墅風格:簡歐風格
款式五
一層別墅,造型獨特,有專門設計的院子,布局也是把每個面積都合理分配,專門設計了神臺是非常符合農村生活的 別墅編號:MS1801004 占地尺寸:13.2x17.4米 占地面積:157.24平方米 建筑面積:157.24平方米 結構類型:磚混結構 主體造價:18-25萬 建筑風格:歐式風格 ![]() 圖紙之家-專注農村別墅/自建房設計18年,集合國內200余位經驗豐富的設計師,被評為口碑最好的農村建筑設計公司! |

鄉下一層自建養老平房戶型圖及全套圖紙,占地面積200左右
占地:200平方米
農村小戶型三層別墅設計圖,平屋頂,造價20萬左右
占地:80平方米
80平方米農村四層房屋設計圖紙及效果圖
占地:80平方米
面寬20米農村自建房設計圖一層設計圖,五開間養老戶型
占地:194平方米
一層雙拼別墅獨立入戶+共用墻,兄弟合建,施工隊直呼太省料
占地:269.43平方米
120平現代實用三層別墅房屋設計圖,含外觀效果圖
占地:120平方米
農村中式兩層雙拼別墅房屋設計圖,含效果圖片
占地:200平方米
農村2026新式三間二層樓房,12×11.6米,戶型經典,造價實惠
占地:120平方米
150平米一層7字型別墅設計方案,功能齊全舒適簡約,設計感十足
占地:154.48平方米
適合兄弟自建的二層雙拼別墅設計方案,帶效果圖
占地:180平方米
占地80平四層平頂別墅設計圖,現代風房子效果圖
占地:80平方米
大平方大面積別墅設計方案圖,樓中樓客廳中空
占地:247平方米
120平米農村三層房屋設計圖,客廳中空,戶型合理
占地:120平方米
130平方米湖南二層復式自建房屋設計圖紙12x11米
占地:128平方米
鄉下建房一層戶型圖,一層住宅設計圖紙,誰說一層平房不能叫別
占地:200平方米
兩層15萬農村自建房設計圖,農村蓋房設計大全圖
占地:130平方米
面寬8米的新農村三層自建房設計圖平屋頂,全套cad圖紙+效果圖
占地:115平方米
新農村三拼別墅三戶連體別墅設計圖,設計新穎美觀
占地:380平方米
高端三層帶地下室別墅房屋設計圖方案及效果圖
占地:135平方米
面寬8米多的三層農村別墅設計圖,小開間宅基地推薦
占地:112.82平方米
推薦:10套新農村自建房設計圖,2026年最新設計
閱讀次數:4825737次
100套鄉村別墅圖片大全,2026年最新設計
閱讀次數:2492203次
6款農村蓋一層平房的設計圖,10萬元就能建起來
閱讀次數:1852637次
這11個一層農村自建房別墅火爆了朋友圈!我最喜歡戶型十!你呢
閱讀次數:750268次
農村6萬元建一層小別墅圖,你敢相信嗎
閱讀次數:567686次
農村5萬塊就能自建房,6套普通房子設計圖分享,你沒看錯!
閱讀次數:419410次
8套農村漂亮三間平房圖片,非常適合在農村修建!
閱讀次數:411197次
農村自建房化糞池怎么做?附方案及施工過程
閱讀次數:391783次
農村一層三間平房設計圖,告別土氣養老房,讓人忍不住點贊
閱讀次數:350581次
新農村二層樓房圖片造價12萬,挑一套回家建房吧!
閱讀次數:349126次
