
|
農村人修建新房,很少有人愿意花錢去設計外觀和戶型,如果村里哪家新建的房子造型美觀大氣、裝修得有特色,全村人都會參觀仿建。新房得到大家的認可,戶主也更有面子。今天給大家推薦5套四層農村80萬別墅款式設計圖,建成后全鄉就屬你家最美,根本找不到競爭對手。 第一套:農村自建四層豪宅別墅設計圖圖紙介紹:農村自建四層百萬豪宅別墅設計圖,客廳中空,茶室、書房、娛樂室都囊括其中,功能齊全,這樣的別墅建出來氣派到讓人羨慕。一層就布局的很寬敞大氣,廚房中設有后門,符合農村的生活習慣。樓梯設計上也采用了很多農村別墅設計中的慣用手法,從旋轉樓梯完成直角樓梯的切換,洋氣又節省空間。 占地面積:13.50m*16.3m,170平方米左右; 建筑層高:四層; 建筑高度:16.6米(含屋頂); 設計功能: 一層戶型展示:客廳、廚房、餐廳、茶室、臥室、衛生間; 二層戶型展示:客廳上空、客廳、臥室(帶衛生間、衣帽間)、臥室×2、公衛; 三層戶型展示:娛樂室、臥室(帶衛生間、衣帽間)、臥室×3、公衛、陽臺、露臺;
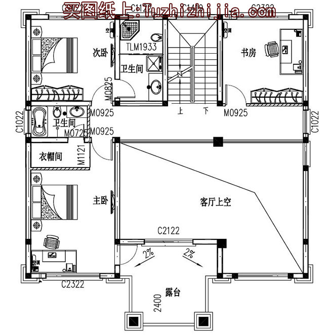
第二套:新農村四層獨棟復式別墅設計圖圖紙介紹:新農村四層獨棟復式別墅設計圖,設計豪華時尚,針對現代農村建房審美及需求而設計,這是一款集奢華與實用為一體的歐式別墅設計圖,一樓客廳中空設計,每層樓都擁有充足的活動區 占地面積:12.3m*11.60m,143平方米左右; 建筑層高:四層; 建筑高度:16.1米(含屋頂); 設計功能: 一層戶型展示:客廳、小客廳、廚房、餐廳、老人房(帶衛生間)、衛生間; 二層戶型展示:客廳上空、茶座、主臥(套衛、書房、衣帽間)、次臥(帶套衛)、陽臺; 三層戶型展示:茶座、主臥(套衛)、次臥(帶套衛)×2、陽臺、書房; 四層戶型展示:健身房、影音室、洗衣房、陽光房、小露臺;
第三套:簡歐復式四層別墅房屋設計圖圖紙介紹:本戶型為簡歐復式四層別墅設計圖,外觀高端、大氣,簡歐風格,寬大的落地窗提升采光和通風效果,現代生活布局,二、三層以居住為主,四層以娛樂為主,將生活和娛樂完美結合,展現農村富裕的生活。 占地面積:12.4m*11.6m,143平方米左右; 建筑層高:四層; 建筑高度:16.15米(含屋頂); 設計功能: 一層戶型展示:門廳、客廳、餐廳、廚房、主臥(帶衛生間)、臥室、衛生間、儲藏間; 二層戶型展示:客廳上空、主臥(帶衛生間)、臥室、書房、衛生間(可以做公衛或主衛)、露臺; 三層戶型展示:臥室x4(其中2個帶衛生間)、書房、衛生間、陽臺x3; 四層戶型展示:家庭影院、健身房、衛生間、陽光房、露臺、換衣間(儲藏間);
第四套:農村四層樓房外形設計圖圖紙介紹:農村四層樓房外形設計圖,主臥配有陽臺和衣帽間還有衛生間,更多的功能讓業主及其家人生活上也極為舒服。北側則是在臥室外增加有陽光房,豐富的半室外空間在四層讓業主能夠登高望遠,享受更好居住體驗。 占地面積:10.40m*12.8m,126平方米左右; 建筑層高:四層; 建筑高度:16.5米(含屋頂); 設計功能: 一層戶型展示:客廳、餐廳、廚房、臥室(帶衛生間)、公衛; 二層戶型展示:休息廳、主臥(帶衣帽間和衛生間)、臥室(帶衛生間)、臥室、公衛、陽臺; 三層戶型展示:休息廳、臥室(帶衛生間、書房)、臥室(帶衛生間)、臥室、公衛; 四層戶型展示:KTV、儲藏室、露臺、公衛×2、陽光房;
第五套:大氣豪華四層別墅設計圖紙圖紙介紹:大氣豪華四層別墅設計圖紙,占地180平米左右,經典的歐式外觀,無需贅述,它大氣端莊的形象早已深入人心。夜幕降臨時,室內暖融融的燈光逐一亮起,它絕對是整個鎮上最閃亮的一棟。 占地面積:15.8m*11.30m,180平方米左右; 建筑層高:四層; 建筑高度:15.57米(含屋頂); 設計功能: 一層戶型展示:大廳、廚房、餐廳、客廳、茶室、保姆房、衛生間; 二層戶型展示:客廳上空、臥室、休閑廳、健身房、衛生間、露臺; 三層戶型展示:主臥(帶衣帽間,衛生間,書房,陽臺)×2、臥室(帶衣帽間和衛生間)×2; 四層戶型展示:臥室(帶衣帽間和衛生間)×2、洗衣房、露臺;
現在貸款買房是非常常見的,農村自建房雖然不能貸款,但是找親戚朋友借錢也是非常正常的。現在的建材價格和人工費用這么高,如果光憑自己攢錢,要建房可能得等到猴年馬月了,還不如先借錢把房子蓋起來,然后再慢慢還錢。今天給大家分享的這5套四層農村80萬別墅款式設計圖,造價比那些面積小、層數少的別墅要高不少,有壓力才更有動力! 圖紙之家-專注農村別墅/自建房設計18年,集合國內200余位經驗豐富的設計師,被評為口碑最好的農村建筑設計公司! |

給爸媽建養老房?100 平人字坡一層房太合適!簡約低調還實用
占地:102.6平方米
160平小開間大進深農村三層別墅設計圖紙
占地:158.73平方米
農村五開間大平層設計圖,主體15萬就能建。
占地:182.43平方米
三層平屋頂別墅房屋設計圖及外觀效果圖
占地:150平方米
單棟多戶三層別墅設計圖,適合兩三家一起住
占地:125平米
農村七字型一層別墅圖,獨立廚房設計,鄉村建房優選戶型
占地:159.76平方米
對稱型歐式別墅設計圖,穩重實用,開間18米,適合全國農村建
占地:228.2 平方米
3款三層農村自建別墅設計圖,氣派十足,準備建房的快快查看
占地:多戶型可選
高端大氣的農村四層樓房別墅設計圖,戶型真不錯,占地130多平
占地:135.31平方米
中式兄弟雙拼別墅設計圖紙,類似合院造型,美爆了
占地:221.9平方米
帶車庫徽派風格三層別墅房屋設計圖,新農村住宅設計推薦
占地:140平方米
帶車庫現代三層樓房設計圖,外觀效果圖時尚、美觀
占地:160平方米
新中式三層豪華大氣三層別墅自建房屋設計圖,帶地下室,土豪專
占地:194平方米
20萬以內二層歐式小別墅設計方案,全套施工圖+效果圖
占地:115平方米
155平方米自建二層CAD房屋設計圖紙及效果圖,13X12米
占地:156平方米
農村自建四層百萬豪宅別墅設計圖,客廳中空
占地:170平方米
15萬左右新中式二層別墅設計圖平面圖,占地110平米左右
占地:110平方米
新農村二層小別墅全套設計圖紙(含外觀效果圖)
占地:85.6平方米
復式三層別墅設計圖片及全套圖紙,客廳中空,外觀為歐式建筑的
占地:175平方米
三層新中式別墅建筑設計圖紙及圖片,11.66m*9.76m,典雅耐看
占地:114平方米
推薦:10套新農村自建房設計圖,2026年最新設計
閱讀次數:4825737次
100套鄉村別墅圖片大全,2026年最新設計
閱讀次數:2492203次
6款農村蓋一層平房的設計圖,10萬元就能建起來
閱讀次數:1852637次
這11個一層農村自建房別墅火爆了朋友圈!我最喜歡戶型十!你呢
閱讀次數:750268次
農村6萬元建一層小別墅圖,你敢相信嗎
閱讀次數:567686次
農村5萬塊就能自建房,6套普通房子設計圖分享,你沒看錯!
閱讀次數:419410次
8套農村漂亮三間平房圖片,非常適合在農村修建!
閱讀次數:411197次
農村自建房化糞池怎么做?附方案及施工過程
閱讀次數:391783次
農村一層三間平房設計圖,告別土氣養老房,讓人忍不住點贊
閱讀次數:350581次
新農村二層樓房圖片造價12萬,挑一套回家建房吧!
閱讀次數:349126次
