
|
世界再大,也要回家過年,一晃眼,2018年過去了,還有二十來天就過年了,不管在外面有多么辛苦,家都是支持我們繼續下去的動力,而當我們有能力了,最先考慮的也是如何讓我們的家更舒適。 在老家的宅基地,用海容模塊建棟小別墅,簡單時尚,優雅大氣,關鍵是冬暖夏涼,舒適宜居。還有一個小小庭院,栽栽花種種菜,給父母泡壺茶聊天,樹蔭下與孩子嬉戲,最美的日子也不過如此。
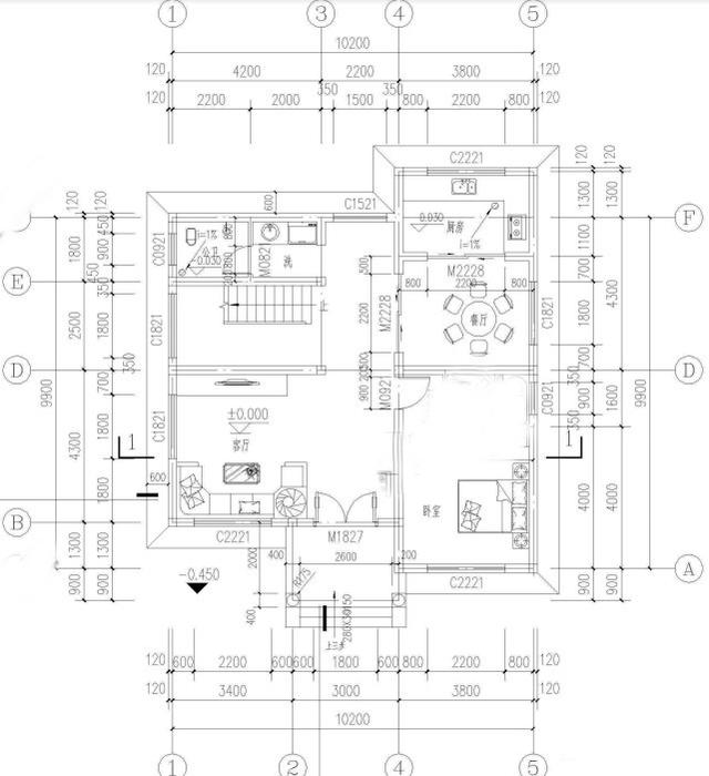
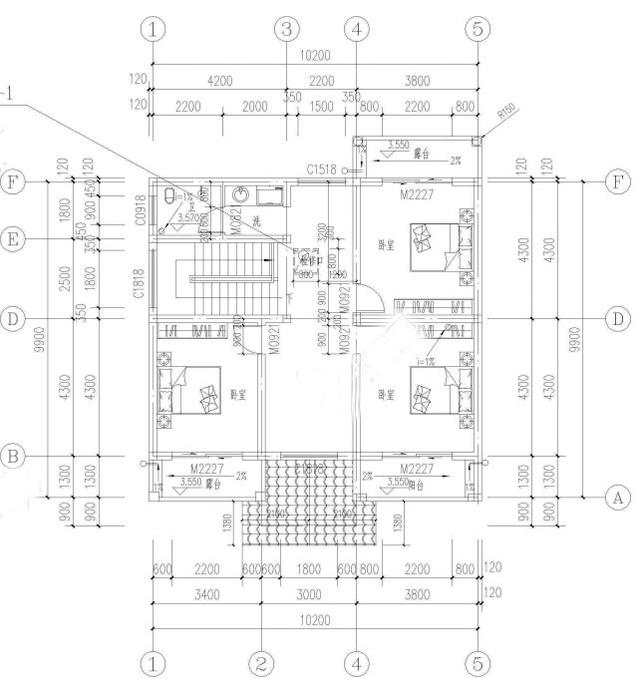
房屋概況 房屋尺寸:10.2m*9.9m 占地面積:100.98㎡ 建筑面積:201.96㎡ 毛坯房成型預計費用:17.6萬左右(包括海容模塊、鋼筋、混凝土、砂漿、網 格布以及人工); 其中海容模塊(HR-EPS模塊)墻體預計費用:5.9萬。
海容模塊建房,施工簡單
選擇海容模塊(HR-EPS模塊)建房的理由 (1)自身強度大,導熱系數小僅為0.028w/m·k,節能效果明顯; (2)本身B1級防火,結構性防火好; (3)建房子封堵了冷熱橋,建筑物使用壽命長久; (4)抗震等級高,適用于抗震設防烈度8度及8度以下地區; (5)施工簡便、操作靈活,建造過程中完全取代墻體各種砌塊、澆筑模板、 外墻保溫材料; (6)建造周期短、綜合性價比高,滿足建筑節能與結構一體化技術要求; (7)施工過程無建筑垃圾產生,實現現場文明施工; (8)種類齊全、幾何尺寸準確,材料損耗小。 圖紙之家-專注農村別墅/自建房設計18年,集合國內200余位經驗豐富的設計師,被評為口碑最好的農村建筑設計公司! |

簡單實用農村自建小樓二層別墅設計圖,戶型造型簡約好看
占地:146平方米
最好看的農村三層樓房設計圖,占地113平米,小平米大格局
占地:110平方米
造價12萬一層簡單自建房設計戶型圖,占地面積140平方米左右
占地:137.76平方米
鄉下復式三層房子設計圖,帶堂屋,客廳中空,輕奢風格
占地:190平方米
爆款120平米三層農村別墅房屋設計圖,室內布局功能齊全,色彩搭
占地:120平方米
170平方米新農村實用的三層雙拼設計圖紙,帶公用堂屋!
占地:173.62平方米
省錢美觀一層自建房子設計圖,父母養老住很適合
占地:117平方米
共用樓梯二層雙拼自建別墅設計圖,簡單大氣方正
占地:153.88平方米,
鄉村兄弟小戶型雙拼一層房屋設計圖,雙拼別墅格局精煉,實用性
占地:160平方米
帶庭院的農村一層別墅圖紙設計,外觀時尚好看
占地:多戶型可選
新中式二層農村別墅設計圖紙及外觀圖,面寬15米左右
占地:148.86平方米
100平米兩間三層樓房設計圖,農村蓋房舒服實用最重要
占地:100平方米
3款簡單舒適二層別墅設計圖,低調配色,造型簡單大氣
占地:多戶型可選
兄弟倆二層雙拼別墅設計圖紙,一層共用,設計新穎
占地:180平方米
20萬農村二層小洋樓設計圖,帶鍋爐房,漂亮簡單實用
占地:165平方米
帶地下室的一層別墅設計圖,農村自建房比較合適
占地:206平方米
實用型二層別墅設計方案,占地120平米簡單大方最耐看
占地:120平方米
三層三間別墅設計圖方案,含外觀圖片,自建推薦
占地:125平方米
現代風格三拼別墅設計圖紙,三兄弟回村自建房戶型
占地:324平方米
150平米簡歐三層農村別墅設計圖,低調又奢華
占地:151.2平方米
推薦:10套新農村自建房設計圖,2026年最新設計
閱讀次數:4825737次
100套鄉村別墅圖片大全,2026年最新設計
閱讀次數:2492203次
6款農村蓋一層平房的設計圖,10萬元就能建起來
閱讀次數:1852637次
這11個一層農村自建房別墅火爆了朋友圈!我最喜歡戶型十!你呢
閱讀次數:750268次
農村6萬元建一層小別墅圖,你敢相信嗎
閱讀次數:567686次
農村5萬塊就能自建房,6套普通房子設計圖分享,你沒看錯!
閱讀次數:419410次
8套農村漂亮三間平房圖片,非常適合在農村修建!
閱讀次數:411197次
農村自建房化糞池怎么做?附方案及施工過程
閱讀次數:391783次
農村一層三間平房設計圖,告別土氣養老房,讓人忍不住點贊
閱讀次數:350581次
新農村二層樓房圖片造價12萬,挑一套回家建房吧!
閱讀次數:349126次
