
|
其實現代化的別墅設計戶型在農村的口碑并不是很高,一是很多人都擔心現代風格和農村環境不是很搭配,二就是擔心現代化別墅戶型對結構和材料的要求會復雜。但還是有一些人受到大城市建房風格的吸引,勇敢的去嘗試這種現代風格農村別墅,建成之后的效果當然也是杠杠的,今天小編就給大家帶來了現代二層平頂別墅圖片,趕緊在村里來一棟吧。 戶型一:農村超現代自建房平屋頂二層別墅設計圖,造價低,施工簡單
圖紙介紹:這款別墅戶型造價低,施工簡單,簡約大方,住進去戶主的生活層次都會變得非常高雅,室內布局空間利用率超級高,一層有兩室三廳兩衛,舒適度極高;二層有臥室套件,超大的屋頂露臺,簡直太享受了。
占地面積:12.6m*13.1m,142平方米左右; 建筑層高:二層; 建筑高度:10.5米(含屋頂); 設計功能: 一層戶型:多功能廳、客廳、餐廳、廚房、臥室(帶衛生間)、臥室、衛生間; 二層戶型:起居室、臥室(帶書房、衣帽間、衛生間)、臥室、衛生間、陽臺、露臺; 戶型二:現代時尚二層別墅設計效果圖,平屋頂設計,占地130平方米
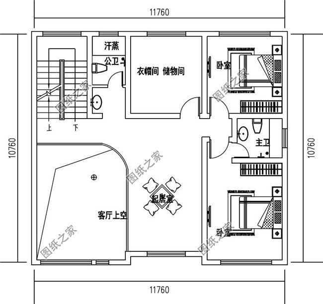
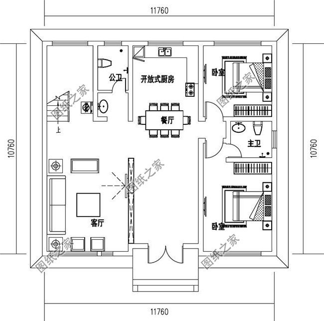
圖紙介紹:本戶型平屋頂設計,現代風格,別墅上下無不充斥著現代時尚的感覺,整體外觀非常簡潔,內部戶型十分合理,平屋頂的設計使屋頂的使用范圍變得很廣,為日常生活提供方便。
占地面積:11.76m*10.76m,130平方米左右; 建筑層高:二層; 建筑高度:10米(含屋頂); 設計功能: 一層戶型:客廳、廚房、餐廳、臥室(帶衛生間)、臥室、衛生間; 二層戶型:客廳上空、起居室、臥室(帶衛生間)、臥室、衣帽間儲物間、衛生間; 戶型三:簡單現代平屋頂設計圖,兩層四間自建房,簡潔實用
圖紙介紹:本戶型簡單洋氣,功能區分工非常明確,公共區域很大,很貼近農村生活;二層是很好的起居空間,屋頂超大露臺還可以做屋頂花園,晾曬衣服,實用性很高。
占地面積:15.76m*13.26m,192平方米左右; 建筑層高:二層; 建筑高度:11.125米(含屋頂); 設計功能: 一層戶型:客廳、活動室、廚房、餐廳、臥室(帶衛生間)、臥室x2、衛生間; 二層戶型:起居室、書房、臥室(帶衣帽間、衛生間)、臥室x3、衛生間、陽臺x2; 這幾款現代別墅時尚簡約,非常符合農村,所以不用擔心與周圍環境不和諧,趕快收藏圖紙吧。
圖紙之家-專注農村別墅/自建房設計18年,集合國內200余位經驗豐富的設計師,被評為口碑最好的農村建筑設計公司! |

新農村三層房屋設計圖紙(含效果圖),農村小別墅圖紙推薦
占地:116.15平方米
后面帶小院的農村房屋設計圖,適合鄉村自建
占地:300平方米
135平復式別墅房屋設計圖,外觀時尚、漂亮
占地:135平方米
90平方米農村二層房屋設計圖紙(施工圖+效果圖)
占地:90平方米
11X10米三層別墅農村自建房設計圖,復式挑空客廳
占地:119.08平方米
帶車庫,帶露臺的三層復式樓房設計圖,新農村房屋方案推薦
占地:140平方米
帶堂屋新農村三層房屋別墅設計圖紙,帶外觀效果圖
占地:214平方米
經典三層別墅設計圖,時尚典雅美觀大氣,新農村自建的理想之選
占地:119.45平方米
115平旋轉樓梯三層復式別墅房屋設計圖,含外觀效果圖
占地:115平方米
一層帶閣樓的自建別墅設計圖,省錢又實用
占地:166平方米
新農村實用三層帶露臺房屋設計圖紙,占地110平方米
占地:109平方米
帶大套間新農村二層別墅自建房設計圖紙帶效果圖
占地:185平方米
8萬元二層農村房子圖片及設計圖,簡易二層小樓,占地50平米
占地:50平方米
130-140平方米簡歐風格二層別墅設計施工圖紙,簡約大氣
占地:137平方米左右
經典農村二層小別墅設計圖紙帶露臺(含外觀效果圖)
占地:110平方米
農村三室二廳一層小平房設計圖,簡單實用型
占地:113.4平方米
農村大戶型中式二層四合院別墅設計圖含外觀效果圖,戶型經典、
占地:464平方米
造型對稱的簡約二層別墅設計圖紙,戶型布局好,13x13米5室2廳
占地:151.94平方米
超好看的現代簡約別墅設計圖,占地100平米,城里一套房都不換
占地:102.21平方米
農村三層樓房設計圖及圖片,客廳挑空,優化室內采光
占地:140平方米
推薦:10套新農村自建房設計圖,2026年最新設計
閱讀次數:4825737次
100套鄉村別墅圖片大全,2026年最新設計
閱讀次數:2492203次
6款農村蓋一層平房的設計圖,10萬元就能建起來
閱讀次數:1852637次
這11個一層農村自建房別墅火爆了朋友圈!我最喜歡戶型十!你呢
閱讀次數:750268次
農村6萬元建一層小別墅圖,你敢相信嗎
閱讀次數:567686次
農村5萬塊就能自建房,6套普通房子設計圖分享,你沒看錯!
閱讀次數:419410次
8套農村漂亮三間平房圖片,非常適合在農村修建!
閱讀次數:411197次
農村自建房化糞池怎么做?附方案及施工過程
閱讀次數:391783次
農村一層三間平房設計圖,告別土氣養老房,讓人忍不住點贊
閱讀次數:350581次
新農村二層樓房圖片造價12萬,挑一套回家建房吧!
閱讀次數:349126次
