
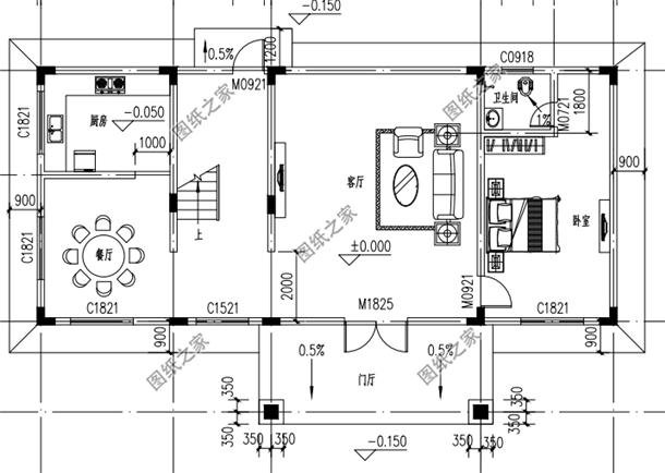
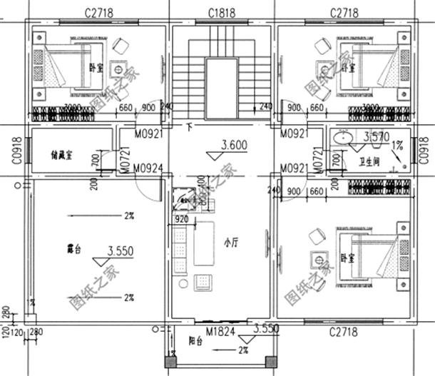
農村別墅戶型一:110平方米房子設計圖,農村經典房屋設計圖圖紙介紹:本戶型為經典的二層帶露臺風格,首層設計滿足農村人的日常生活要求,開放式客廳設計加大了空間闊度,視覺效果更出眾,同時也令居室看上去更通透! ![]() 占地面積:9.6m*11.4m,110平方米左右; 建筑層高:二層; 建筑高度:10.50米(含屋頂); 設計功能: 一層房屋戶型:客廳、主臥、臥室、廚房、餐廳、衛生間 二層房屋戶型:主臥、臥室x2、書房、衛生間、露臺; ![]() ![]() 農村別墅戶型二:時尚大方的農村二層自建房屋設計圖圖紙介紹:時尚大方的農村二層自建房屋設計圖紙,占地120平米左右,簡歐風格,美好的生活,不僅在于擁有一種良好的心態,其實也在于居住環境的舒適度,擁有這樣美好的居住環境,生活豈不美哉! ![]() 占地面積:16.6m*9.8m,占地120平方米左右; 建筑層高:二層半(帶悶頂層); 建筑高度:9.48米(含屋頂); 設計功能: 一層戶型:客廳、餐廳、廚房、主臥(帶衛生間); 二層戶型:公共休閑區、臥室(帶衛生間)×3、陽臺×2; ![]() ![]() 農村別墅戶型三:鄉村二層別墅設計圖,含外觀效果圖圖紙介紹:本戶型為簡歐風格,集浪漫、優雅、高貴、大方于一體,迎合了現在年輕人的喜愛。現在都市的忙碌生活,早已讓我們厭倦了花天酒地,燈紅酒綠。我們更需要一個安靜,祥和舒適的家,來消除工作的疲憊忘卻城市的喧鬧。設計師推薦的這套不錯的圖紙,是理想的自建戶型。 ![]() 占地面積:13.2m*10.5m,140平方米左右; 建筑層高:二層; 建筑高度:9.06米(含屋頂); 設計功能: 一層別墅戶型:堂房、客廳、臥室x2、廚房、餐廳、衛生間 二層別墅戶型:小客廳、臥室x3、儲藏間(更衣室)、衛生間、露臺; ![]() ![]() 以上就是三款農村的房子怎樣建好看圖片,看膩了網上很多農村別墅圖紙,相信這三款里邊一定有你喜歡的。
圖紙之家-專注農村別墅/自建房設計18年,集合國內200余位經驗豐富的設計師,被評為口碑最好的農村建筑設計公司! |

10米×12米30萬以內農村建房三層豪華歐式別墅圖,處處顯品味
占地:120平方米
獨棟經濟型二層小別墅房屋設計圖,含全套施工圖效果圖
占地:多種戶型
一眼就驚艷的二層新中式別墅設計圖,大氣做夢都想回家蓋棟!
占地:128.58平方米
簡約精致的二層房子設計圖,農村自建經濟實用
占地:89.76平方米
130平方米現代簡約農村兩層樓房施工設計圖紙帶外觀圖
占地:126平方米
農村二層樓簡單大氣的樓房設計圖紙,帶車庫,帶露臺
占地:150平方米
帶院子的四間二層別墅房屋設計圖,帶獨立車庫
占地:350平方米
140平四層復式別墅房屋設計圖,帶外觀效果圖
占地:140平方米
50萬左右農村三層別墅設計圖,歐式的外觀大氣沉穩
占地:150平方米
新中式三層雙拼別墅設計圖,外觀圖片美觀、大氣
占地:176平方米
簡約現代的二層別墅自建房設計圖,13米乘9米
占地:124平方米
鄉村房屋改建三層房屋設計圖紙,農村樓房設計圖推薦
占地:90平方米
農村仿古四合院設計圖自建房,外觀中式古樸典雅
占地:378平方米
占地130平方米中式二層小樓房設計圖紙,農村自建戶型實用
占地:136.04平方米
90平米三層農村房子設計圖,簡單大氣實用
占地:94.28平方米
經典美式風100平米二層小別墅設計方案,鄉村建房首選
占地:100.17平方米
鄉村一層帶閣樓歐式小別墅,“L”型七字設計戶型
占地:194.218平方米
最新農村三層樓房設計圖紙,客廳中空,采用暖黃色為主色
占地:160平方米
實用農村三層房屋設計圖紙,效果圖+全套施工圖
占地:113平方米
面寬13米方正戶型二層小別墅設計方案,南北通透采光好
占地:166.78平方米
推薦:10套新農村自建房設計圖,2026年最新設計
閱讀次數:4825737次
100套鄉村別墅圖片大全,2026年最新設計
閱讀次數:2492203次
6款農村蓋一層平房的設計圖,10萬元就能建起來
閱讀次數:1852637次
這11個一層農村自建房別墅火爆了朋友圈!我最喜歡戶型十!你呢
閱讀次數:750268次
農村6萬元建一層小別墅圖,你敢相信嗎
閱讀次數:567686次
農村5萬塊就能自建房,6套普通房子設計圖分享,你沒看錯!
閱讀次數:419410次
8套農村漂亮三間平房圖片,非常適合在農村修建!
閱讀次數:411197次
農村自建房化糞池怎么做?附方案及施工過程
閱讀次數:391783次
農村一層三間平房設計圖,告別土氣養老房,讓人忍不住點贊
閱讀次數:350581次
新農村二層樓房圖片造價12萬,挑一套回家建房吧!
閱讀次數:349126次
