
|
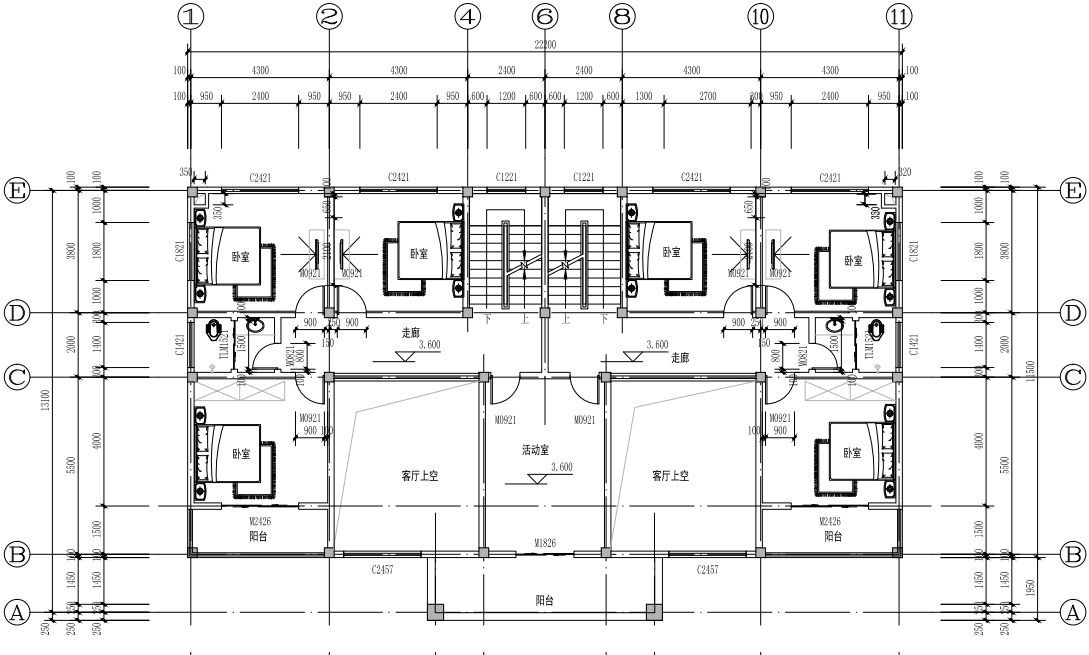
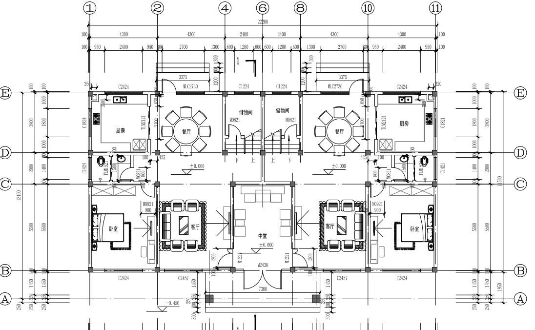
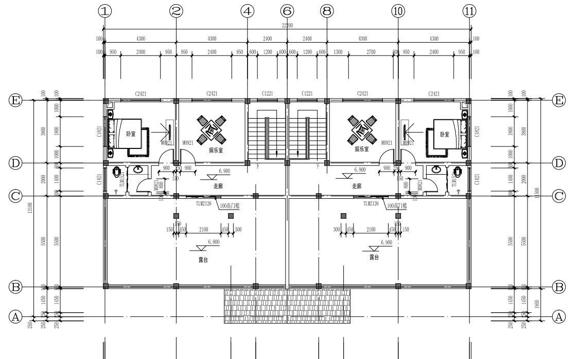
兄弟之間的感情真的是不可以用語言來表達的。小時候一起上學、一起搗蛋、一起打架,從少年到青年,美好的事,都是和兄弟一起度過。現在各自成家后再合建一套雙拼別墅,繼續譜寫兄弟之情。還可以節省很多建房成本,合理利用宅基地的空間,而且兩兄弟住得近,方便交流感情,今天小編為大家分享三款鄉村經典歐式雙排別墅設計圖以及戶型圖,看你喜歡嗎? 第一款:170平方米三層歐式大氣風格雙拼別墅設計圖以及戶型圖,簡單大氣![]() ![]() ![]() 這款三層歐式雙拼別墅十分的氣派適合兄弟兩個一起建造,村里人看了一定會說很有出息。主體使用暖色真石漆裝飾,屋頂是溫暖的紅色磚瓦。多陽臺多露臺的設計讓別墅很有層次感,大面積落地窗和歐式構件讓別墅更加具有觀賞性。 占地面積:18m*9.5m,172平方米左右,單戶86平左右; 建筑層高:三層; 建筑高度:12.62米(含屋頂); 設計功能: 一層:神臺、客廳、餐廳、廚房、臥室(帶衛生間)、臥室、衛生間; 二層:客廳、臥室(帶衛生間)、臥室x2、衛生間、陽臺; 三層:臥室(帶衛生間)、臥室x2、衛生間、露臺 ![]() ![]() ![]() 第二款:經典歐式風格三層雙拼別墅設計圖設計圖以及戶型圖,大氣的外觀設計![]() ![]() ![]() 農村建房兄弟雙拼三層,經典的歐式風格,大氣的外觀。回家建一棟屬于自己的新房。不僅能提升生活品質,還倍有面子。 占地面積:22.2m*13.1m,250平方米左右,單戶125平左右; 建筑層高:三層; 建筑高度:12.2米(含屋頂); 設計: 一層:中堂、客廳、餐廳、廚房、臥室、衛生間、儲藏間; 二層:客廳上空、臥室×3、衛生間、共用(活動室、陽臺); 三層:臥室、棋牌室、衛生間、露臺; ![]() ![]() ![]() 第三款:頗受農村歡迎的豪華三層歐式雙拼別墅設計圖以及戶型圖,帶露臺設計![]() 雙拼歐式別墅這樣設計高端大氣上檔次!白色墻體與藍色屋頂搭配清新奪目,給人一種溫馨又清爽的設計美感,對稱設計,中間以墻分界,其他的兩邊各住一戶,分別設有廚房、餐廳、落地窗、旋轉樓梯、凸窗、露臺、家庭娛樂室、臥室套房等功能,奢華大氣。起居室為住戶提供休閑娛樂場地,大露臺的讓住戶與自然更親近,擺一桌椅,手握一本閑書,泡一壺清茶,盡享午后休閑時光。 占地面積:23.82m*10.82m,258.294平方米左右,單戶129.15平左右; 建筑層高:三層; 建筑高度:12.417米(含屋頂); 設計: 一層:客廳、餐廳、廚房、土灶房、臥室、衛生間; 二層:客廳上空、起居室、娛樂區、臥室x2、衛生間; 三層:娛樂區、臥室、臥室(帶衛生間)、露臺x3 ![]() ![]() ![]() 以上就是小編推薦的三款鄉村經典歐式雙拼別墅設計圖以及戶型圖,喜歡哪個?分享給家人看看!
圖紙之家-專注農村別墅/自建房設計18年,集合國內200余位經驗豐富的設計師,被評為口碑最好的農村建筑設計公司! |

120平米三層小別墅設計方案和效果圖,端莊大氣很經典
占地:120平方米
最新農村20萬元二層半別墅設計圖,占地僅110多平
占地:110平方米
新中式高端豪宅三層別墅自建房設計圖,大戶型經典
占地:270平方米左右
青瓦仿古中式大型三層別墅設計圖,韻味十足復古大氣
占地:300平方米
新農村小開間三層樓房設計圖,占地100平米左右
占地:多種戶型
140平方米三層別墅設計圖紙,歐式帶外觀效果圖
占地:140平方米
農村三合院設計圖及效果圖,自建三合院圖紙
占地:470平方米
農村宅基地建房二層別墅設計圖,適合回鄉自建!
占地:137.5平方米
三層帶地下室+旋轉樓梯別墅設計圖紙,復式挑空客廳
占地:多種戶型
140平四層復式別墅房屋設計圖,帶外觀效果圖
占地:140平方米
現代風平屋頂三層半農村小別墅設計圖,面寬僅7米
占地:90平方米
三層半復式別墅設計方案,全套設計圖+效果圖
占地:160平方米
豪華歐式三層別墅住宅設計圖紙,占地面積150平方米
占地:150平方米
樓中樓客廳挑高二層別墅設計圖,復式別墅方案推薦
占地:122平方米
闊氣高端的三層別墅設計圖,亮得恰到好處,永遠也住不膩
占地:160平方米
L字型自建房屋設計圖,一層別墅類型,外觀效果圖漂亮
占地:188.62平方米
百余平三層豪華別墅設計圖,高品位穩重耐看,全村都羨慕的豪華
占地:108.95平方米
帶雙車庫的新中式二層四合院別墅設計圖,戶型布局實用
占地:321平方米
四層農村別墅設計圖,一二層都有廚房和餐廳的戶型方案
占地:128.52平方米
二層平頂別墅設計圖,漂亮經濟實用二層農村小別墅最新房屋設計
占地:多種戶型
推薦:10套新農村自建房設計圖,2026年最新設計
閱讀次數:4825737次
100套鄉村別墅圖片大全,2026年最新設計
閱讀次數:2492203次
6款農村蓋一層平房的設計圖,10萬元就能建起來
閱讀次數:1852637次
這11個一層農村自建房別墅火爆了朋友圈!我最喜歡戶型十!你呢
閱讀次數:750268次
農村6萬元建一層小別墅圖,你敢相信嗎
閱讀次數:567686次
農村5萬塊就能自建房,6套普通房子設計圖分享,你沒看錯!
閱讀次數:419410次
8套農村漂亮三間平房圖片,非常適合在農村修建!
閱讀次數:411197次
農村自建房化糞池怎么做?附方案及施工過程
閱讀次數:391783次
農村一層三間平房設計圖,告別土氣養老房,讓人忍不住點贊
閱讀次數:350581次
新農村二層樓房圖片造價12萬,挑一套回家建房吧!
閱讀次數:349126次
