
|
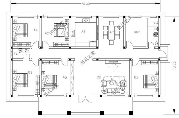
越來越多的人既在城里買了房子,也會在老家給爸媽建一棟房子,什么樣的自建房最適合農村養老居住呢?當然是一層自建房了,家人生活舒適,特別方便老人家居住。今天小編給大家介紹三款一層養老房,越看越漂亮,住上讓你的生活也越來越順利。 第一款:一層4間自建房設計圖以及戶型圖,占地160平左右![]() 簡單實用,入戶既是玄關,與客廳連接一起,使空間更加寬敞,餐廳和廚房相連,用餐方便,兩間臥室朝北,一間朝南,有獨立衛生間。外觀精致漂亮,真正做到了好貨也便宜。 占地面積:17.5m*9.5m,162.13平方米左右; 建筑層高:一層; 建筑高度:6.225米(含屋頂); 設計功能: 一層戶型:玄關、客廳、臥室(帶衛生間)、臥室x2、衛生間、廚房、餐廳 ![]() 第二款:農村一層5間歐式平房小洋樓設計圖以及戶型圖,戶型精致![]() 216平方米,簡單的風格打造不凡的整體美感。別墅采用的是歐式風格,簡約方正的整體設計,外墻裝修也屬于耐看型的,黃色的墻面、褐色外墻磚搭配紅色的屋檐,看上去搭配得剛剛好,看著很舒心。既有年輕人喜歡的精致線條,也有長輩喜歡的端莊大氣。別墅正面的門廊設計氣派體面,巍峨的方形廊柱設計,精致又靈動。室內功能齊全,四室二廳,滿足一代人的居住需求! 占地面積:20m*13.2m,216平方米左右; 建筑層高:一層; 建筑高度:6.59米(含屋頂); 設計功能: 一層戶型:客廳、儲物間、廚房、餐廳、臥室(衛生間)、臥室x4、衛生間 ![]() 第三款:一層簡單自建房設計圖以及戶型圖,占地面積140平方米![]() 絳紅色的斜坡屋頂清新明快,屋檐的線條輕盈流暢,頗具造型感。黃色墻身素雅簡單,沒有過多的外墻裝飾,但是氣質卻更加平易近人。進入屋內,迎面的便是寬敞通透的客廳以及餐廳。設有四間臥室,廚房與餐廳處在同一區域,方便干凈。大面積的門廳給人一種大氣之風,合理利用可以進行適當的植物配置進行裝飾。 占地面積:13.76m*9.6m,137.76平方米左右; 建筑層高:一層; 建筑高度:6.3米(含屋頂); 設計功能: 一層戶型:客廳、廚房、餐廳、臥室x4、衛生間x2; ![]()
今天小編介紹的帶兩個衛生間的一層自建房就到這里了,每一款都有全套的施工圖紙,喜歡就收藏吧! 圖紙之家-專注農村別墅/自建房設計18年,集合國內200余位經驗豐富的設計師,被評為口碑最好的農村建筑設計公司! |

偏徽派風格民居三層農村住宅設計圖,白墻黛瓦的古雅簡潔
占地:101.01平方米
客廳中空三層復式別墅房屋設計圖,帶外觀效果圖
占地:145平方米
面寬13米二層新農村別墅自建房設計圖,功能實用,外觀大氣
占地:168.96平方米
26萬二層平頂別墅樓設計圖,客廳中空,占地120平米
占地:120平方米
兩層半樓房設計圖及效果圖,農村二層房屋設計圖推薦
占地:135平方米
160平米三層別墅設計圖,功能齊全,外觀漂亮,適合和父母同住
占地:160平方米
小型新中式二層小別墅圖紙設計方案,好看造價不高
占地:232.98平方米
農村三層蓋房設計圖大全,最新的設計,最新的戶型
占地:150平方米
160平方農村三層別墅CAD設計圖紙,含外觀圖片效果圖
占地:156平方米
現代一層(帶悶頂)別墅住宅設計圖,外觀現代時尚
占地:160平方米
14x11米一層平房戶型設計圖,帶前后門設計,好看不貴還實用!
占地:143.59平方米
挑空客廳戶型歐式二層別墅設計圖紙,高端大氣帶車庫
占地:236.09平方米
四開間一層自建房設計圖,四臥二廳+棋牌室+書房
占地:181.29平方米
125平方米新農村二層房屋施工設計CAD圖紙加效果圖
占地:125平方米
帶電梯農村建房三層小洋樓,樓中樓結構,帶露臺
占地:110平方米
60多平三層現代風格別墅設計圖,小戶型平屋頂
占地:66.4平方米
100平內的三層豪華歐式別墅房屋設計圖紙 ,簡歐風格
占地:94平方米左右
帶柴火房農村一層自建房設計圖,戶型布局接地氣
占地:126.29平方米
農村三間兩層樓房設計圖,帶外觀效果圖
占地:140平方米
2026兩層半20多萬農村自建房圖,簡歐風格,美觀大氣
占地:120平方米
推薦:10套新農村自建房設計圖,2026年最新設計
閱讀次數:4825737次
100套鄉村別墅圖片大全,2026年最新設計
閱讀次數:2492203次
6款農村蓋一層平房的設計圖,10萬元就能建起來
閱讀次數:1852637次
這11個一層農村自建房別墅火爆了朋友圈!我最喜歡戶型十!你呢
閱讀次數:750268次
農村6萬元建一層小別墅圖,你敢相信嗎
閱讀次數:567686次
農村5萬塊就能自建房,6套普通房子設計圖分享,你沒看錯!
閱讀次數:419410次
8套農村漂亮三間平房圖片,非常適合在農村修建!
閱讀次數:411197次
農村自建房化糞池怎么做?附方案及施工過程
閱讀次數:391783次
農村一層三間平房設計圖,告別土氣養老房,讓人忍不住點贊
閱讀次數:350581次
新農村二層樓房圖片造價12萬,挑一套回家建房吧!
閱讀次數:349126次
