
|
農村自建房人數的增多,帶來的是自建房越來越多的別樣化,每個建房的人都擁有著自己個人的需求和審美。今天給大家帶來的是三款帶落地窗的二層別墅設計圖,外觀精致,內部布局合理,加裝的落地窗大大增加了采光,也提高了景觀視野,而且外表顯著十分大氣,雖然在外表看來落地窗顯得十分高大上,實則造價比整面墻來說要低得多,不僅僅減少工程量,安裝也簡單,后期維修也方便。 別墅圖一:農村新中式二層別墅設計施工圖餐廳廚房在配房,占地面積140平米上下,簡潔穩重,極簡風格,天然石材、層次感顏色、干脆利落的線框,展現出順暢的室內空間。說的便是下邊這幢獨棟別墅,奢華簡約的住房,精美大氣,并根據顏色的裝點,構建大方的空間氣氛,產生層次感的穩重氣場。能夠算是簡潔中有造型藝術品位、構造中藏于方式的藝術美。以自然的灰白色居多調,顯出一份怡人的輕柔感,綴以鏤花木質護欄,在簡約中間產生平衡力。大規模的光照窗讓太陽光飄滿全部室內空間。餐廳廚房是個油煙較為重的地區,因此一般都是會獨立拎出去,為了更好地持續老一輩的生活方式。
別墅效果圖 占地面積:15.6m*9.5m,141.11平方米左右; 建筑層高:二層; 建筑高度:9.52米(含屋頂); 設計功能: 一層戶型:前廳,客廳、獨立廚房(中島)、餐廳、臥室x2、衛生間; 二層戶型:客廳、臥室(帶衛生間)臥室x3、衛生間、陽臺、露臺;
一層平面圖
二層平面圖 別墅圖二:鄉村帶車庫的二層四間別墅建筑結構設計圖140平米房型,暖心設計方案,合理布局,務求塑造最完美無缺的家。別墅外觀時尚潮流,簡潔清雅,總體感覺明亮輕快。禮拜天回家,放下大城市的喧鬧與繁忙的心身,帶給居民整潔、素雅的心身體會。內部帶停車位、單獨餐廳廚房。乳白色的墻磚配搭深褐色建筑涂料恰如其分;斜屋頂蓋緊深灰色屋頂瓦,增加一抹閃光點;大門口加上正方形歐式羅馬柱,十分大氣。敞開式停車位,進門處配有入戶玄關,作為出入獨棟別墅的公共性銜接地區,與門廳相接通,室內空間多,單獨餐廳廚房與飯店相接,用移門分隔,給予無煙鍋的優良用餐自然環境;二層小大客廳安裝在樓房核心部位,與生活陽臺立即相接,作為家庭活動的公共區域,必不可缺。
別墅效果圖 占地面積:14.76m*10.06m,139.85平方米左右; 建筑層高:二層; 建筑高度:9米(含屋頂); 設計功能: 一層戶型:玄關、客廳、廚房兼柴火房、餐廳、洗衣房、臥室x2、衛生間、車庫; 二層戶型:小客廳、儲藏室、臥室x3、陽臺、露臺;
一層平面圖
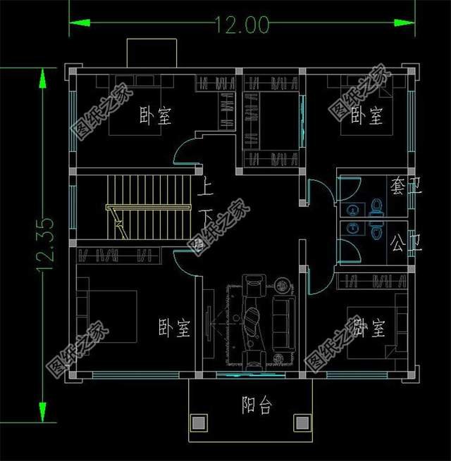
二層平面圖 別墅圖三:方正對稱二層農村自建別墅施工圖好看性價比高舒適大氣,總體為偏歐式古典風,并在這個基礎中作了改善,不僅有簡歐風格的高貴浪漫,也整合了現代簡約的簡潔氣息。一層平面圖參考鄉村生活的市場需求將房屋分成動靜分區兩個部分,東面是靜區布局臥房,達到睡眠清靜自然環境;西邊是飯店、大客廳等公共性運動室內空間。二層總體相對性私密,房屋中間布局家中廳,達到家庭聚餐閑聊的作用,緊緊圍繞家中廳四周布局了四間臥房和步入式衣帽間。工程造價性價比高,80.90后最喜歡。
別墅效果圖 占地面積:12m*12.35m,129.6平方米左右; 建筑層高:二層; 建筑高度:10.35米(含屋頂); 設計功能: 一層戶型:客廳、廚房、餐廳、臥室(帶衛生間 )、臥室、衛生間; 二層戶型:客廳、臥室(帶衛生間、衣帽間)、臥室x3、衛生間、陽臺;
一層平面圖
二層平面圖 以上就是今天分享的全部內容了,希望大家喜歡。 圖紙之家-專注農村別墅/自建房設計18年,集合國內200余位經驗豐富的設計師,被評為口碑最好的農村建筑設計公司! |

面寬12米新中式三層別墅設計圖,回家建房就選它,全家人都愛的
占地:180平方米
帶架空層的農村一層小別墅設計圖,大氣穩重又很實用
占地:123.5平方米
農村帶閣樓一層房屋設計施工圖,13X9米
占地:102平方米
三層歐式自建房別墅設計方案,11x11米洋氣實用,飽受大家好評
占地:127平方米
農村三層樓房設計圖及效果圖,復式磚混結構
占地:148平方米
140平方米現代偏中式實用型三層房屋設計圖紙,新農村建房推薦
占地:142平方米
小型雙拼一層平房設計圖,外觀古樸
占地:100平方米
現代二層樓房圖片造價25萬,含全套設計圖,風格獨特
占地:多戶型可選
簡約大氣農村自建三層別墅設計圖,布局合理,很適合農村人自建
占地:139.471平方米
鄉下建房一層半戶型圖,占地160平米,帶閣樓
占地:多種戶型
簡約現代的二層別墅自建房設計圖,13米乘9米
占地:124平方米
100平新農村三層復式房屋別墅設計圖紙,造價30萬左右
占地:106平方米
現代一層(帶悶頂)別墅住宅設計圖,外觀現代時尚
占地:160平方米
240平方米新農村漂亮的兄弟雙拼別墅設計圖紙,單戶120平
占地:239平方米
備受好評二層半歐式別墅設計圖,五開間對稱設計,布局合理又實
占地:192.48平方米
最好看的新款農村三層復式別墅設計圖片及設計圖,外觀高端、大
占地:160平方米
面寬13米帶堂屋三層農村別墅圖,新中式大氣風格
占地:151.58平方米
新農村二層自建房設計圖帶外觀圖片,自建戶型大全
占地:160平方米
帶地下室的農村三層雙拼別墅設計圖,復式戶型,面寬23米
占地:261.6平方米左右
帶地下室的一層別墅設計圖,農村自建房比較合適
占地:206平方米
推薦:10套新農村自建房設計圖,2026年最新設計
閱讀次數:4825737次
100套鄉村別墅圖片大全,2026年最新設計
閱讀次數:2492203次
6款農村蓋一層平房的設計圖,10萬元就能建起來
閱讀次數:1852637次
這11個一層農村自建房別墅火爆了朋友圈!我最喜歡戶型十!你呢
閱讀次數:750268次
農村6萬元建一層小別墅圖,你敢相信嗎
閱讀次數:567686次
農村5萬塊就能自建房,6套普通房子設計圖分享,你沒看錯!
閱讀次數:419410次
8套農村漂亮三間平房圖片,非常適合在農村修建!
閱讀次數:411197次
農村自建房化糞池怎么做?附方案及施工過程
閱讀次數:391783次
農村一層三間平房設計圖,告別土氣養老房,讓人忍不住點贊
閱讀次數:350581次
新農村二層樓房圖片造價12萬,挑一套回家建房吧!
閱讀次數:349126次
