
|
別墅的風格多種多樣,但是新中式風格在國內建別墅的人群心中一直都屬于很重要的一環。新中式風格雖然跟傳統風格比比較簡約,但是它本身營造出來的是浪漫還不失古樸的風格。和傳統中式比起來少了一份嚴肅,多了一份優雅。且新中式風格的層次感和跳躍感很強,整體看起來都十分大氣,是非常優秀的。今天就給大家帶來三款新中式三開間二層別墅設計圖紙,感興趣的朋友一起來看看吧。 別墅圖一:帶大套間新農村二層別墅CAD施工設計圖紙帶效果圖戶型布局簡單實用。這套二層農村自建房屋采用坡屋頂設計,外觀簡約時尚,外墻配色裝飾簡單,沒有過多裝飾。整體給人一種很簡單的感覺。門廳羅馬柱的設計讓整棟建筑看上去更加的大氣,結構設計錯落有致,層次分明,讓人第一眼印象十分深刻。
別墅效果圖 占地面積:13.8m*13.8m,185平方米左右; 建筑層高:二層; 建筑高度:9.19米(含屋頂); 設計功能: 一層戶型:客廳、廚房、餐廳、臥室(帶衛生間)、臥室; 二層戶型:客廳、臥室(帶衣帽間書房衛生間)、臥室x2、衛生間、觀景陽臺;
背面效果圖
鳥瞰效果圖
一層平面圖
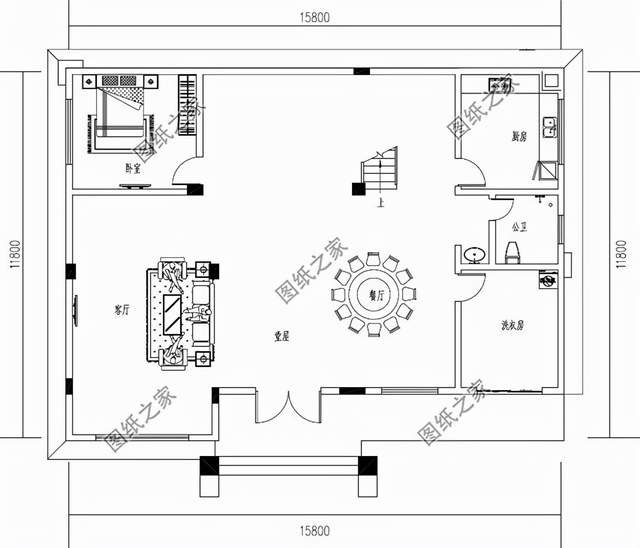
二層平面圖 別墅圖二:175平方米二層別墅設計CAD圖紙及效果圖大全中式風格,這棟房子總面積小,清新淡雅,設計風格清新,造型設計不繁雜,工程施工成本費不高,特別適合自身修建,美觀大方醒目,功能分析齊備,合理布局大方有效,房型精美,室內空間動靜分區布局合理,布局舒服,南北通透,四面光照,生活清爽享受。
別墅效果圖 占地面積:15.8m*11.8m,175平方米左右; 建筑層高:二層; 建筑高度:10.2米(含屋頂); 設計功能: 一層戶型:堂屋、客廳、廚房、餐廳、臥室、衛生間、洗衣房; 二層戶型:客廳、臥室(帶衛生間)、臥室x2、衛生間、露臺;
背面效果圖
鳥瞰效果圖
一層平面圖
二層平面圖 別墅圖三:150平方米新中式新農村二層樓房設計圖紙及效果圖13X13米,灰棕色搭配,藍色坡屋頂,主墻采用白色,其中加入了一些灰色裝飾別墅的邊框線條,整體呈現出沉穩端莊的氣質。大面積窗的設計讓整體的采光和通風都得到了加強,生活也更為舒適。露臺的存在讓建筑的功能性得到了加強。正面凸出的大氣門廊點綴著大氣的方柱,凸顯了整個別墅的氣質。臥室窗戶采光通風良好,保證了居住舒適性。
別墅效果圖 占地面積:12m*10m,125平方米左右; 建筑層高:二層; 建筑高度:9.2米(含屋頂); 建筑結構:磚混結構; 主體造價:18萬左右; 設計功能: 一層戶型:門廳、神位、客廳、廚房、餐廳、臥室x2、衛生間; 二層戶型:小客廳、臥室(帶衛生間)、書房、臥室x2、衛生間、露臺;
背面效果圖
鳥瞰效果圖
一層平面圖
二層平面圖 以上就是今天帶給大家的全部內容了,希望大家會喜歡。 圖紙之家-專注農村別墅/自建房設計18年,集合國內200余位經驗豐富的設計師,被評為口碑最好的農村建筑設計公司! |

一層共用,二層兄弟雙拼的二層別墅設計圖
占地:182.48平方米
歐式大氣三層小別墅設計圖紙,外觀、造型大方,色彩明快
占地:140平方米
建完被夸半年!現代風三層農村別墅,顏值抗打還百看不厭
占地:136.01平方米
180平方米新農村雙拼戶型別墅房屋設計圖紙帶外觀圖17X11米
占地:180平方米
2026二層農村新款別墅圖片及施工圖,新中式風格古典大氣
占地:200平方米
帶閣樓二層別墅設計圖,帶外觀效果圖片
占地:160平方米
農村三層樓房設計圖及效果圖,復式磚混結構
占地:148平方米
新農村自建三層復式結構房屋別墅設計圖紙及效果圖
占地:138平方米
鄉村二層半別墅圖紙設計,歐式風格、錯落有致,150平左右
占地:149.76
豪華新中式兩層半農村別墅設計圖,繁華之外,心之所向
占地:290.4平方米
二層歐式別墅設計圖,挑空客廳+柴火灶,12.5米乘12米
占地:131.25平方米
帶車庫,帶露臺的三層復式樓房設計圖,新農村房屋方案推薦
占地:140平方米
帶車庫現代三層樓房設計圖,外觀效果圖時尚、美觀
占地:160平方米
農村四層雙拼別墅房屋設計圖,造型現代、大氣
占地:220平方米
140平方米清新別致新農村兩層房屋設計圖紙大全12x13米
占地:140平方米
農村中式四合院房屋圖片及設計圖,白墻黛瓦的江南風格
占地:337平方米
12x10三層別墅設計圖,農村自建房推薦戶型
占地:120平方米
農村中式二層4開間別墅圖紙設計方案圖,帶車庫戶型
占地:198平方米
二層農村別墅新風尚,簡約實用,性價比高,美麗又實惠
占地:126平方米
15萬左右一層農村自建房設計圖,一家住剛剛好
占地:131.33平方米
推薦:10套新農村自建房設計圖,2026年最新設計
閱讀次數:4825737次
100套鄉村別墅圖片大全,2026年最新設計
閱讀次數:2492203次
6款農村蓋一層平房的設計圖,10萬元就能建起來
閱讀次數:1852637次
這11個一層農村自建房別墅火爆了朋友圈!我最喜歡戶型十!你呢
閱讀次數:750268次
農村6萬元建一層小別墅圖,你敢相信嗎
閱讀次數:567686次
農村5萬塊就能自建房,6套普通房子設計圖分享,你沒看錯!
閱讀次數:419410次
8套農村漂亮三間平房圖片,非常適合在農村修建!
閱讀次數:411197次
農村自建房化糞池怎么做?附方案及施工過程
閱讀次數:391783次
農村一層三間平房設計圖,告別土氣養老房,讓人忍不住點贊
閱讀次數:350581次
新農村二層樓房圖片造價12萬,挑一套回家建房吧!
閱讀次數:349126次
