
|
蓋房主江西人,一輩子蓋個房不容易,還得跟農村信用社借錢還貸啊,經常感嘆為啥毛爺爺在世時不好好發展我們家鄉啊! 房子開間尺寸是12米左右, 進深也是12米左右,左右多事空地,面積在農村老家不算大,比較喜歡新農村別墅,堂屋就沒有考慮在新房子里,前面想個是老房子里有堂屋。沒有錢只能搞個二層半,還的借個十來萬。前陣一直在家忙施工,只包人工的是160每平米含現澆樓板, 但是外墻貼磚另算 ,只是毛胚。去年年底找設計師花5千大洋設計的房子,最初還是很滿意的 過年在家一家人商量感覺還是有點不到位。感覺露臺太空,房間不夠多,花三十萬才蓋6個房間,在我們這說不過去,沒辦法還是的聯系設計師改了一下,設計師也沒有多說什么,還挺感謝的。改成下面這個樣子的,設計師發的兩個農村二層房屋設計圖 不知道哪個看上去更洋氣一些?
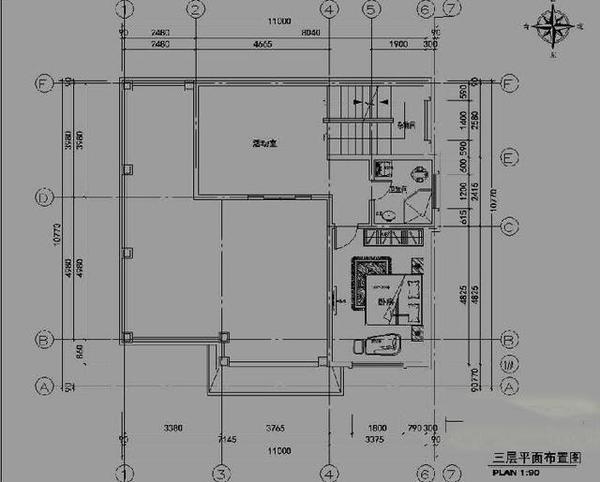
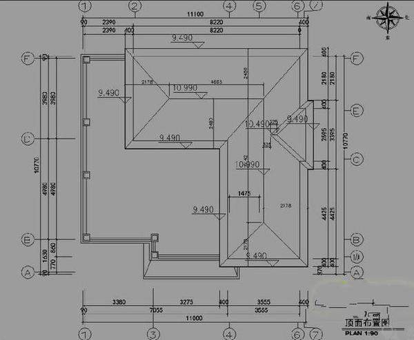
設計師多次修改完成的平面圖,感覺還缺點啥
最近的一些施工現成圖,剛下過雨,做磚混結構的,地梁用的多是22的鋼筋,設計師設計的不是22的,我也不知道,大的應該更好,雖然沒有錢但是一輩子也就蓋這個房子,結實一點總是好點
不知道蓋出來是否好看,有些基礎尺寸被施工隊改了,希望大家給點意見。很多蓋房上的東西沒有太多研究,會一步一步和大家分享。想要加緊進程,計劃是開春之前就蓋好的,可前段時間一直下雨不知道能不能蓋完
各位大哥,房子蓋的也快差不多啦,現在我很糾結這個外墻該到底怎樣貼磚,不知道哪個效果圖更好看
這些天就快要封頂啦
隔壁鄰居看到后問我大約花了多少錢?說下預算也行,今年過完年也準備蓋一棟。可細算下來有沒有40萬? 圖紙之家-專注農村別墅/自建房設計18年,集合國內200余位經驗豐富的設計師,被評為口碑最好的農村建筑設計公司! |

帶中式小院的二層仿古別墅設計圖,小戶型自建房設計,外觀美極
占地:82.94
115平旋轉樓梯三層復式別墅房屋設計圖,含外觀效果圖
占地:115平方米
農村四層樓房設計圖,含外觀圖片,自建四層房屋推薦
占地:140平方米
90平方米農村二層房屋設計圖紙(施工圖+效果圖)
占地:90平方米
帶車庫二層農村豪華別墅設計圖,主體25萬左右
占地:170平方米左右
獨棟兩層歐式別墅設計圖紙(效果圖+建筑施工圖)
占地:125平方米
200平方米農村二層中式四合院設計圖,含外觀圖片
占地:200平方米
歐式三層樓中樓別墅設計圖紙帶車庫(含外觀效果圖)
占地:130平方米
最新12x9米一層平房別墅設計圖,好看不貴居住舒適!
占地:108平方米
農村宅基地建房二層別墅設計圖,適合回鄉自建!
占地:137.5平方米
11×10米農村二層別墅圖,百平占地經典實用舒適大氣
占地:103.47平方米
新農村小開間三層樓房設計圖,占地100平米左右
占地:多種戶型
10萬農村別墅設計圖小戶型,經濟、耐看、實用
占地:多種戶型
10米×12米30萬以內農村建房三層豪華歐式別墅圖,處處顯品味
占地:120平方米
110平方米新農村二層別墅設計圖及效果圖,12.36x9.36米
占地:115平方米
20萬左右農村雙拼別墅住宅設計圖,簡單小戶型設計
占地:120平方米
農村30萬別墅款式三層設計圖紙,帶地下儲藏室,挑空客廳
占地:110平方米
經典三層別墅設計圖紙(全套施工圖+效果圖),新農村自建推薦
占地:123平方米
100平新農村三層復式房屋別墅設計圖紙,造價30萬左右
占地:106平方米
農村高端中式三層雙拼全套房屋施工設計圖,效果圖很大氣
占地:340平方米
推薦:10套新農村自建房設計圖,2026年最新設計
閱讀次數:4825737次
100套鄉村別墅圖片大全,2026年最新設計
閱讀次數:2492203次
6款農村蓋一層平房的設計圖,10萬元就能建起來
閱讀次數:1852637次
這11個一層農村自建房別墅火爆了朋友圈!我最喜歡戶型十!你呢
閱讀次數:750268次
農村6萬元建一層小別墅圖,你敢相信嗎
閱讀次數:567686次
農村5萬塊就能自建房,6套普通房子設計圖分享,你沒看錯!
閱讀次數:419410次
8套農村漂亮三間平房圖片,非常適合在農村修建!
閱讀次數:411197次
農村自建房化糞池怎么做?附方案及施工過程
閱讀次數:391783次
農村一層三間平房設計圖,告別土氣養老房,讓人忍不住點贊
閱讀次數:350581次
新農村二層樓房圖片造價12萬,挑一套回家建房吧!
閱讀次數:349126次
