
|
一直有個夢想就是回到農村建個房子,有個院子,過著悠閑的田園生活,而下面這個農村小伙就實現了這個夢想,他把花園洋房,別墅庭院搬到了農村,過起了美美的田園生活。 這套別墅開間13.5米,進深14.3米,占地面積193平方米,建筑高度11.7米,采用的是磚混結構,主體造價40萬左右,加裝修20萬,一共60萬。
門前做了個院子,一邊種了花邊,而另一邊留給父母種點小菜。屋頂還做了陽光房,坐在頂樓花園房里,喝著茶,約上幾個好友,聊聊天,打打牌,遠處是青山稻田,清風徐來。
這樣的花園洋房,你想要嗎?好吧,下面就放效果圖
立面圖
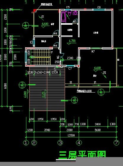
各層平面圖
圖紙之家-專注農村別墅/自建房設計18年,集合國內200余位經驗豐富的設計師,被評為口碑最好的農村建筑設計公司! |

鄉村房屋改建三層房屋設計圖紙,農村樓房設計圖推薦
占地:90平方米
兩層20萬農村自建房設計圖,經典農村建房款式,越看越有韻味
占地:160平方米
三層新農村140平方米房屋設計圖紙,全套施工圖及效果圖
占地:140平方米
12x10三層別墅設計圖,農村自建房推薦戶型
占地:120平方米
最好看的新款農村三層復式別墅設計圖片及設計圖,外觀高端、大
占地:160平方米
戶型獨特的、二層臥室挑高的別墅房屋設計圖,外觀簡歐風格
占地:250平方米
村里蓋房圖紙大廳挑空的三層別墅設計圖,面寬不到10米
占地:122.4平方米
120平米三層小別墅設計方案和效果圖,端莊大氣很經典
占地:120平方米
農村四間二層小洋樓設計圖,歐式別墅、現代洋氣
占地:200平方米
獨立餐廳廚房,平屋頂現代風格三層別墅設計圖
占地:159.02平方米
兩層半30萬農村自建房別墅設計圖紙,客廳挑空,帶大露臺
占地:130平方米
一層鄉村別墅設計戶型圖,占地100平左右,外觀很時尚
占地:100平方米左右
新中式農村自建二層別墅設計圖,占地160平米左右,客廳中空
占地:160平方米
35萬內三層自建別墅設計圖,外觀美觀,戶型舒適
占地:135平方米
130平方米別墅設計圖紙(含外觀效果圖,)三層別墅設計方案
占地:135平方米
300平方二層別墅四合院設計圖紙方案(效果圖+施工圖)
占地:332平方米
三層新中式別墅設計圖,面寬12米經典漂亮
占地:154.93平方米
時尚二層現代風別墅設計圖紙,平屋頂方案13×10米
占地:98平方米
110平農村二層房屋設計圖,新農村自建房戶型推薦
占地:110平方米
90平農村自建房二層新款,占地不大但很實用,
占地:88平方米
推薦:10套新農村自建房設計圖,2026年最新設計
閱讀次數:4825737次
100套鄉村別墅圖片大全,2026年最新設計
閱讀次數:2492203次
6款農村蓋一層平房的設計圖,10萬元就能建起來
閱讀次數:1852637次
這11個一層農村自建房別墅火爆了朋友圈!我最喜歡戶型十!你呢
閱讀次數:750268次
農村6萬元建一層小別墅圖,你敢相信嗎
閱讀次數:567686次
農村5萬塊就能自建房,6套普通房子設計圖分享,你沒看錯!
閱讀次數:419410次
8套農村漂亮三間平房圖片,非常適合在農村修建!
閱讀次數:411197次
農村自建房化糞池怎么做?附方案及施工過程
閱讀次數:391783次
農村一層三間平房設計圖,告別土氣養老房,讓人忍不住點贊
閱讀次數:350581次
新農村二層樓房圖片造價12萬,挑一套回家建房吧!
閱讀次數:349126次
