
|
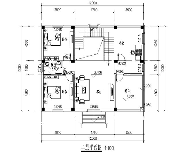
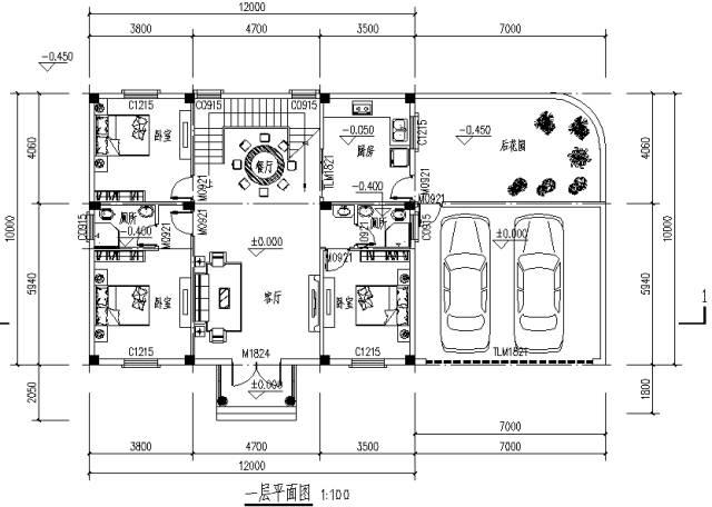
【項目名稱】:12X10二層簡單一點的別墅圖 【建筑面積】:240平方米 【建筑高度】:9.300米 【功能布局】:5臥室2客廳3衛生間1廚房1書房3露臺1車庫 【預算造價】:25~30萬(毛坯) ![]() ![]() ![]() ![]() ![]() ![]() ![]() ![]() 這套方案為帶車庫的兩層別墅,車庫可停放兩輛車,車庫旁有一花園直通廚房,閑事可種花種菜;首層的樓梯是亮點,除客廳、廚房、衛生間外,設有一間主臥,兩間次臥,非常適合家庭人數較多在家居住的情況;二樓配有客廳及兩間臥室和一書房,相對隔離又安靜,適合戶主居住。 圖紙之家-專注農村別墅/自建房設計18年,集合國內200余位經驗豐富的設計師,被評為口碑最好的農村建筑設計公司! |

2026新農村三層雙拼房屋設計圖紙平面圖與效果圖,帶堂屋
占地:190平方米
二層復式農村別墅設計圖,進深12米,戶型堪稱完美
占地:193.2平方米
鄉下建房一層戶型圖,一層住宅設計圖紙,誰說一層平房不能叫別
占地:200平方米
新中式三層別墅設計圖紙(含效果圖),110平農村自建房施工圖推
占地:110平方米
兄弟兩戶雙拼房屋設計圖及外觀圖片,戶型合理
占地:185平方米
100平內的三層豪華歐式別墅房屋設計圖紙 ,簡歐風格
占地:94平方米左右
農村自建二層樓房設計圖及效果圖,二層房屋圖推薦
占地:105平方米
小占地的農村別墅設計圖,占地僅72平米,參考造價不到15萬
占地:多戶型可選
最新款二層鄉下別墅設計圖,新中式風格,24萬建好主體
占地:150.94平方米
12米乘9米占地百平一層平房戶型設計圖,布局寬敞大氣又舒適
占地:108平方米
120平方米新農村四層房屋設計圖紙和效果圖
占地:120平方米
新中式小戶型二層別墅效果圖及全套施工設計圖,造價經濟實惠
占地:108平方米
漂亮實用三層新農村小別墅設計圖紙,占地150平米,帶露臺,從哪
占地:150平方米
占地90平新中式經濟二層小別墅自建房設計圖,僅15萬
占地:89.3平方米
面寬10米左右的三層農村別墅設計案例,低調又奢華
占地:120平方米
帶架空層一層農村別墅設計圖,回鄉建房優選,家有豪宅幸福來敲
占地:124.76平方米
農村二層住宅樓房設計圖紙,全套方案(施工圖+效果圖)
占地:113平方米
歐式大戶型三層農村房屋設計圖紙,歐式住宅圖推薦
占地:178平方米
新款三層豪華大氣歐式別墅設計圖,3種戶型設計方案
占地:125平方米左右
簡歐式三層半(4層)農村自建房別墅設計圖效果圖,帶車庫戶型
占地:127平方米
推薦:10套新農村自建房設計圖,2026年最新設計
閱讀次數:4825737次
100套鄉村別墅圖片大全,2026年最新設計
閱讀次數:2492203次
6款農村蓋一層平房的設計圖,10萬元就能建起來
閱讀次數:1852637次
這11個一層農村自建房別墅火爆了朋友圈!我最喜歡戶型十!你呢
閱讀次數:750268次
農村6萬元建一層小別墅圖,你敢相信嗎
閱讀次數:567686次
農村5萬塊就能自建房,6套普通房子設計圖分享,你沒看錯!
閱讀次數:419410次
8套農村漂亮三間平房圖片,非常適合在農村修建!
閱讀次數:411197次
農村自建房化糞池怎么做?附方案及施工過程
閱讀次數:391783次
農村一層三間平房設計圖,告別土氣養老房,讓人忍不住點贊
閱讀次數:350581次
新農村二層樓房圖片造價12萬,挑一套回家建房吧!
閱讀次數:349126次
