
|
這款三層別墅外觀效果圖簡約卻不簡單,大氣的挑高客廳,通透的落地窗時尚大氣,入戶門廳,集實用性和觀賞性于一體,帶車庫能滿足農村出行要求。這款別墅可以獨棟,也可以兄弟合建雙拼別墅。
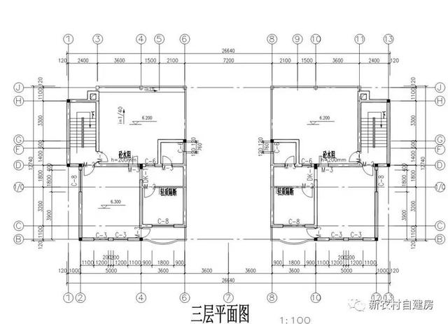
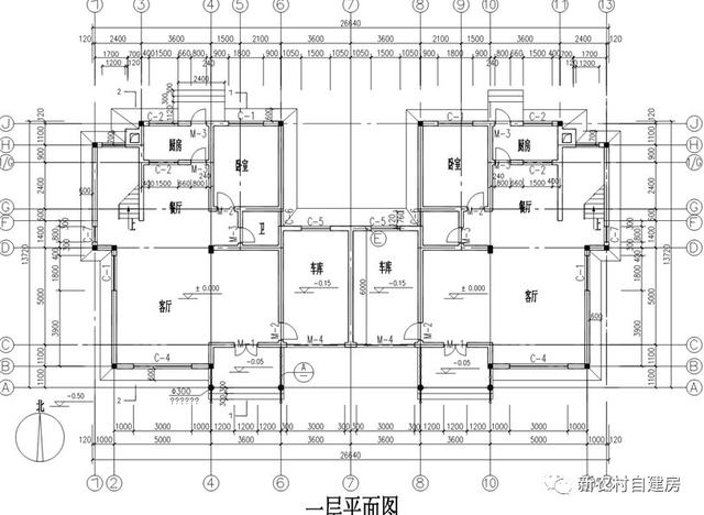
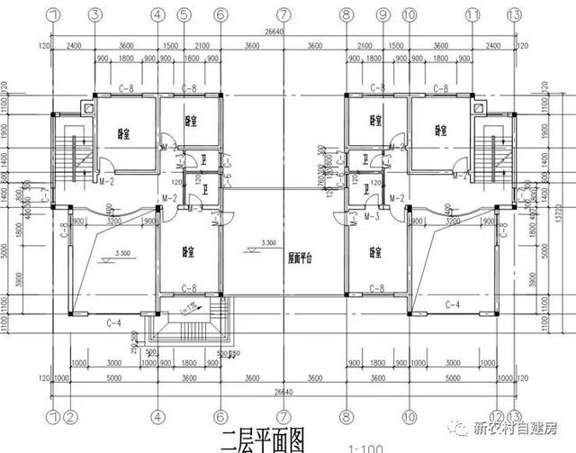
別墅開間為13.32米,進深13.72米,占地面積182平方米,建筑總屋高為9.9米,采用的是磚混結構,主體造價32萬左右。
設計功能干濕分離,動靜分區,既舒適又實用。一層設計有臥室、廚房、餐廳、客廳、衛生間和車庫。
二層設計有三間臥室,二個衛生間和屋頂露臺;三層沒有進行具體的用途規劃,可根據每個家庭的需求不同進行合理安排。
圖紙之家-專注農村別墅/自建房設計18年,集合國內200余位經驗豐富的設計師,被評為口碑最好的農村建筑設計公司! |

農村大戶型中式二層四合院別墅設計圖含外觀效果圖,戶型經典、
占地:464平方米
雙戶168平方米小戶型新農村雙拼樓房設計建筑圖紙帶外觀圖
占地:168平方米
農村2開間三層經濟別墅設計圖,9.6米面寬,實用布局
占地:127.68平方米
帶地下室一層別墅設計方案,功能布局齊全實用
占地:256.5平方米
農村兩開間農村別墅設計圖,典雅大氣,完全不輸大戶型
占地:116.26平方米
獨棟二層別墅cad設計圖紙,平屋頂自建別墅方案精選
占地:190平方米
帶庭院中式二層四合院別墅設計效果圖片,方方正正
占地:404平方米
共堂屋雙拼兩層小別墅設計圖,倆兄弟農村自建房首選
占地:198平方米
簡單實用二層自建房子設計圖,主體造價僅17萬
占地:106.387平方米
2026最火的現代別墅設計圖農村三層戶型,帶地下室
占地:119.79平方米
新式三層別墅設計圖,客廳中空,占地125平米左右
占地:125平米
小占地的農村別墅設計圖,占地僅72平米,參考造價不到15萬
占地:多戶型可選
客廳中空三層復式別墅房屋設計圖,帶外觀效果圖
占地:145平方米
青瓦仿古中式大型三層別墅設計圖,韻味十足復古大氣
占地:300平方米
150平米田園風格二層別墅設計圖紙,沉穩大氣有內涵
占地:150平方米
私人經濟小別墅設計圖,農村自建小洋樓100平左右戶型
占地:104平方米
兩層中式三合院別墅設計圖紙,堂屋套臥全都有,蓋一棟面子十足
占地:181.93平方米
一層共用,二層兄弟雙拼的二層別墅設計圖
占地:182.48平方米
120平方米農村四層別墅設計圖,含全套施工圖
占地:120平方米
自建小樓二層農村別墅設計圖,大氣好看,13米乘14米
占地:181.62
推薦:10套新農村自建房設計圖,2026年最新設計
閱讀次數:4825737次
100套鄉村別墅圖片大全,2026年最新設計
閱讀次數:2492203次
6款農村蓋一層平房的設計圖,10萬元就能建起來
閱讀次數:1852637次
這11個一層農村自建房別墅火爆了朋友圈!我最喜歡戶型十!你呢
閱讀次數:750268次
農村6萬元建一層小別墅圖,你敢相信嗎
閱讀次數:567686次
農村5萬塊就能自建房,6套普通房子設計圖分享,你沒看錯!
閱讀次數:419410次
8套農村漂亮三間平房圖片,非常適合在農村修建!
閱讀次數:411197次
農村自建房化糞池怎么做?附方案及施工過程
閱讀次數:391783次
農村一層三間平房設計圖,告別土氣養老房,讓人忍不住點贊
閱讀次數:350581次
新農村二層樓房圖片造價12萬,挑一套回家建房吧!
閱讀次數:349126次
